Nach oben hin mehr Fläche
Aufstockung und Sanierung eines gründerzeitlichen Wohn- und Geschäftsgebäudes
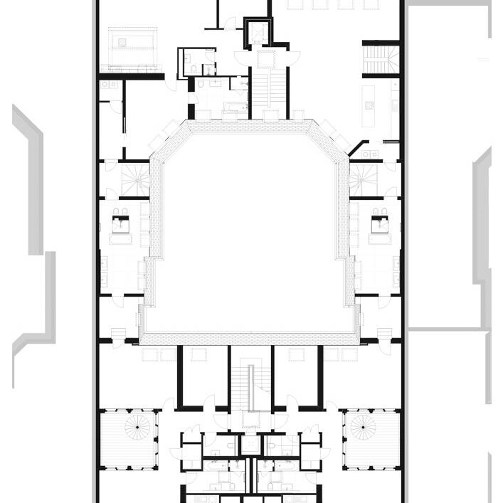
Nach wie vor ist Wohnraum in der Hauptstadt knapp. Um mehr Lebensraum zu schaffen, ist eine Option, Flächen in bestehenden Wohngebäuden zu erweitern. Genau dieses Ziel verfolgte der Eigentümer dieses gründerzeitlichen Wohn- und Geschäftsgebäudes in Charlottenburg. Mit der Umsetzung seiner Pläne beauftragte er das Büro C. M. Laute Architektur. Geplant war, das Gartenhaus um ein Voll- und Dachgeschoss aufzustocken. Zudem sollten das Vorderhaus und die beiden Seitenflügel um einen Dachgeschossneubau erweitert werden, während beim übrigen Gebäudebestand eine Strangsanierung gewünscht war.
„Rund die Hälfte der Wohnungen wurden kernsaniert. Zudem haben wir durch eine Flächenerweiterung in einem ehemaligen Lichthof des Gebäudes größere und zeitgemäße Bäder in die Altbauwohnungen eingebaut und die Wohnungen mit Wohnküchen und Fußbodenheizung ausgestattet“, erläutert Architekt Christian Laute. Sowohl die innenliegende, geschichtsträchtige Aufzugsanlage als auch das Treppenhaus wurden nach historischem Vorbild erneuert bzw. rekonstruiert. Dazu wurden die historischen Stuckelemente im gesamten Treppenhaus des Vorderhauses überarbeitet und die Malerarbeiten analog von Farbfreilegungen wiederhergestellt. Auf diese Weise ist eine historisch orientierte Nachbildung des Marmordekors gelungen.
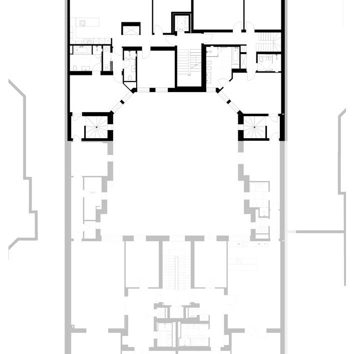
Während das Gartenhaus eine neue innenliegende Aufzugsanlage sowie Balkone erhielt, wurden die Freianlagen komplett neu gestaltet und alle Fenster durch Holz-Aluminiumfenster ersetzt. Das Großprojekt begegnete besonderen Herausforderungen, wie der bewohnte Bestand, städtebauliche Auflagen und der Belichtung der Wohnungen aufgrund der großen Gebäudetiefe des Vorderhauses. So durfte die Dachfläche nur eingeschränkt mit Fenstern perforiert werden. Um dennoch eine gute Belichtung der tiefen Räume der Dachgeschosswohnungen im Vorderhaus zu erreichen, wurden in der Gebäudemitte dreiseitig verglaste Atrien eingefügt. Diese sorgen dafür, dass die großen Wohnräume beidseitig belichtet werden. Innerhalb der Wohnzimmer haben die Bewohner:innen nun einen direkten Bezug zum Außenbereich, wobei von den Atrien Treppen auf die Aufdachterrassen führen. „Unserer Leitidee folgend ist es uns gelungen, den historischen Gebäudecharakter auch in den neuen Geschossen erlebbar zu machen und zugleich moderne Wohnungen nach aktuellen Standards zu schaffen“, resümiert Laute.
Fotos:
C. M. Laute Architektur
(Erschienen in CUBE Berlin 03|25)



