Mein Haus am See

Auf einem unbebauten Grundstück entstehen attraktive Reihenhäuser

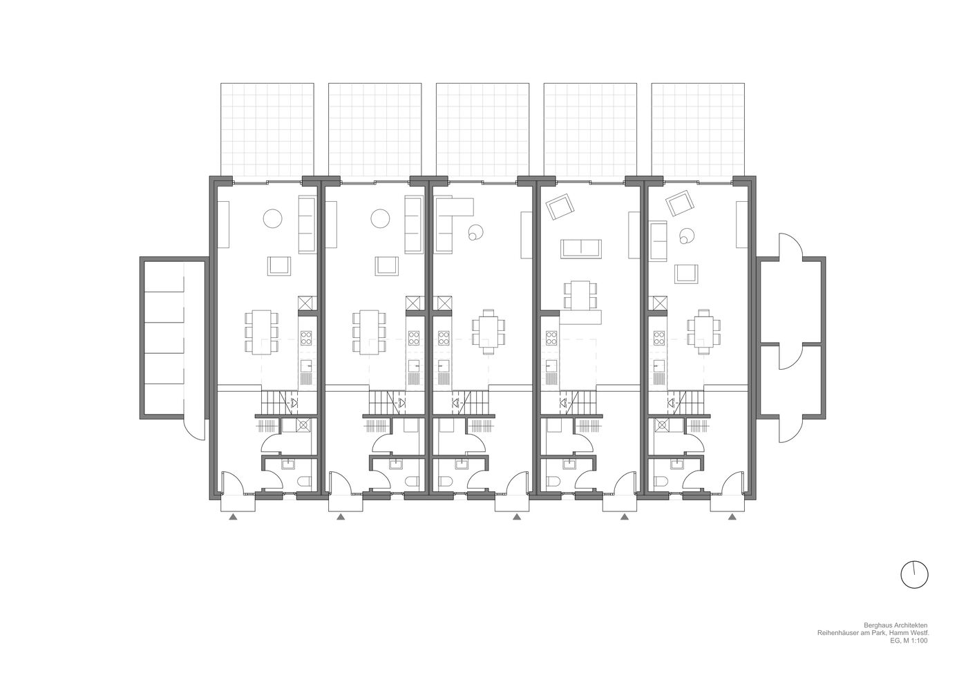
Für Jens Berghaus war es eine Premiere, zugleich Architekt und Bauherr zu sein. Der Zufall ergänzte die Geschichte: Das Grundstück, auf dem fünf Reihenhäuser mit Blick auf den Ahseteich entstanden, schlummerte davor jahrzehntelang hinter Garagen verborgen vor sich hin. Das Hammer Architekturbüro zog die ruhige und zugleich zentrale Lage in zweiter Reihe – erreichbar über einen Privatweg – an und plante dort Wohnbebauung, die schließlich realisiert wurde.

Die Reihenhäuser stehen in einer Flucht mit der vorhandenen Bebauung und interpretieren diese zeitgemäß neu. Das 1.300 m² große Grundstück grenzt gartenseitig an den See – eine Perspektive, die die bodentiefen Fenster großzügig aufgreifen. Durch die Aneinanderreihung der Reihenhäuser konnte im Vergleich zu fünf frei stehenden Häusern viel bewitterbare Fassadenfläche eingespart werden. Die drei- bis zweieinhalbgeschossigen Häuser erhalten durch unterschiedliche Fassadenfarben und variierende Fensterformate jeweils einen eigenständigen Charakter. Die Baustoffe erfüllen hohe Umweltstandards: Tragende Wände bestehen aus Kalksandstein, auf Beton wurde bewusst verzichtet. Die Dämmung wurde in Mineralwolle ausgeführt und mit mineralischem Putz gearbeitet. Die Dachflächen sind anteilig begrünt. An den Eingangsbereich ordnen sich die Funktionsbereiche Garderobe, Gäste-WC und Abstellraum an. Der etwas tiefergelegene offene Wohn- und Essbereich im Erdgeschoss besticht durch eine überhöhte Raumhöhe von 2,90 Meter. Über eine schwellenlose Schiebetür gelangt man auf die ebenerdige Terrasse und in den großzügigen Garten. Im ersten Obergeschoss sind zwei Zimmer und ein Bad verortet, während im darüberliegenden Staffelgeschoss ein weiteres Bad und ein Raum im Studio-Stil entstanden, der ebenfalls zum Garten ausgerichtet ist. Analog zum Erdgeschoss sind die Obergeschosse mit bodentiefen Fenstern in Richtung Garten ausgestattet. Die Fenster im Staffelgeschoss dienen außerdem hier als Zugang zur Terrasse. Im Zentrum jedes Reihenhauses liegt das Treppenhaus. Ein großzügiger Luftraum mit Oberlicht im Dach leitet natürliches Tageslicht durch alle Geschosse. Die Dachterrasse wird mittels einer Dachklappe erschlossen. Dank flexibler Grundrisse lassen sich Nutzungskonzepte nachhaltig und zukunftsfähig gestalten: Die Häuser passen sich an wechselnde Lebensumstände an und bieten multifunktionale Flächen mit maximalem Gestaltungsfreiraum.

Das energetische und technische Konzept ist zukunftsfähig konzipiert. Es gibt einen gemeinsamen Hausanschluss und eine gemeinsame Entwässerung. Jedes Haus besitzt eine eigene Luftwärmepumpe, wodurch eine minimale Leitungsführung realisiert wird und die Heizung individuell an Bedarf und Komfort angepasst werden kann. Auf eine mechanische Belüftung der Häuser konnte verzichtet werden. Öffnet man die Luke zur Dachterrasse, ist ein Luftaustausch durch den Kamineffekt in wenigen Minuten möglich – Zukunftsfähigkeit durch manuelle Belüftung und Lowtech. Bei den Außenflächen wurde darauf geachtet, dass versickerungsfähige Steine und Rasengittersteine zum Einsatz kamen. Vor jedem Haus befindet sich ein Stellplatz für Fahrzeuge.

www.berghausarchitekten.de

Fotos:
Roland Borgmann
www.rolandborgmann.com

(Erschienen in CUBE Ruhrgebiet 03|25)

Architektur:

Berghaus Architekten
www.berghausarchitekten.de

Rohbau:

msBau
www.msbau-hamm.de

Elektro:

Rosenhövel Elektrotechnik
www.rosenhoevel-elektrotechnik.de

Sanitär:

H.W. Grommes
www.grommes-hamm.de

Schlosserei:

Metallbau Karcz
www.metallbau-karcz.de

Dachdeckerei:

Martin Frittgen Dachdecker
www.frittgen-dachdecker-hamm.de

Boden und Fassade:

Kümpel und Hellmeister
www.kuempel-hellmeister.de

Fenster:

Appel
www.appel-rolladen.de

Außenanlage:

WM-Galabau
www.wm-galabau.de

Haustür:

Schüco
www.schueco.com

Fenster:

Rehau
window.rehau.com
Velux
www.velux.de

WDVS-System, Innenanstrich:

Brillux
www.brillux.de

Wärmepumpenanlage:

Daikin
www.daikin.de

Heizleitungen:

Geberit
www.geberit.de

Dachdämmung:

Bauder
www.bauder.d

Nothing found.

Neugestaltung eines Neubaus

Nach Umbau entsteht ein maßgeschneidertertes Zuhause in Düsseltal

Farbspektrum

Ein Business Club in Citylage setzt farbenreich auf Exzellenz und Vielfalt

Ein Teil des Waldes

Umbau einer Scheune zu einem modernen Rückzugsort

Passgenau am Bach

Eine geförderte Wohnanlage in Bergisch Gladbach ordnet sich kleinteilig in ihren Kontext ein

Nothing found.

AOK-Rheinland-Hamburg_Gesch_ftsstelle-Duisburg-Hamborn_-c-kplus-konzept_1_15_700pixel

Begegnungen auf Augenhöhe

Eine Versicherung spiegelt ihre Philosophie auch in ihrem Neubau wider

IMG_5562_19_700pixel

Die Natur ist ganzjährige Kulisse

Ein neu angelegter Privatgarten wirkt wie seit Jahrzehnten gewachsen

Markantes Ensemble

Ein Neubau komplettiert das moderne Stadtquartier „Duisburger Freiheit“

PK913-05_15_700pixel

Spannender Mix

Die Außenfassade eines Zweiparteienhauses spielt mit unterschiedlichen Fassadenmaterialien

Kantine_Marc_Aurel_DSC9807_bea_19_700pixel

Angenehme Mittagspause

Die Mitarbeiter können hier eine Auszeit und Abwechslung zum Arbeitsalltag finden und bereits beim Betreten der Gasträume intuitiv den Ort wählen,…

Mensa-Nordkirchen_RKW_01_15_700pixel

Reizvoller Kontrast

In der Fachhochschule für Finanzen in Nordkirchen treffen Historie und Moderne aufeinander

IMG_5275_15_700pixel

Preisgekröntes Start-Up

2018 gründeten Krewerth und Martinetz das Start-Up ChargAire®. Für den urbanen Produktionsansatz und das nachhaltige Design erhielten sie den…

Hilger-Architekten-HIA_1829-BD-4c_15_700pixel

Lichtblick am Waldrand

Ein Einfamilienhaus wird eingerahmt von der Natur