Wohnen wie im Urlaub

Einem außergewöhnlichen Einfamilienhaus in Recklinghausen liegt die Natur zu Füßen

IMG_2626_interpoliert_700pixel

Dr. Hermann Klapheck ist mit seinem gleichnamigen Architekturbüro in Recklinghausen verortet und hat nun nach langer Suche dort auch sein privates Traumgrundstück gefunden, auf dem er zwei außergewöhnliche Einfamilienhäuser mit jeweils 300 m² Wohnfläche errichtet hat, von denen er eines selbst bewohnt. Auch wenn man auf den ersten Blick meinen könnte, dass sie einander wie Zwillinge ähneln, offenbart der zweite Blick sie als eigenständige Gebäude, die sich zu ihrer Verwandtschaft bekennen, aber dennoch individuell geprägt sind.

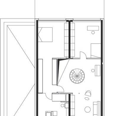
Das nahezu 4.300 m² große Grundstück grenzt an das Landschaftsschutzgebiet. In dieser Idylle standen zwei in die Jahre gekommene Gebäude sowie große Schuppen, die abgerissen wurden. Sodann wurde das Grundstück aufgeteilt, was dem neuen Nachbarhaus 1.270 m² Gartenfläche bescherte. Dass er einmal in einem Haus mit Satteldach wohnen würde, hätte der Architekt mit Faible für das Bauhaus selbst nicht gedacht, aber die strengen Gestaltungsvorgaben sahen genau dieses Dach vor. Zeltartig und eine tolle Raumatmosphäre verströmend ragen sie mit einer 60-Grad-Neigung nun jeweils im Zweierpack empor und werden um ein flaches Gebäudeteil ergänzt. Zumindest scheint es so, denn auch dieser Bereich verfügt über ein Gefälle, welches allerdings nicht sichtbar ist. „Ich wollte typische Dachpfannen und Regenrohre vermeiden und habe zum Eindecken ganz flache Tegalitpfannen und als Traufe pulverbeschichtetes Aluminiumblech verwendet, das kaum wahrnehmbar ist“, erläutert Hermann Klapheck. Das Regenwasser gelangt in eine eigens dafür vorgesehenen Mulde. Raffiniert ist auch der Einbau der bodentiefen Fenster im Erdgeschoss, deren Profile hinter dem Wärmedämmschutz der Wand verschwinden und dadurch besonders filigran wirken. Betritt man das Wohnhaus befindet man sich sogleich in den Wohnräumen, die mit einem hochflorigen Teppichboden ausgestattet sind. Hohe Küchenmöbel fungieren als Raumteiler zur offenen Küche. Diese geht nahtlos in den Essbereich über, wo ein umweltfreundlicher Elektrowasserdampfkamin für eine heimelige Atmosphäre sorgt. Die deckenhohen Türen lassen die Räume optisch höher wirken und eine weiß gestrichene Stahltreppe, die durch zwei Mauern im Halbrund ummantelt wurde, führt in den ersten Stock, in dem sich die Privaträume und das Bad befinden. Die beiden „Zelte“ sind durch eine Brücke miteinander verbunden und Versorgungsleitungen wurden so verlegt, dass bei Bedarf nach neuer Raumaufteilung keine aufwendigen Umbauarbeiten erforderlich sind. Die Wärmeversorgung erfolgt durch eine Erdwärmepumpe, die Fußbodenheizung wärmt und kühlt je nach Bedarf. Sollte die Kühlung in extremen Situationen nicht ausreichen, befindet sich in jedem Raum eine in die Wand eingebaute Klimaanlage, die wie ein Bild anmutet.

Das zweite Haus bildet von außen in der Materialität eine Einheit mit seinem Nachbarn. Die Garage ist hier seitlich am Gebäude angeordnet. Die Spitzgiebel sind verschoben und jeweils nur zur Hälfte verglast. Ganz bewusst wurde auch ein anderer Grundriss gewählt. Hier befindet sich ein Foyer, im Erdgeschoss liegt Eichenparkett, im Obergeschoss wurde Teppichboden verlegt.

www.dr-klapheck.de

Wohn- und Nutzfläche: 300 m²
Grundstücksgröße: 3.000 m²
Bauzeit: 1 Jahr, 2020–2021
Bauweise: Massivhaus
Energiekonzept: Erdwärmepumpe

Fotos:

Architekturbüro Dr. Klapheck
Engel & Völkers Immobilien Recklinghausen

(Erschienen in CUBE Ruhrgebiet 04|21)

Architekten:

Architekturbüro Dr. Klapheck
www.dr-klapheck.de

Tragwerksplanung:

Ingenieurbüro Szepan
www.szepan.de

Vermessung:

Vermessungsbüro Köhnke
www.vb-koehnke.de

Elektro:

Oblonk & Schmidt
www.oblonk-schmidt.de

Heizung:

Diether Impekoven
www.diether-impekoven.de

Sanitärinstallation:

Bad & Heizung Wübbelt
www.badundheizung.de

Dachdeckerei:

Rolf Lutz
www.lutzdach.de

Metallbau:

Metallbau Neufend
www.metallbauneufend.de

Trockenbau:

Cora Montagegesellschaft
www.cora-bau.de

Treppe:

Stadler Treppen
www.stadler.de

Fliesen:

Ludger Strümper
Telefon: 02043 47694

Estrich, Bodenbelag:

Bräuner
www.braeuner.de

Malerarbeiten:

Scherkamp
www.scherkamp-maler.de

Klima:

Gockeln
www.gockeln-klima.de

Schlosserei:

Domak Metallbau
www.domak-metallbau.de

Türen (innen):

Schreinerei Hegering
www.hegering-tischler.de

Garagentor:

Kaldunski & Löhr
www.tore.de

Küche:

Möbel Feldhege
www.wohnwelt-feldhege.de

Glas, Spiegel:

Glas Hagen
www.glashagen.de

Vorhänge:

Dominik Raumausstatter
www.bodo-dominik.de

Außenanlagen:

Welling Garten- und Landschaftsbau
www.gartenbau.org

Leuchten (innen/außen):

Delta Light
www.deltalight.de

Fenster:

Heroal
www.heroal.de

Türen:

Ringo
www.ringo.de

Heizung:

Stiebel Eltron
www.stiebel-eltron.de

Bodenbelag (Teppich):

Jab Anstoetz
www.jab.de

Schalter, KNX-Gebäudeautomation:

Gira
www.gira.de

Küche, Küchetechnik:

Nobilia
www.nobilia.de
Siemens
www.siemens.com/de

Armaturen:

Axor
www.axor-design.com/de
Graff
www.graff-designs.com/de

Sanitärkeramik:

Geberit
www.geberit.de
Vallone
www.vallone.de

Fassade (Farbe):

Brillux
www.brillux.de

Nothing found.

Gelungene Überführung

Der Umbau eines ehemaligen Wochenendhauses begeistert die Bauherrin

Individualität im System

Grundschule verbindet Planungs- und Fertigungseffizienz mit zeitgemäßer Gestaltung

Harmonie mit Liebe zum Detail

Farbkonzepte und Kunstobjekte für ansprechende Praxisräume in Moabit

Wohnraum durch Wandel

Verblüffende Metamorphose – vom „Diskreten Haus“ zum mehrgeschossigen Wohnhaus

Nothing found.

Zusammenspiel von Alt und Neu

In einem historische Gebäude in Essen sind moderne Büroflächen entstanden

PK913-05_15_700pixel

Spannender Mix

Die Außenfassade eines Zweiparteienhauses spielt mit unterschiedlichen Fassadenmaterialien

20190430KlosterKamp-5-_15_700pixel

Startschuss für neues Stadtquartier

Die Landesgartenschau Kamp-Lintfort 2020 lockt ab 15. Mai 2020 in den Niederrhein

SSP-0088_15_700pixel

Weniger, aber besser

Die neue Reinoldi-Sekundarschule in Dortmund beeinflusst das Lernklima positiv

kplus_konzept_Vivawest_Nordstern_Bibliothek_15_700pixel

Agile Arbeitswelt

In spektakulärer Höhe befinden sich hier Kreativräume für kleine und größere Gruppen, die dem Austausch, der Wissensvermittlung und Vernetzung…

Selbstverständliche Eleganz

Der neu gestaltete Garten eines Wohnhauses aus den 1950er-Jahren ergibt ein stimmiges Bild

7_15_700pixelV9EpybNOicQnC

Motivierende Architektur

Der Neubau der WEB Individualschule spiegelt ihre Besonderheit wider