Kontrast im Viertel

Eine Augenweide inmitten des Blumenviertels Großhadern

_FSF4109a_15_700pixel

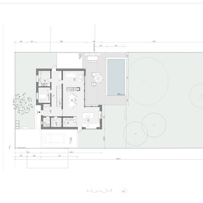
Ein ausnehmend schönes Einfamilienhaus in Großhadern zieht die Blicke auf sich. Nicht nur wegen der Ästhetik, sondern wegen seines Ausnahmecharakters. Es ist mit einer dunkelgrauen vertikalen hölzernen Hülle verkleidet, die inmitten der überwiegend weiß getünchten Siedlungshäuser einen Akzent setzt. Besonders durch den Kontrast zum leuchtend roten japanischen Feuerahorn vor dem Haus, sticht es als Blickfang deutlich aus seiner Umgebung heraus.

Der jungen Münchner Architektin Lisa Noss ist dieser Entwurf zu verdanken. Das Gebäude ist in Holzständerbauweise errichtet. Wenn die Holzrahmen stehen, wird innen die Dämmung angebracht und aussen die schützende Hülle der lasierten Lärchenholzbretter. Auch im Innern spielt Holz eine große Rolle. Ein äußerst ausgeklügeltes Raummöbel ist ebenfalls mit weiß lasierten Holzlamellen verkleidet und zoniert den sonst offenen Grundriss des Erdgeschosses. Dahinter verbergen sich eine Speisekammer, eine Gästetoilette und die Garderobe. Kaum wahrnehmbare Türen sind in die Lamellenwand integriert, man erkennt sie nur an den schwarzen Türgriffen. Genauso minimalistisch und in der Materialwahl zurückhaltend präsentiert sich der gesamte Küchen-, Ess- und Wohnbereich. Der Boden wurde in Sichtspachtelung auf zementärer Basis, in leicht unterschiedlichen Farbnuancen, im Eingangsbereich, der Küche und dem Wohnzimmer ausgeführt. Eine Treppe aus Fertigbetonstufen führt in die oberen Räume. Das Besondere im Wohnbereich ist eine fast sieben Meter breite Glasfassade zum Garten hin, mit Blick auf einen alten erhaltenen Baum, die Rasenfläche und einen Bio-Pool.  

Hier wohnt eine Familie mit drei Kindern. Entsprechend ist die Raumaufteilung im Obergeschoss für Eltern und Kinder gestaltet. Im Gegensatz zum Flur, der ganz in Weiß gehalten ist, hat jeder der Schlafräume eine andere Farbe – Grau, Grün oder ein blasses Rosé. Die Holzböden hier oben bestehen aus weiß geölten Lärchendielen. Das Bad ist mit beige-grauem Naturstein ausgekleidet, was ebenfalls ein optisches Highlight darstellt. Die Realisierung dieses Holzständerbaus mit seinen einfachen Materialien und ökologischen „Zutaten“ war 20 bis 30 Prozent kostengünstiger als die eines Massivbaus. Das Einfamilienhaus wurde deutlich schneller errichtet und durch die vielen vorgefertigten Elemente präziser gebaut.

www.lisanoss.de

Fotos:

Oliver Jaist
www.oliverjaist.com
Frank Schroth
www.frankschroth.de

(Erschienen in CUBE München 03|23)

Architektur:

Lisa Noss Architektur
www.lisanoss.de

Zimmerei/Generalunternehmer:

Projekt Holz
www.muenchen-holzhaus.de

Schreinerei:

Interior Team
www.interior-team.com

Kamin:

Thurner Ofenbau
www.thurner-ofenbau.at

Elektro:

Elektrotechnik Lehnert
www.lehnert-elektrotechnik.de

Heizung, Lüftung, Sanitär:

Loisachtaler Heizung & Sanitär Service
www.loisachtaler-haustechnik.de

Kellerbau:

D. Dietze Bau
www.dietze-bau.de

Fliesenarbeiten:

Fliesen Strobl
www.fliesen-strobl.eu

Fenster:

Velfac
www.velfac.de

Nothing found.

Lichtdurchflutete Arbeitswelt

Hocheffizientes Bürogebäude in der Maxvorstadt

Gelungene Überführung

Der Umbau eines ehemaligen Wochenendhauses begeistert die Bauherrin

Individualität im System

Grundschule verbindet Planungs- und Fertigungseffizienz mit zeitgemäßer Gestaltung

Harmonie mit Liebe zum Detail

Farbkonzepte und Kunstobjekte für ansprechende Praxisräume in Moabit

Nothing found.

2003_studentenwerk_ext_06_11_19_700pixel

Verdichtung nach Innen

Umbau, Sanierung und technische Erneuerung der Atriumhäuser in der Studentenstadt Freimann

Wein. Design. Genuss

Ein neues Restaurant in Schwabing verbindet Weinkultur und außergewöhnliches Design

OneBavariaHomes_Weitere_Apartments-4-_15_700pixel

Mit alpinem Touch

Ein Apartmenthotel nahe der Theresienwiese punktet mit einem besonderen Interieurkonzept

SWA-STUDIO_ROOT-DOWN_25_ANSICHT-GARTEN_15_700pixel

Back to the Roots

Ein Bauernhof erhält den Charme eines unaufgeregten Altbaus zurück

1_smartvoll_Mini_Apartment_Wohnraum_-C-sara_sera_15_700pixel

Wohnen im Moment

Wo der Raum sich durch seine Nutzung definiert

Wohnhaus-Kolbergerstrasse-Euroboden-I-Studio-Mark-Randel_Mark-Randel_HiRes_04a_700pixelfLH2xv8fOFpKs

Understatement im Herzogpark

Wohnen für Anspruchsvolle in bester Lage

loc1216-018_15_700pixel

Ruhig und doch lebendig

Mit kleinen Tricks wird der Sichtschutz Teil der Gartengestaltung

Blauer Raum im Blauen Land

Blauer Raum im Blauen Land

Der Erweiterungsbau des Franz Marc Museums punktet mit außergewöhnlicher Architektur