Unvermuteter Umbau
Ein altes Wohnhaus in Gerresheim erneuert sich von Innen
Kleinteilig, dunkel und auch nicht mehr so richtig zeitgemäß – das war der Ausgangszustand eines alten Satteldach-Hauses Baujahr 1955, das auf seinen architektonischen Neustart wartete. Für das auch im Inneren komplett zu sanierende Bestandsobjekt in Gerresheim konzipierte und realisierte das Düsseldorfer Architekturbüro Kremmel + Budde einen Umbau, der aus dem kleingliedrigen Zweifamilienhaus ein großzügig geschnittenes, modernes Einfamilienhaus macht.
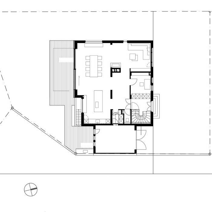
Damit Küche und Wohnbereich fließend ineinander übergehen, wurde die Erdgeschossebene in Teilen entkernt. Eine große schwellenlose Glas-Hebeschiebanlage zu Garten und Terrasse verknüpft das Innere schwellenlos mit dem Außenraum. Die Sichtachsen, entstanden durch schmale vertikale und breitere horizontale Fenster, ermöglichen den freien Blick nach außen und lassen ausreichend Tageslicht zu jeder Tages- und Jahreszeit in die Wohnbereiche strömen. Die wohltuende Weite des Hauses wird durch das Farbkonzept unterstrichen, das auf grauen Farbnuancen basiert: Eichendielen in Kaschmirgrau, gewachstes schwarzes MDF als Material für alle Einbauten und graue Betonfliesen in den Bädern kreieren einen harmonischen Farbeffekt. Auch die Küche, die zu dunklen Einbauschränken eine Kochinsel und eine maßgefertigte Sitzbank vor einem tief eingesetzten Schwingfenster erhalten hat, profitiert von der neuen, großzügigeren Raumaufteilung. Auch hier wiederholen sich die grauen Farbnuancen, die die Bauherrin mit viel Liebe zum Detail ausgesucht hat. Im Obergeschoss schließt sich der Elterntrakt mit Ankleide und einem Ensuite-Bad an: Großformatige Fliesen und eine blockartig über dem Boden schwebende XL-Badewanne geben dem Raum eine luxuriöse Note und sorgen für optische Weite. Auch hier dominieren Grautöne, die durch die brünierten Armaturen besonders edel wirken. Die Kinderzimmer liegen im nahezu komplett neu ausgebauten Dachgeschoss, das über eine neue großzügige Gaube einen idyllischen Ausblick in die grüne Wohngegend erhalten hat. Die Zimmer sind dabei so gestaltet, dass sie neben viel Stauraum und kindgerechter Deko ausreichend viel Spielfläche bieten. Beide Etagen werden über eine neu eingeführte, optisch reduzierte Treppe verbunden – mit blockartigen Eichenstufen und einer schwarz gewachsten Wange aus MDF, die sich bis auf Brüstungshöhe erstreckt. Das Fugenbild der MDF-Platten setzt sich dabei in den Fronten der Einbauschränke fort, die Stauraum unter der Treppe schaffen.Von der Straßenseite aus ist von alldem nichts zu spüren. Das Ziel, so wenig wie möglich von der historischen Ansicht zu verändern, ließ sich komplett umsetzen. Allein die frisch restaurierte Putzfassade mit dunkelgrauen Fenstern und die alte historische, natursteingerahmte Eingangstür aus Holz strahlen hier miteinander um die Wette.
Wohnfläche: 266 m²
Grundstücksgröße: 550 m²
Bauzeit: 12 Monate
Bauweise: Zweischaliger Massivbau mit Keller
Fotos:
Joachim Walter
(Erschienen in CUBE Düsseldorf 03|23)

