Singen schafft Gemeinschaft

... so Bundespräsident Christian Wulff a. D. zur Eröffnung des neuen Chorzentrums

k145_Foto_210510_Fertigstellung_BB_1028_15_700pixel

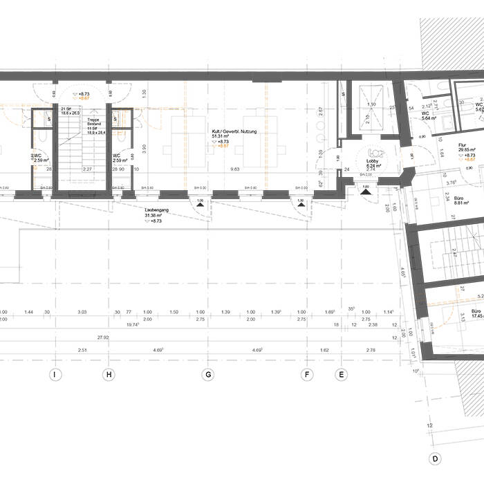
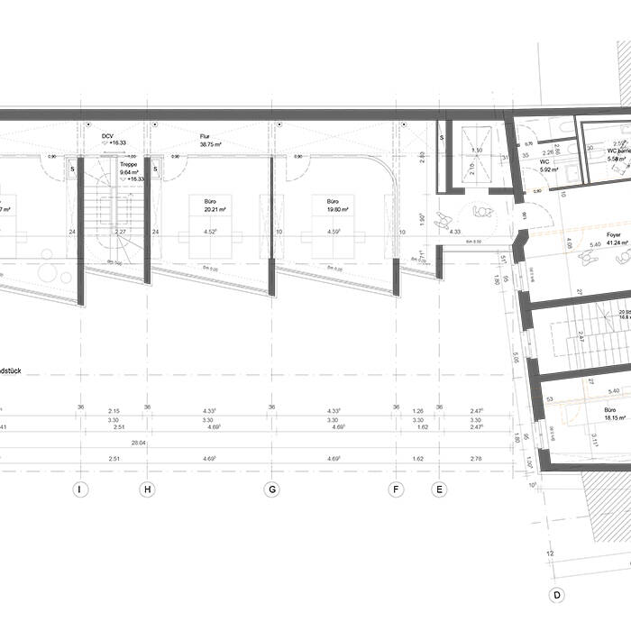
Berlin feiert euphorisch die Eröffnung einer neuen kulturellen Institution: Im Sommer 2021 wurde in Neukölln die bundesweite Zentrale des Deutschen Chorverbandes eröffnet. Der lokale Chorverband ist bereits seit 2008 in der Karl-Marx-Straße 145 beheimatet. Mit der Sanierung des Vorderhauses und der Aufstockung des Seitenflügels wurde auch die Funktion erweitert. Nun residiert hier, unmittelbar neben dem Theater „Heimathafen Neukölln“, die Kreativzentrale hunderttausender Chorsängerinnen und -sänger: Das Deutsche Chorzentrum. Das Berliner Architekturbüro Kaden + Lager wurde mit der Sanierung und Umgestaltung des Bestands und der Aufstockung des Seitenflügels beauftragt und schaffte es, sie zu einem harmonischen Ganzen zusammenzufügen. Der Neubau nimmt mit seiner Gestaltung Bezug zur bestehenden Architektur. Bei der zweigeschossigen Aufstockung handelt es sich um eine „gefaltete“ Holzkonstruktion.

Das Gebäudeensemble hat mehrere Zwecke zu erfüllen – es ist Veranstaltungsort, Treffpunkt, Aus- und Weiterbildungsstätte, Bibliothek, Musikarchiv, Büro für den Deutschen und Berliner Chorverband und auch ein musikalischer Kindergarten durfte einziehen. Das fünfgeschossige Vorderhaus und das viergeschossige Nebengebäude waren ursprünglich Wohnhäuser, die nun für die neue Bestimmung aufgearbeitet und umgebaut werden mussten. Die Fassade zur Karl-Marx-Straße blieb weitgehend unverändert und wurde denkmalgerecht saniert. Die Fensteröffnungen des Seitenflügels wurden modifiziert und vergrößert. Bei der zweigeschossigen Aufstockung sind die Fenster raumweise östlich ausgestellt, um den Blick in den Innenhof zu lenken und mehr Licht in den Räumen zu erhalten. In den Obergeschossen zwei bis fünf sind Büro- und Besprechungsräume für die unterschiedlichen Nutzer sowie ein Mehrzweckraum entstanden. Die Kita befindet sich im Erdgeschoss und 1. Obergeschoss und erstreckt sich auf beiden Geschossen über Vorderhaus und Seitenflügel. Der Seitenflügel wird durch eine außen liegende Treppe und Laubengänge auf der Hofseite erschlossen. Am Gelenkpunkt zwischen beiden Gebäuden wurde ein Aufzug für den barrierefreien Zugang angebracht. Beim Umbau des Bestandsgebäudes blieben die Räumlichkeiten weitgehend im Urzustand belassen, da repräsentative Räume ohnehin vorhanden waren. Nichttragende Wände wurden entfernt, der Bodenaufbau erneuert und die Gründung des Gebäudes unterfangen. Der alte Dachstuhl wurde durch eine sichtbare hölzerne Dachkonstruktion erneuert und ausgebaut. Ebenso wurde beim Seitenflügel vorgegangen, indem das alte Dachgeschoss zurückgebaut und durch die zweigeschossige, gefaltete Aufstockung in Holzbauweise ersetzt wurde.

www.kadenundlager.de

Fotos:

Bernd Borchardt
www.berndborchardt.de

(Erschienen in CUBE Berlin 04|21)

Nothing found.

Großzügige Wohnhalle

Ein Wohnhaus in Holzbauweise kombiniert weitläufige Ausblicke mit ausgeprägten Deckenhöhen

In den Garten fließend

Ein Einfamilienhaus besticht durch seinen großzügigen Wohnbereich

Ins Bewusstsein gerückt

Der skulpturale Empfangspavillon ist weithin sichtbar und leicht zu finden

Leben auf der Halbinsel

Neubau in nachhaltiger Bauweise denkt Gemeinschaft neu

Nothing found.

MO16-MO_Mehrfamilienhaus-02-Perspektive-Aussen_15_700pixel

Wohnen statt parken

Ein nostalgisch anmutendes Wohnhaus in einem Hinterhof

IM Dienst der Gesundheit

Neubau eines in Deutschland einzigartigen Forschungsgebäudes des DIfE

Kindgerecht gestaltet

Schule mit Kinderspielplatz mitten im Industriedenkmal

000_220630-LA-MartinJasper-0R0A9144-copy_10_700pixel

Weltweit aktiv

Wie das zu schaffen ist, erklärt Architekt Martin Jasper in diesem Podcast

16_thf_tschersich_296_DSC08649-50_52-58_15_700pixel

Der neue Himmel über Berlin

Das Informations- und Besucherzentrum in Tempelhof ist eröffnet

_VB_7109_10_700pixelHD0R29JFvv93l

Link im Prenzelkiez

Ein schmales Wohnhaus fungiert als Verbindung zwischen zwei städtebaulichen Visionen

JOHANENLIES_VALKENBURG_OAK_Copper_1_15_700pixel

Aus Altem Neues schaffen

Das Berliner Upcycling Label Johanenlies schenkt Bauholz neues Leben

Potsdam_20191015_0007_15_700pixel

Wachgeküsste Dorfschönheit

Vorderhaus und Remise wurden mit einem dritten flachen Baukörper verbunden, um Kochen, Essen, Wohnen auslagern zu können, sodass das Vorderhaus fast…