Ein Schatz im Hinterhof

Dieser Wohnungsbau zeigt, wie Nachverdichtung gelingen kann

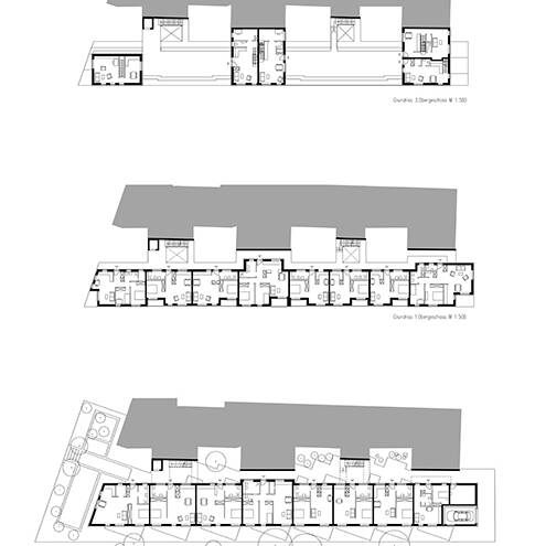
02_15_700pixelOwR3KbM9j8Evt

Hoheluft-West ist nicht nur der kleinste, sondern auch der am dichtesten besiedelte Stadtteil Hamburgs. Eine weitgehend von Kriegszerstörungen verschont gebliebene gründerzeitliche Bebauung, die zentrale Lage im Stadtraum und die lebendige, urbane Qualität des Viertels machen ihn auch zu einem der beliebtesten Wohnstandorte in Hamburg, insbesondere für junge Menschen und viele Familien.

Das auch hier noch die im Zuge der Wohnungsknappheit gewünschte Nachverdichtung möglich ist und gelingen kann, beweist die Wohnbebauung von HS-Architekten. In der geschützten Tiefe eines rückwärtigen Grundstücks mit den typischen gereihten Zeilen hinter einem Straßenblock an der stark befahrenen Gärtnerstraße implementierte das Büro diesen Neubau. Auf einem langgestreckten Grundstück zwischen zwei dieser Zeilen liegt jetzt ein langer, dreigeschossiger Gebäuderiegel, der an vier Stellen an das Bestandsgebäude anschließt. Die fünfgeschossig ausgebildeten Kopfbauten in Verlängerung der Brandwände gliedern das Volumen.

Inmitten kleinteiliger Hofsituationen mit differenzierten Durchwegungen entsteht ein ganz neuer, heiter anmutender Stadtraum. Diese geschickt komponierten hofartigen Zwischenräume schaffen Abstand zum Bestandsbau und werten ihn durch die vorgelagerten Grünflächen mit unterschiedlicher Bepflanzung auf. Sie wirken sehr lebendig und schaffen ein spannendes Wechselspiel aus Enge und Weite, Hof und Gasse. Die fußläufige Erschließung der einzelnen Wohnungen erfolgt auf der Ostseite des Neubaus, die Position der Treppenanlagen reagiert dabei wie selbstverständlich auf die Brandwände des Bestandsgebäudes. Die offenen Treppenhäuser korrespondieren atmosphärisch mit den Laubengängen und Brücken und schaffen ein Gefühl der Durchlässigkeit und Weite. Zusätzlich verbinden sie die Laubengangerschließung des 1. und 2. Obergeschosses mit großzügigen, begehbaren und begrünten Dachflächen. Diese Dachflächen stellen die Zuwegung der Maisonettewohnungen her, die im 3. und 4. Obergeschoss der Kopfbauten liegen.

Durch die Anordnung der Erschließung auf einer Seite und die Ausbildung der Grundrisse wird ein ruhiges Wohnen mit Blick auf den alten Baumbestand im Westen garantiert. Jede der Wohnungen verfügt über eine eigene private Freifläche in Form einer Terrasse, Balkon oder Loggia. Insgesamt sind auf fünf Ebenen 29 Mietwohnungen sowie eine Tiefgarage entstanden. Dem Gebäude gelingt in seiner räumlichen Ausprägung eine Balance zwischen größtmöglicher Ausnutzung des Grundstücks und verträglicher Einbindung des Neubaus in die Umgebung.

www.hs-architekten.de

Fotos:

Christian Spielmann
www.spielmann-foto.de

(Erschienen in CUBE Hamburg 03|22)

Nothing found.

Neugestaltung eines Neubaus

Nach Umbau entsteht ein maßgeschneidertertes Zuhause in Düsseltal

Farbspektrum

Ein Business Club in Citylage setzt farbenreich auf Exzellenz und Vielfalt

Ein Teil des Waldes

Umbau einer Scheune zu einem modernen Rückzugsort

Passgenau am Bach

Eine geförderte Wohnanlage in Bergisch Gladbach ordnet sich kleinteilig in ihren Kontext ein

Nothing found.

3008_Lohsepark_Adrian-Schulz_100_19_700pixel

Wohnvielfalt am Lohsepark

Eine Studierendenwohnanlage und Park-Apartments bilden den südlichen Quartiersabschluss

FRBR_220609_0218_send_A3_15_700pixel

Bezahlbar und Nachhaltig

Das Wohngebäude einer Baugemeinschaft im Baakenhafenquartier

Elbchausee trifft Reeperbahn

Boutique für Papier und Schreibgeräte erhält neuen Look

casparschmitzmorkram_oerttwiete-0001_15_700pixel

Sensible Stadtreparatur

Eine denkmalgerechte Revitaliserung zeigt, was Nachverdichtung für den Stadtraum leisten kann

cubik3_puzzlebar_4604_19_700pixel

Licht schafft Atmosphäre

In der Puzzle Bar werden die Cocktails inszeniert

Von grau zu grün

Die unglaubliche Verwandlung eines verkannten Ortes

Schaufenster der Wissenschaft

Ein weiterer Baustein für die Science City in Bahrenfeld

Ein norddeutsches Hofhaus

Moderne Interpretation schafft innen wie außen größtmögliche Privatheit