Stadt-Land-Verbindung

Ein Familienhaus bringt Wünsche und Vorgaben unter ein Dach

210917-Wohnhaus-Go-bel-HP-Siegen_MG_5688_b_thumb_thumb_thumb_19_700pixel

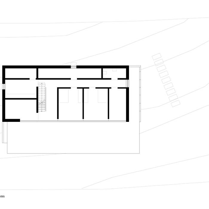
„Wenn die Architektin für die eigene Familie ein Haus planen soll, sie selbst ein Stadtkind ist und der Mann die Ruhe im Grünen sucht, haben beide Glück, wenn sie in Stadtrandlage und doch mitten im Grünen ein Grundstück finden“, beschreibt Architektin Johanna Göbel die Ausgangssituation. Zu ihrem Glück kamen noch eine Portion Kompromissbereitschaft und Kreativität hinzu, um auf dem langen, schmalen Hanggrundstück die eigenen Vorstellungen zu verwirklichen. Vorgaben der Stadt, wie die maximale Traufhöhe, der Bau von nur einem Vollgeschoss oder die Pflicht zu einem Schrägdach, beeinflussten die Planungen und schließlich das Aussehen des Hauses obendrein.

Hinter der grauen Putzfassade mit ihrem Besenstrich und dem überstandslosen, in Blech verkleideten, flach geneigten Dach öffnet sich das Erdgeschoss bis in den First. Doch das fällt kaum auf. Denn der Blick wird gleich hinausgezogen durch die hangseitig vollständig verglaste Fassade. Der offene Grundriss wird von der Treppe strukturiert, die ins Gartengeschoss hinunterführt. Sie trennt den Elternbereich auf der einen Seite vom Familienbereich mit Koch-, Ess- und Wohnzone auf der anderen. Durch die Minimierung der Verkehrsflächen reichen die 95 m² dafür vollkommen aus, zumal eine Loggia den Raum um weitere 20 m² ins Freie ausdehnt. Unten liegen die Kinderzimmer mit direktem Zugang in den Garten und ein Arbeitszimmer. Eingegraben in den Hang sind die Räume für Technik und Hauswirtschaft. Der „Flitzeflur“, wie die Kinder den langen Gang nennen, markiert die Längsachse und trennt zwischen Wohnen und Funktionsbereichen.

Wie der gesamte Entwurf zeugt auch die Materialwahl von einer Mischung aus Pragmatismus und Umsetzung gestalterischer Vorstellungen. Sichtbeton begleitet die Treppenstufen, unempfindlich gegenüber vielleicht nicht immer ganz so sauberen oder vorsichtigen Kinderhänden. Geöltes Eichenholz für Innentüren, Fensterbänke und Fußböden fügt den weißen Wänden und dem Sichtbeton eine warme Note hinzu, schafft optisch Gemütlichkeit. Damit die sich im Winter in der Innenraumtemperatur widerspiegelt, wird über Erdwärme geheizt. Und im Sommer verschattet außenliegender Sonnenschutz die großen Glasflächen. So lassen sich Sonneneinstrahlung und Tageslichteinfall steuern und der Blick kann, wann immer möglich, frei über die Streuobstwiesen wandern.

www.hparchitekten.de

Fotos:

Artur Krause
www.artvisu.de
Nicole Zimmermann
www.nicolezimmermann.de
Zon Eichen
www.zon-eichen.de

(Erschienen in CUBE Köln Bonn 03|22)

Architekten:

Held & Partner Architekten
www.hparchitekten.de

Tiefbau:

Gebr. Backmann
www.gebrbackmann.de

Rohbau:

Arns Bau
www.arnsbau.de

Zimmerei:

Zimmerei Heinz
www.zimmereiheinz-siegen.de

Dachdeckerei:

Leopold Babberger
www.babberger-leopold.de

Fenster:

SMD Konstruktion
www.smd-konstruktion.de

Schreinerei:

Zon Eichen
www.zon-eichen.de

Heizung, Sanitär:

Weisgerber
www.weisgerber-shk.de

Elektroarbeiten:

Elektro Hoffmann
www.hoffmannelektrotechnik.de

Bodenbelag:

Busch Fliesen
www.busch-fliesen.de
Bembe Parkett
www.bembe.de

Außenanlagen (Planung):

Planungsbüro Laufenburg
www.buero-laufenburg.de

Nothing found.

Harmonisch eingefügt

Neubau-Ensemble wahrt den historischen Bezug und entwickelt eigene Identität

Traditionell und Modern

Traditionell und Modern

Massivholzhaus ist der Publikumsliebling beim Rosenheimer Holzbaupreis

Erdverbundene Leichtigkeit

Winkelförmiger Bungalow auf Sockel mit Höfen bildet einen geschützten Gartenbereich

Nothing found.

LR3112-24_15_700pixel

Gemeinsames Zusammenspiel

Das Forum am Deutzer Dom schafft urbane Begegnungsräume – innen wie außen

Essbereich_15_700pixel4QPy7OC20LTVb

Dem eigenen Stil Raum gegeben

Runderneuert mit Einbaumöbeln, Beleuchtung und viel Liebe zum Detail

LoftM8598_15_700pixel

Wohnstube und Loft

Eine Wohnung im Rheinauhafen hat eine minimalistische Neuausrichtung bekommen

HPA-1342_15_700pixel

Kreativer Industriecharme

Atelierartige Gewerbeeinheiten reagieren flexibel auf den Bedarf der Mieter

02FavoritMarmagen-57-_19_700pixel

Nachhaltig in der Natur

Ein Haus in der Eifel fokussiert sich auf das Wesentliche – ressourcenschonend und ortsverbunden

Für die nächste Lebensphase

Nach dem Auszug der Kinder wächst der Wunsch nach einem neuen Domizil

simonwegener-drifte-wohnform-lieblingszahnarzt-2017-03_19_700pixel

Eine Praxis zum Gernhaben

Zahnarztpraxis überrascht mit ungewöhnlicher, gemütlicher und kreativer Einrichtung

Clara-Rllinghoff_DSC0098_15_700pixel

Herausforderung Hanggarten meistern

Hanggrundstücke sind beliebt zum Bauen. Gärtnerisch brauchen sie eine Meisterhand