Transparenz als Konzept
Die Stadtwerke Neuss haben am zentralen Standort ein weiteres Verwaltungsgebäude erhalten
Trinkwasser, Strom, Erdgas und Fernwärme, aber auch Nahverkehr, städtische Bäder und der Betrieb einer Eissporthalle – vielfältig sind die Produkte und Services, die die Stadtwerke Neuss bieten. Um die Dienste und Kompetenzen der Bereiche Infrastruktur, Tiefbaumanagement und Verwaltung an einem Standort zu bündeln, sollte in unmittelbarer Nähe zur Zentrale ein neues Bürogebäude entstehen, das 140 Mitarbeitern ausreichend Raum bietet. Die transparente Kommunikation zwischen den verschiedenen Abteilungen sollte sich dabei auch in der Architektur widerspiegeln.
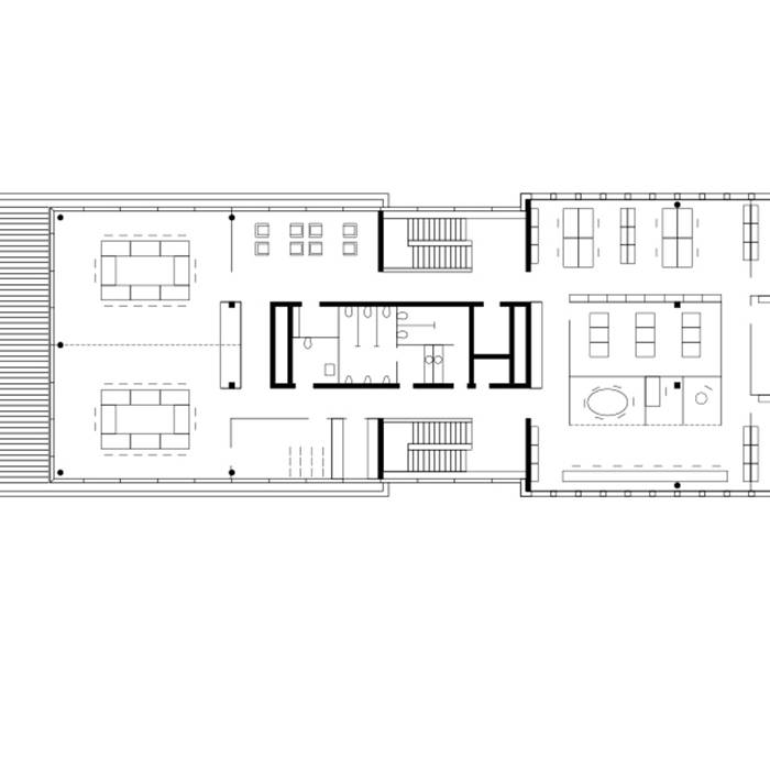
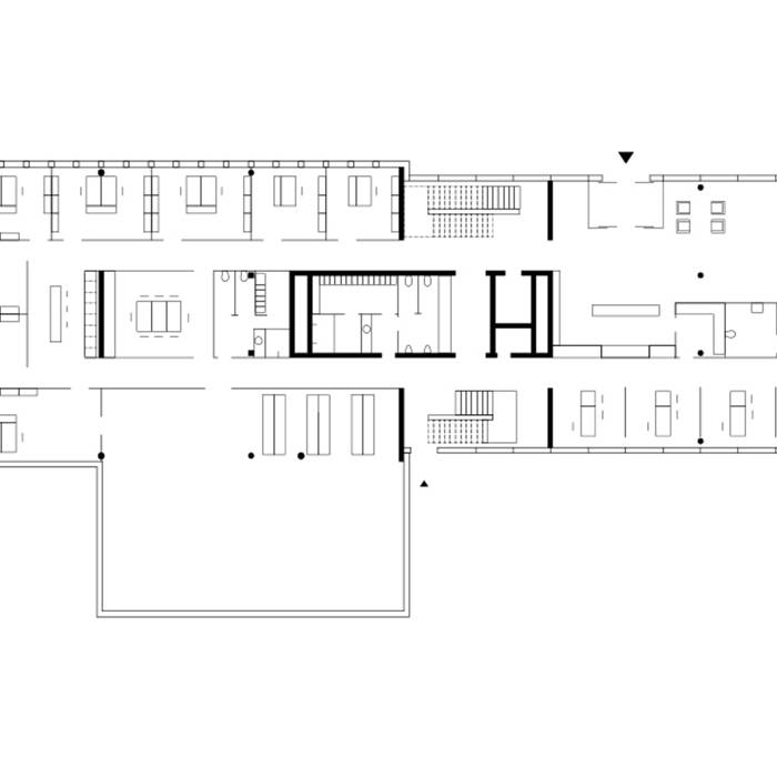
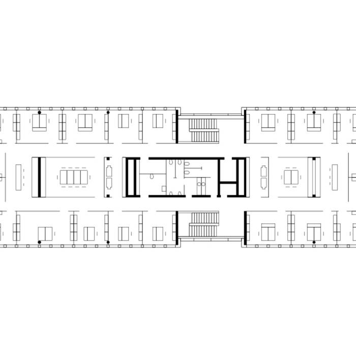
Das nach einem Vergabeverfahren mit dem Entwurf und der Realisierung beauftragte Architekturbüro Heinle Wischer und Partner aus Köln hat ein Gebäude konzipiert, das sich auf die städtebauliche Situation bezieht: An der exponierten Stelle, wo die Moselstraße auf das Grundstück trifft, bevor sie sich in zwei Richtungen verzweigt, entwickelt sich der Baukörper als zweigeteilter Quader, der – einer Flussbiegung gleich – durch einen zurückgesetzten verglasten Mäander gegliedert wird. Diese Fuge markiert die öffentlichen Bereiche des Hauses: Das Foyer im Erdgeschoss, die vertikale Erschließung mit jeweils einem Treppenhaus für Mitarbeiter und Besucher sowie die Konferenzräume in der obersten Etage. Während die Glasfuge als Pfosten-Riegel-Konstruktion ausgebildet wurde, erhielten die beiden Büroquader eine Elementfassade aus Blech mit einem Wechselspiel aus Festverglasung und einem Paneel, das sich mit einem Flügel öffnen lässt. Im Inneren des Hauses dominieren in den öffentlichen Zonen die natürlichen Materialien Holz und Beton, die einen wertigen, warmen und modernen Grundton vermitteln. Akzente werden durch farbige Möblierungen gesetzt. In den Büros wurde dagegen bewusst auf Farbe verzichtet, um eine möglichst neutrale Umgebung für persönliche Gegenstände der Mitarbeiter zu schaffen. Auf jeder Ebene befinden sich Einzel- und Doppelbüros mit Glaswänden und Tageslichtfenstern für eine helle und transparente Arbeitsatmosphäre. Die Büros gruppieren sich dabei jeweils um einen Kern mit Besprechungsräumen, Druckerräumen und Teeküchen als kommunikative Mitte. Noch größere Raumvielfalt konnte im 4. Obergeschoss umgesetzt werden: Neben drei transparenten Bürozellen finden sich hier auch großraumbüroähnliche Teamarbeitsplätze mit langem Whiteboard, in Reihe geschaltete temporäre Desks sowie ein Thinktank und ein Silent Qube zum Telefonieren. Der Konferenzraum bietet zudem bis zu 100 Personen Platz und lässt sich durch eine mobile Trennwand teilen. Von der vorgelagerten Terrasse aus öffnet sich ein beeindruckender Ausblick auf die Stadt.
Fotos:
Brigida González
www.brigidagonzalez.de
(Erschienen in CUBE Düsseldorf 04|20)

