Großzügiger Monolith

Ein Einfamilienhaus nutzt geschickt die vorhandene städtebauliche Situation

PK1118-351_42_700pixel

Eigentlich hatten die Bauherren – ein Ehepaar mit zwei Kindern – den Umbau eines Wohnhauses geplant: Mit Satteldach und Klinkerfassade sollte es klassisch gestaltet sein und doch modern wirken. Da sich auf dem Markt über Jahre kein wirklich überzeugendes Objekt fand, erwarb die Familie schließlich ein Grundstück in einem Wohngebiet etwas außerhalb von Düsseldorf. Das frühzeitig in das Projekt involvierte Ratinger Architekturbüro Lü­cker Beckmann entwickelte einen Entwurf, der die städtebauliche Situation aufgreift und großzügige wie wohnliche Räumlichkeiten mit gezielter Einbindung des Außenraums kreiert.

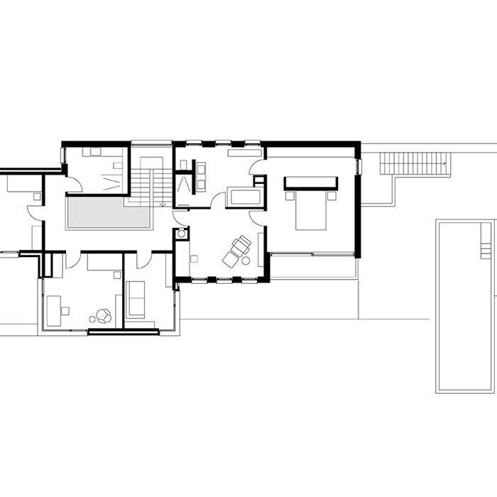
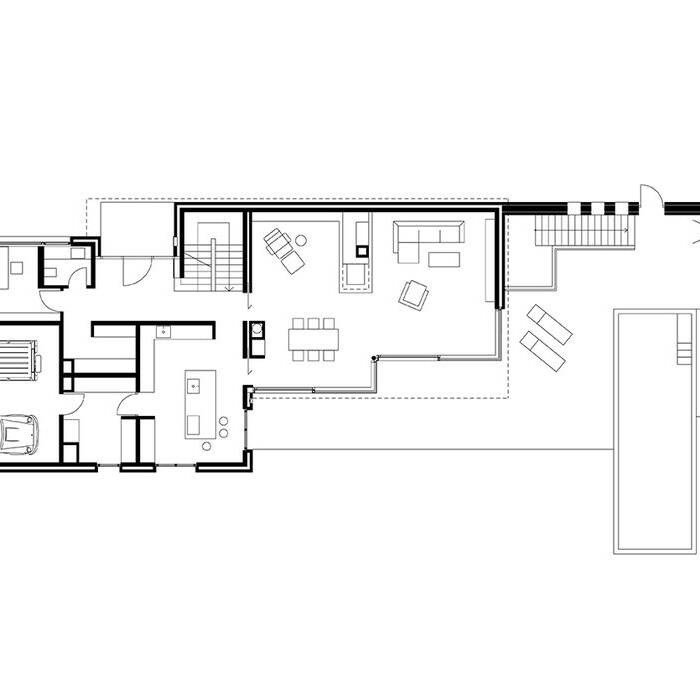
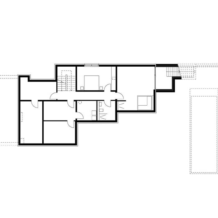
Für das Grundstück lag bereits ein Entwurf für ein zweigeschossiges Wohnhaus mit Baugenehmigung vor. Allerdings wollte das im Bebauungsplan vorgesehene Baufeld nicht so recht mit der Situation des Grundstücks an zwei Wohnstraßen zusammenpassen. Bei der Entwicklung des Raumkonzeptes wurde schnell klar, dass sich die gewünschten Wohnflächen als Satteldachlösung weder im Rahmen der vorgegebenen Baumasse noch der städtebaulichen Einbindung realisieren ließen. Stattdessen entstand ein aus den Baugrenzen gelöster, langgestreckter Baukörper mit Unterkellerung, der sowohl städtebaulich überzeugt als auch das Grundstück optimal ausnutzt. Mit seiner zweigeschossigen Kubatur fügt er sich harmonisch entlang der Erschließungsstraße ein. Zur ruhigeren Stichstraße hin passt er sich als eingeschossige Mauer an die angrenzende ebenfalls eingeschossige Bebauung an. Damit nimmt der Neubau einen maßstäblichen Lückenschluss in dem eher heterogen bebauten Wohngebiet vor. Gestalterisch fällt der solide, monolithische Erdgeschosssockel aus hellem Klinker ins Auge, über dem sich entlang der Wohnstraße ein langgestreckter Putzkörper erhebt. Durch das durchlaufende Oberlicht wirkt das Obergeschoss dabei gleichsam wie schwebend. Als Kontrast zum hellen, warmen Materialton der Fassaden wurden die Fenster mit schwarz gepulverten Aluminiumrahmen ausgeführt. Die Lochfassade des langgestreckten Putzkörpers wird durch die Rahmung der Fenster mit Kupfereinfassungen dagegen besonders unterstrichen. Zeigt sich das Gebäude straßenseitig eher zurückhaltend und introvertiert, so öffnet es sich bereits im Eingangsbereich über eine zweigeschossige Halle mit Glaskuppeln in den Himmel. Klare Grundrisse passen sich im Zusammenspiel mit einer präzisen Zonierung dem Alltag der Familie an und lassen die verschiedenen Funktionen ineinanderfließen. Großzügigkeit wird dabei zu Wohnlichkeit und Schlichtheit mit Flexibilität im Alltag sowie sich ändernden Lebenssituationen kombiniert. Durch die transparente Gartenfront entstehen fließende Übergänge zum großzügigen Außenbereich mit Poolanlage. Straßenseitig wird der Blick dagegen präzise auf einzelne Blickpunkte gelenkt – so etwa beim großformatigen Treppenhausfenster, das das Grün einer benachbarten Baumkrone einfängt. Auch im Inneren des Gebäudes finden sich die Materialien der Außenhülle wieder: Einbaumöbel und Böden greifen das Eichenholz der Eingangstür auf. Die hellen Klinker finden als Riemchen am offenen Kamin Verwendung. Der Sockel aus Grauwacke nimmt dazu das Material des Zugangspodestes auf. Schwarz gepulvertes Metall taucht schließlich in Tragkonstruktion, Einbaumobiliar und Türen wieder auf. So entsteht ein ganzheitliches Konzept, das innen und außen schlüssig miteinander verzahnt.               

www.lbarchitekten.de

Wohnfläche: 370 m²
Bau- und Planungszeit: 24 Monate
Bauweise: Massivbau
Energiekonzept: Gasbrennwerttherme mit Solarthermie, zentrale Lüftungsanlage

Fotos:

Philip Kistner
www.philipkistner.com

(Erschienen in CUBE Düsseldorf 04|22)

Architekten:

Lücker Beckmann Architekten
www.lbarchitekten.de

Küchen- und Badmobiliar:

Tischlerei Clemens
www.tischlerei-clemens.de

Küchentechnik:

Bora
www.bora.com
Siemens
www.siemens.com

Armaturen:

Küche:
Quooker
www.quooker.de
Bad:
Dornbracht
www.dornbracht.com
Keuco
www.keuco.com

Sanitärkeramik:

Alape
www.alape.com
Geberit
www.geberit.de

Kamin:

Kaminbau Schumacher
www.ofenbau-schumacher.de

Swimmingpool:

SSF
www.ssf-pools.de

Sauna:

Anton Müther Saunabau & Wellnessanlagen
www.muether.de

Schalter, KNX-Gebäudeautomation:

Gira
www.gira.de

Klinker:

Randers Tegl
www.randerstegl.de

Klinkerarbeiten:

Isringhaus
www.klinkerarbeiten-isringhaus.de

Fenster:

Heroal
www.heroal.de

Dachdeckerei:

Geister
www.geister-bedachungen.de

Heizung, Lüftung, Sanitär:

Stindt
www.stindt-wasser-waerme-klima.com

Elektro:

Thoma Elektroanlagen
www.thoma-elektroanlagen.de

Außenputz:

Hafeneger
www.stuck.de

Schlosserei:

Peter Schmitz und Sohn
www.schmitzundsohn.de

Parkett:

Fussbodenbau Seggewiss
www.seggewiss.com

Nothing found.

Gelungene Überführung

Der Umbau eines ehemaligen Wochenendhauses begeistert die Bauherrin

Individualität im System

Grundschule verbindet Planungs- und Fertigungseffizienz mit zeitgemäßer Gestaltung

Harmonie mit Liebe zum Detail

Farbkonzepte und Kunstobjekte für ansprechende Praxisräume in Moabit

Wohnraum durch Wandel

Verblüffende Metamorphose – vom „Diskreten Haus“ zum mehrgeschossigen Wohnhaus

Nothing found.

Moderner Lernort

Der Erweiterungsbau eines Gymnasiums in Ratingen berücksichtigt pädagogische Konzepte

Leinen los für ein anderes Leben

Mit der Pandemie kam das Homeoffice, vorher schon New Work und nun vielleicht auch New Living?

_MG_3295_15_700pixel

Kompaktes Lernzentrum

Das Städtische Gymnasium Haan hat einen nachhaltigen Neubau bekommen

DSC05131_15_700pixelgnqisPEu7ItSC

Der Hof neu gedacht

Eine Wohnanlage besticht durch ihre gemeinschaftlichen Innen- und Außenräume

Aktiv und robust

Neues Wohnquartier an der Wuppertaler Nordbahntrasse nimmt Fahrt auf

SGA_Huckauf_Ansicht-Entre-e-Kopie_15_700pixel

Netzwerk als Leitidee

Das Gebäude einer Firmenzentrale in Langenfeld spiegelt die Unternehmensphilosophie wider

Strassenansicht_19_700pixel

Mehr Platz für Kinder

Grundschule wird um dreiteiligen Neubau inklusive Sporthalle erweitert

LR3151-14_19_700pixel

Vater und Sohn

Um Sankt Konrad von Gottfried Böhm spannt sich ein neuer Platz von Paul Böhm auf