Funktions- und Landschaftsbezug

Firmengebäude mit Verwaltung und Lagerlogistik orientiert sich zum Naturschutzgebiet

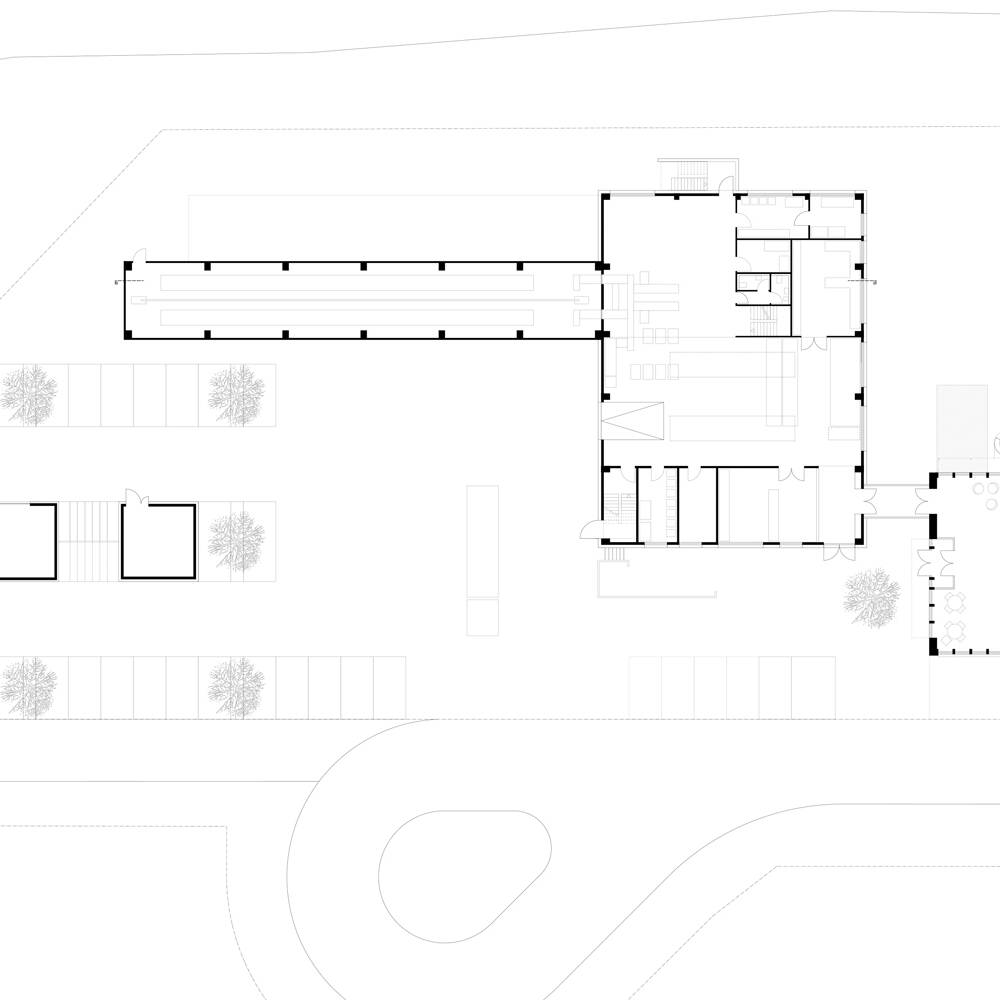
Mit dem Wunsch nach Erweiterungsmöglichkeiten, die im Bestandsgebäude nicht umsetzbar waren, suchte die IDG-Dichtungstechnik nach einem Grundstück für einen Neubau. Das Unternehmen wurde in einem neu erschlossenen Gewerbegebiet in Albershausen am Rande eines Naturschutzgebietes mit Blick auf die Schwäbische Alb fündig. Für die Bebauung des in der Länge nach Süden orientierten Grundstücks wünschte sich der Bauherr, dass das Firmengebäude gut in die reizvolle Landschaft eingebunden wird und möglichst alle Mitarbeitenden von der Umgebung in ihrem Arbeitsalltag profitieren können. Außerdem sollte das Gebäude technisch und energetisch zukunftsweisend ausgeführt werden.

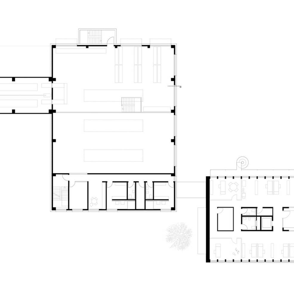
Das Architekturbüro Offterdinger entwickelte eine klare Struktur aus drei gestaffelten Hauptbaukörpern, die die Bereiche Verwaltung, Logistik und automatisches Kleinteilelager aufnehmen. Ausgeführt in Beton, Holz und Aluminium, kombiniert mit einem nachhaltigen Energiekonzept, erreicht das Produktions- und Verwaltungsgebäude den geförderten KfW 40-Standard. Dabei sorgt Erdwärme sowohl für die Heizung als auch die Kühlung über Heiz-/Kühldecken und Betonkernaktivierung. Die Lüftungsanlagen arbeiten mit Wärmerückgewinnung und die Photovoltaikanlage auf dem Flachdach liefert den benötigten Strom – auch für die acht Ladestationen für E-Autos. Ansonsten sind die Dachflächen begrünt. Die PV-Anlage versorgt auch die Oxy-Reduct-Anlage, die durch Reduzierung von Sauerstoff im vollautomatischen Hochregallager hilft, Brände zu vermeiden.

Die Verwaltungsbereiche sind überwiegend in Großraumbüros und ergänzenden Einzelbüros umgesetzt. Im Erdgeschoss befinden sich die Büros der Geschäftsleitung mit anschließender Terrasse im Garten. Über Terrassen und Balkone können auch die Mitarbeitenden von ihren Büros ins Freie gehen. Die meisten bodentiefen Fenster sind öffenbar und bringen viel Tageslicht in die Arbeitsbereiche. In Hof und Garten wurden verschiedene Pausenbereich integriert. Im Inneren steht allen Mitarbeitenden ein Fitnessraum und im Erdgeschoss eine Cafeteria mit Terrasse sowie Teeküchen und Aufenthaltsbereichen zur Verfügung. Für die Betreuung ihrer Kinder können die Beschäftigten den „Kids-Room“ nutzen.

www.idg-gmbh.de
www.architekt-offterdinger.de

Fotos:
Oliver Rieger
www.oliverrieger.com

(Erschienen in CUBE Stuttgart 04|24)

Nothing found.

Preziose unterm Dach

Ein Spitzboden in einem Mehrfamilienhaus in Essen-Rüttenscheid wird zum Vorzeigeprojekt

Vergangenheit & Zukunft

Modellprojekt zeigt, wie sakrale Bestandsarchitektur transformiert werden kann

Nachhaltige Metamorphose

Das Büroensemble „Lyght“ in Golzheim erweitert und revitalisiert den Bestand aus den 1970er-Jahren

Nothing found.

Im besten Sinne einfach

Split-Level-Haus auf geneigtem Grundstück mit geschickt geschaffener Privatheit im Garten

DJI10576_15_700pixel

Wunsch erfüllt

Familie freut sich über pures Urlaubsambiente im Garten

Ästhetisch und funktional

Feuerwehr und Bauhof profitieren von Synergieeffekten des gemeinsamen Standorts

ZB718-07_15_700pixel

Saniert nach New Work-Prinzipien

Neue Unternehmensheimat mit inspirierenden Arbeits- und Kommunikationsflächen

CF001345_15_700pixel

Großes Haus, kleine Stadt

Ein trotz seiner Größe überschaubarer Ort, an dem es leicht fällt, sich zu orientieren, der geschützte Räume, aber auch Weite bietet und an dem man…

IMG_0059_b-Kopie_15_700pixel

Einfach überraschend

Polygonale Raumkörper erzeugen ein Wechselspiel aus geschlossenen und offenen Volumen

KronprinzPopUp_19_700pixel

Von Stuttgartern für Stuttgarter

Im Kronprinz Pop Up Store präsentieren kreative Köpfe ihre einzigartigen Produkte

2019_07_andoffice_Haus-Stelzer5839-1_15_700pixel

Leicht und Geerdet

Umbau und Sanierung einer Doppelhaushälfte aus dem Jahr 1910