Offen & zoniert
Materialien und Volumen definieren die Identität dreier Kuben einer Villa
Dass es möglich ist, einen großzügigen, offenen und fließenden Raum zu schaffen, der innen und außen miteinander verbindet und gleichzeitig Geborgenheit und individuelle Rückzugsbereiche schenkt, zeigt das Haus von FFM-Architekten Tovar + Tovar. Die auf dem Frankfurter Riedberg liegende Villa folgt dabei den Vorgaben des Gestaltungshandbuches „Villen hoch 3“ und damit dem Stilmittel der additiven Bauweise. Weitere bauliche Vorgaben der HA Hessen Stadtentwicklungsgesellschaft waren unter anderem die rechteckige Grundform und in das Gebäude integrierte Garagen. Nebenanlagen wie Müllabstellraum und Fahrradabstellplätze sollten ebenfalls architektonisch in das Gesamtkonzept integriert werden.
Für ihre Bauherren haben die Architekten einen zweigeschossigen Basiskubus geplant, in den der zweite, eingeschossige Garagenbaukörper aus Sichtbeton und ein dritter, mit Paneelen verkleideter Kubus im Erdgeschoss eingeschnitten sind. Den hellen Basiskubus, in den wiederum ein offenes, nicht unterbautes grünes Atrium eingeschnitten ist, reduzierten sie dabei auf der Südseite (Hauptfassade) zu einem schwebenden Rahmen.
Materialien und Volumen definieren die Identität der drei Kuben: Der Basiskubus hat eine hell geputzte Oberfläche und dominiert das Obergeschoss, der kleinere Dunkelkubus ist an allen Seiten zurückgesetzt und seine mit nichtglänzenden Metallpaneelen verkleideten Oberflächen tauchen im Obergeschoss nur als eingerückte Flächen auf. Die Hälfte des Garagenkubus an der Grundstücksgrenze sitzt unter dem Hauptbaukörper und ist aus Sichtbeton gebaut. Der Verband von Fensterflächen und eingerückten Flächen nimmt die Farbfamilie der Fassadenelemente des Dunkelkubus auf, das Garagentor die Schalhaut des Sichtbetons.
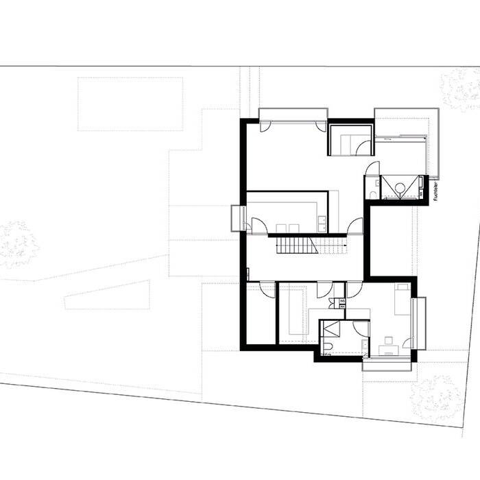
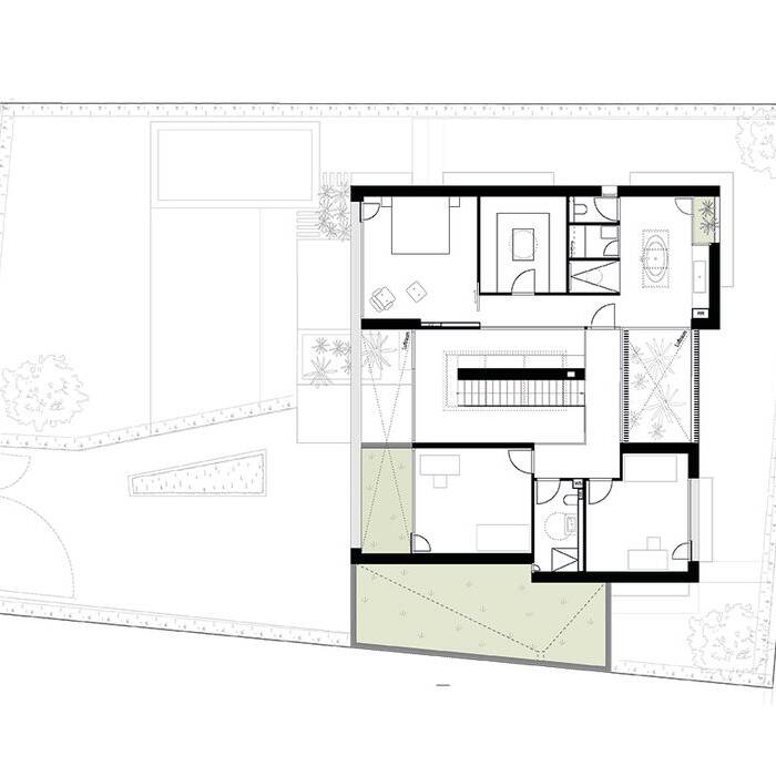
Wohnbereich und Terrasse verschränken sich gestalterisch und funktional mit dem Hauptbaukörper zu einer Einheit. Durch Rücksprünge in der Fassade entstehen überdachte Außenräume für Terrasse und Eingang. Ein zweigeschossiges Atrium, das sich über das Gebäude erstreckt und von dem aus sämtliche Bereiche des Hauses erschlossen werden, verbindet diese beiden Freibereiche. Das Erdgeschoss bildet mit Küche, Essen und Wohnen einen großen offenen räumlichen Zusammenhang, der sich bis in den Gartenbereich – lediglich unterbrochen von den bodentiefen Verglasungen – fortstetzt.
Zentrales Element im Inneren des Basiskubus ist ein neun Meter hohes kubisches Sichtbetonelement, an dem eine offene Treppe vom Untergeschoss bis in das erste Obergeschoss führt. Einem offenen Raumteiler gleich zoniert es das Gebäude zwischen Eingangs- und Wohnbereich in offene und Rückzugsbereiche.
Wohnfläche: 389,55 m²
Grundstücksgröße: 663 m²
Bauzeit: 2018–2020
Bauweise: Massivbauweise
Energiekonzept: Fernwärme
Fotos:
FFM-Architekten, Markus Raupach
(Erschienen in CUBE Frankfurt 03|22)

