Spiel mit Quadern
Ein Einfamilienhaus zeigt Individualität bis ins kleinste Detail
Die Außenhülle eines Gebäudes und die Nutzung des Innenraums können nicht voneinander getrennt geplant werden. Dies ist die Herangehensweise des One!Contact-Planungsbüros aus Bochum, das letztlich zu so gelungenen Entwürfen führt wie bei diesem Einfamilienhaus in Essen-Werden. Das durch verschiedene quaderförmige Baukörper konzipierte Haus ist in einer großzügigen Neubausiedlung mit bereits bestehenden Ein- und Zweifamilienhäusern nahe des Zentrums verortet. Der Bebauungsplan erlaubt unterschiedliche Dachformen, wobei die meisten Neubauten mit Flachdächern geplant wurden. Dies ist auch bei diesem Haus mit seiner klaren, schnörkellosen Linienführung der Fall, welches sich auf einem großzügigen Grundstück mit 930 m² in leichter Hanglage befindet.
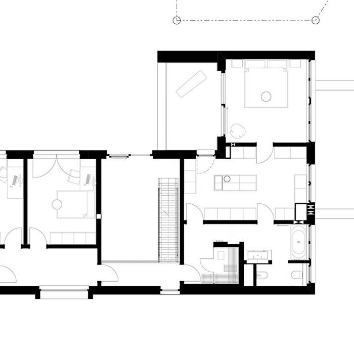
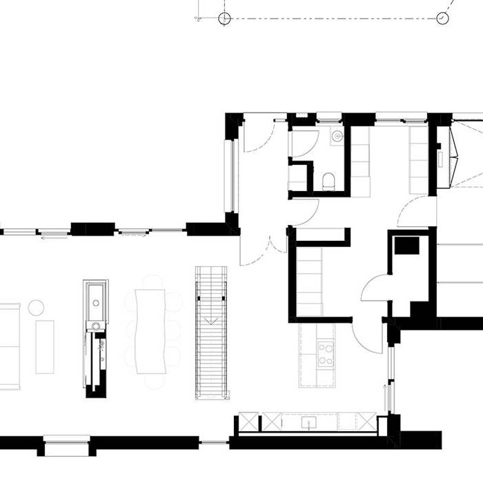
Die Baukörper, die sich über- und nebeneinander platziert zu einem Ganzen verbinden, werden über den nordwestlich gelegenen Eingangsbereich sowie die Doppelgarage erschlossen. Diese grenzen, mit einem großzügigen gepflasterten Vorplatz versehen, den Wohnbereich zur Straße hin ab. Darüber befindet sich ein auskragender, sich farblich abhebender Überbau, der das Obergeschoss mit einem uneinsehbaren Balkon bildet. Im Eingangsbereich befinden sich Garderobe, WC und der Zugang zur Garage. Geradeaus offenbart sich dann eine beeindruckende Szenerie. Durch ein doppelflügeliges Glaselement blickt man unmittelbar in den Wohnraum mit einer imposanten, sich über sechs Meter Höhe erstreckenden Galerie, durch die sich eine Doppelholmtreppe mit Stufen aus warmem Eichenholz emporstreckt. Direkt darüber platziert ist ein Lichtband im Dach, das die Treppensituation prominent ins Licht rückt. Entsprechend den Wünschen der Bauherren wurde der Wohnraum in einzelne Zonen gegliedert. Wohn- und Essbereich wurden durch eine bis unter das Dach reichende Wand optisch getrennt, die mehrere Funktionen vereint. Sie dient zugleich als TV- und Multimediawand, ist mit einem beidseits einzusehenden Kamin mit Gasbefeuerung ausgestattet und bietet mit maßgefertigten Auszügen viel Stauraum. Sämtliche Böden bestehen aus Sichtbeton. Zur ebenfalls maßgefertigen Küche mit Kochinsel, Weinklimaschrank und Dry Ager kommen ein weiterer abgeschlossener Raum, Hauswirtschaftsraum und Heizraum hinzu. Im Obergeschoss befinden sich die privaten Räume wie Kinderzimmer und kindgerechtes Bad, welche durch eine Galerie mit dem Elterntrakt verbunden sind. Schlafzimmer und Balkon, ein Ankleidebereich mit ausgeklügelten Einbauschränken und Vitrinen sowie ein Wellnessbad mit integrierter Saunakabine lassen keine Wünsche offen. Eine intelligente Lichtarchitektur mit KNX-Bussystem und sensorgesteuerte Sicherheitstechnik kommen ergänzend hinzu. Das Haus ist entsprechend des KfW-Effizienzstandards 40 Plus erstellt.
Nutzfläche: 282 m²
Grundstücksgröße: 930 m²
Bauzeit: 12 Monate
Bauweise: massiv
Energiekonzept: KfW-Effizienzhaus 40 Plus
Fotos:
Jannis Wiebusch
www.janniswiebusch.de
(Erschienen in CUBE Ruhrgebiet 01|22)

