Fit in jeder Hinsicht

Großzügige Therapie- und Trainingsmöglichkeiten in der Luxemburger Galerie in Kevelaer

AHU-2020-12-21-1215-54_20_700pixel

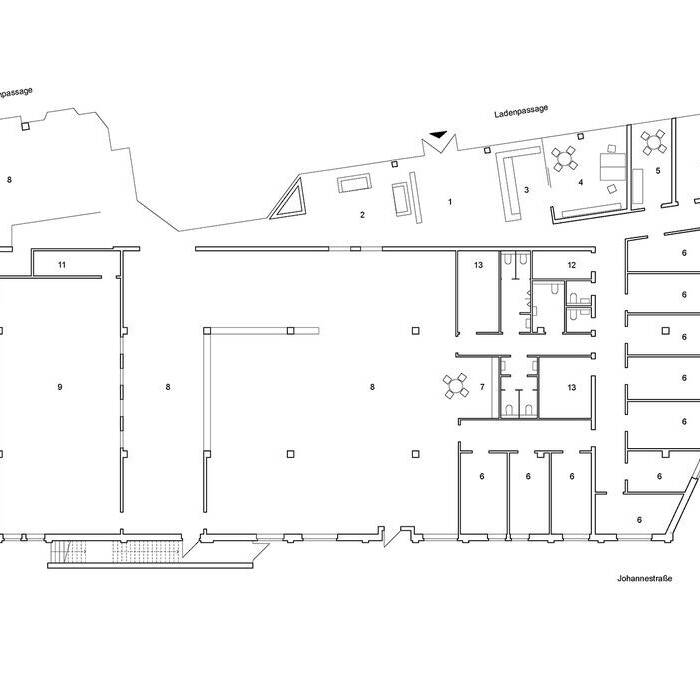
Die Luxemburger Galerie in Kevelaer ist ein Gebäudekomplex, der vor 25 Jahren auf einer ehemaligen gewerblich genutzten Fläche erbaut wurde. Das Grundstück grenzt an das geistliche Wallfahrtszentrum mitten in der Innenstadt und bietet ein vielschichtiges Angebot an Einzelhandel, Hotel, Arzt- und Therapeutenpraxen, Restaurants und Cafés sowie betreutes und klassisches Wohnen. Im Laufe der Jahre durchlebte der Einzelhandelanteil eine Umstrukturierung hin zur Fokussierung des medizinisch-therapeutischen Sektors. Für die Inhaber von Myokraft war dies die Möglichkeit, ihre klassische Physiotherapiepraxis zu erweitern und neu zu positionieren. Heute, nach der dritten Erweiterung, ist Myokraft der flächengrößte Gesundheitsanbieter im Gebäudekomplex, der Therapie und Training miteinander kombiniert. Der Architekt Patrick Lehn hat hier im Auftrag des Bauherrn ein Umfeld geschaffen, das die Philosophie des Gesundheitsanbieters herausstreicht.

Die Gesamtfläche beläuft sich auf rund 1.200 m², als Trainingsfläche werden ca. 730 m² genutzt. Im Zuge der Erweiterungsmaßnahmen wurde der Eingang von der Seitenstraße in die Passage verlegt, um deren fußläufige Frequentierung zu erhöhen. Für Lehn galt es, das Projekt im laufenden Betrieb zu stemmen, was durch temporär leerstehende Ausweichflächen gelang. Baurechtlich war eine Lüftungsanlage vorgeschrieben, die aus Platzgründen in die Nutzfläche integriert werden musste und nun unter der Decke hängt. Mit ihrer schwarzem Klavierlack ähnlichen Beschichtung passt sie perfekt zur im matten Schwarz gestrichenen Decke, die, ganz Industrielook, auch Sanitär- und Elektroleitungen sichtbar macht. Der Boden erhielt einen strapazierfähigen Belag aus grauem Linoleum, die Trainingsräume wurden mit einem speziellen schallabsorbierenden Bodenbelag in Schwarz ausgekleidet. Im Eingangsbereich leuchtet groß das Logo von Myokraft. Die Beleuchtung der Innenräume erfolgt über ein schwarzes, abgehängtes Lichtschienensystem welches mit LED-Streifen bestückt ist. Im Functional-Training-Bereich wurden zusätzlich grün leuchtende LED-Bänder in den Boden eingelassen. In der Wartelounge hängen atmosphärisch wirkende Pedelleuchten. Ein schönes Detail ist die vom Betreiber eingebrachte Idee, die Raumteiler zwischen den unterschiedlichen Trainingsflächen durch eine gespannte Struktur aus Spanngurten und Turnringen umzusetzen. Die Liebe zum Detail reicht bis zu den Schließfächern. Die Rückwände in den Umkleiden zeigen im geöffneten Zustand Schwarz-Weiß-Fotos von verschiedenen populären Sportlern und Sportlerinnen.

www.patricklehn.com

Fotos:

Axel Hundertmark

(Erschienen in CUBE Ruhrgebiet 02|21)

Nothing found.

Nachhaltige Metamorphose

Das Büroensemble „Lyght“ in Golzheim erweitert und revitalisiert den Bestand aus den 1970er-Jahren

Harmonisch eingefügt

Neubau-Ensemble wahrt den historischen Bezug und entwickelt eigene Identität

Traditionell und Modern

Traditionell und Modern

Massivholzhaus ist der Publikumsliebling beim Rosenheimer Holzbaupreis

Nothing found.

MWB_neu_01_15_700pixel

Der Besuch wird zum Erlebnis

Der Neubau der MWB-Geschäftsstelle wurde kundennah und flexibel gestaltet

Architektur mit klarer Linie

Zeitlos gestaltet, präzise ausgeführt und konsequent gedacht – innen wie außen

Ein Tag Ferien im Park

Der Revierpark Mattlerbusch in Duisburg ist ein riesiger Garten für alle

Kresings_RaspberryHaus_MS_RomanMensing_0183_15_700pixel

Ein Haus sieht rot

Intelligentes Konzept zeigt Lösungsansätze für gefragten Wohnraum im urbanen Raum auf

8_15_700pixelH3EIbQ0hfT1CW

Klare Formensprache

Ein Mehrfamilienhaus in Moers huldigt dem Bauhausstil und ist barrierefrei

DSC06240_b_15_700pixel

Ein atmendes Haus

Das mehrgeschossige Holzhaus in Haltern am See hat nicht nur für NRW Vorbildcharakter

Investition in die Zukunft

Investition in die Zukunft

Eine energetische Sanierung steigert bei fünf Mehrfamilienhäusern die Lebensqualität