Dreifacher Lückenschluss

Blockrandschließung, Ausdehnung des Dachgeschosses und ein zusätzliches Rückgebäude

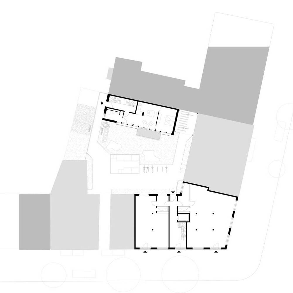
Ein neues Gebäude in eine Umgebung mit Bestandsbauten zu „implantieren“ bedarf eines großen Feingefühls seitens der Planenden. Es darf sich nicht hervortun, muss sich anpassen, sollte prägnant sein, modern und doch zurückhaltend. Ein Beispiel dafür findet sich in der Baumschulenstraße in Treptow. Das junge Büro Zappe Architekten & Partner erhielt den privaten Auftrag eine Lösung für ein Eckgebäude zu entwickeln, das den Blockrand schließt und auf beiden Seiten an seine Nachbarn andockt.

Der Mehrgeschosswohnungsbau – und das ist eben die Kunst – fällt zunächst gar nicht auf. Erst bei näherer Betrachtung wird klar, dass er eine völlige andere, eigenständige Sprache spricht und sich sehr wohl behaupten kann. Viele Jahrzehnte trennen ihn von den Gebäuden seiner Umgebung – Vorkriegsbauten zumeist in einem eher kleinbürgerlichen Kiez, der sogenannten „einfachen Leute“. Schon der graue Putz steht im Gegensatz zu den beige-braun-gelblichen Fassaden rundum. Strukturierte Betonfertigteile im Sockelbereich gehen über in Kammputz und in glatten Putz in den oberen Geschossen. Die Fenster wurden von den Architekten selbst entworfen. Optisch gleichen sie früheren Industriefenstern mit Metallsprossen in einem ungewöhnlichen Format. De facto handelt es sich um Doppelkastenfenster: Außen zwei Scheiben Isolierglas im GFK-Rahmen (glasfaserverstärkter Kunststoff) und innen Einscheiben-Fensterrahmen. Die Fenster wurden eigens mit dem Tischler entwickelt. Sie dienen als Schutz gegen die hohe Lärmbelastung der vielbefahrenen Straße und auch vor Hitze und Kälte. Auf Wunsch des Bauherrn wurde der Schriftzug „Tolerance – No Hate“ an der Fassade angebracht. In der Traufhöhe, passt sich das Gebäude an, allerdings wurde zugunsten der Raumhöhe, wie sie sonst nur in Altbauten üblich ist, auf eine Etage verzichtet. Das wie aufgesetzt wirkende Dachgeschosse mit seiner nur leichten Schräge gleicht einem Mansarddach und ermöglicht Räume mit nur minimalen Dachschrägen. Das Besondere ist, dass sich das Dachgeschoss auf die Nachbarhäuser ausdehnt und ihnen ein zusätzliches Geschoss „aufsetzt“. Das Erdgeschoss bleibt gewerblicher Nutzung vorbehalten. Ein Café namens „Blüte“ ist dort eingezogen und macht die Ecke lebendig. Damit nicht genug: Der Innenhof wurde genutzt, um zusätzlichen Wohnraum zu schaffen. Eine viergeschossige Remise, bodentief verglast und mit Absturzgittern bewehrt, lässt den Bewohner:innen mit loftartigen offenen Grundrissen freie Hand für die Raumgestaltung.

www.zap-architektur.com

Fotos:
Caroline Prange
www.carolineprange.com

(Erschienen in CUBE Berlin 02|25)

Architektur:

Zappe Architekten & Partner
www.zap-architektur.com

Beton FT-Fassade:

GBJ Geithner Betonmanufaktur Joachimsthal
www.geithnerbau.de

Schreinerei:

Riessbeck
www.riessbeck-moebel.de

Aufzug:

Kone
www.kone.de

Außenanlagen:

Holger Schulz Garten- und Landschaftsbau
www.hsgalabau.de

Heizung, Lüftung, Sanitär:

Jürgen Bulst Gesellschaft für Heizungstechnik
www.bulst-gmbh.de

Rohbau/Putzfasade:

Huta Hegerfeld Baugesellschaft
www.huta-bau.de

Bodenbelagsarbeiten:

Tischlerei Holzbock – Erdal Güven
www.tischlerei-holzbock.de

Elektro:

Der Elektromeister, Robert Engelhardt
www.elektro-bernau.de

Sicherungsnetze Treppenhäuser:

Jakob
www.jakob.com

Nothing found.

Neuer Treff für Kids

Die „Neue 18“ – Jugendfreizeiteinrichtung in der Spandauer Neustadt

Zweieiige Zwillinge

Auf einem geteilten Grundstück entstehen zwei grundverschiedene Einfamilienhäuser

Bitte keinen Pool aus dem Katalog

Poolkonzept für ein Grundstück mit unterschiedlichen Höhen und Tiefen

Gekonnte Inszenierung

Besonderes Design für die 50. Filiale einer Bäckerei rückt die Ware in den Mittelpunkt

Nothing found.

Batek_VaayStore_MarcusWend_DSC09696_15_700pixel

Schlichte Bühne

Neuer Flagship Store mit reduzierter Gestaltung für starke Produktpräsentationen

DJI_0826_bird-s-eye-view-garden-house_15_700pixel

Gemeinsam für eine Baugruppe

Erfreulich virtuos: Ein verspieltes und effizientes Ensemble für 15 Parteien

Villa-Jacobs_7318_18_700pixel

Prachtgarten revitalisiert

Die neue Stiftung Ludes wandelt den Park der Villa Jacobs in einen Skulpturenpark um

Neu durchkomponiert, in Farbe

Ein Apartment als urbane Bühne für das tägliche Großstadtleben

IMAG0539_15_700pixel

Vielfältige Gartenlandschaft

Grasgrau und Atelier Loidl entwickelten zusammen mit den Bauherren ein Konzept für einen modernen Bauerngarten mit vielen Rosen und Hortensien im…

Immer der Brandwand nach

Innenausbau bringt viel Holz, Nischen und sogar eine Wasserstelle in die Altbauwohnung

Kleinstadt in der Großstadt

Wohnbauprojekt „Schoenegarten“ überzeugt durch gestalterische Vielfalt