Differenzierter Auftakt

Einfamilienhaus schafft viel Raum, integriert natürliches Licht und vernetzt Innen und Außen in der Stadt

Als „Anführer“ einer Reihe an Wohnhäusern nimmt sich dieser Neubau heraus, anders zu sein. Sowohl in der Materialität als auch bei der Dachform und sogar beim Baufenster zeigt sich der schlichte, schwarze Kubus individuell. Ausgesprochener Wunsch des Bauherren-Paares war es, Raum zum Leben und Arbeiten zu schaffen, der die Natur in einer Form erlebbar macht, wie es im städtischen Kontext eigentlich kaum möglich ist. Inspiriert durch die wirkungsvolle Schlichtheit der Architektur eines Tadao Ando, sollten in ihrem neuen Domizil die Materialien und Formen sowie das Licht intensiv erlebbar sein.

Vor dem Bau – den der Bauherr auch als Architekt plante – galt es, die Beschaffenheit des Baugrundes zu prüfen. In Stuttgart nutzte man nach dem 2. Weltkrieg den reichlich vorhandenen Bauschutt, um Gelände zu modellieren. Auch hier kam auf dem Baugrundstück bei den Grabungen ein mit Bauschutt verfüllter Bombenkrater zum Vorschein. Um ein sicheres Fundament für das Wohnhaus mit Keller erstellen zu können, musste dieser zunächst komplett ausgehoben werden. Der Baukörper des Wohnhauses besteht aus Beton, der nach innen überwiegend sichtbar und spürbar ist. Beton ist gegossener Fels. Mit ihm verbinden die Bewohnenden Stabilität, Ruhe und Sicherheit. Beton wirkt außerdem als Speichermasse und reguliert Temperaturschwankungen – er unterstützt richtig eingesetzt das Konzept des Niedrigenergiehauses. Die Solarthermie-Anlage wandelt die Sonnenenergie zur Beheizung des Gebäudes und Bereitstellung von Warmwasser um. Als „intelligentes“ Gebäude im KNX-Standard ausgelegt, sind die installierten Sensoren und Aktoren miteinander vernetzt. Alle Geräte nutzen das gleiche Übertragungsverfahren und tauschen Daten über eine gemeinsame Busleitung aus.

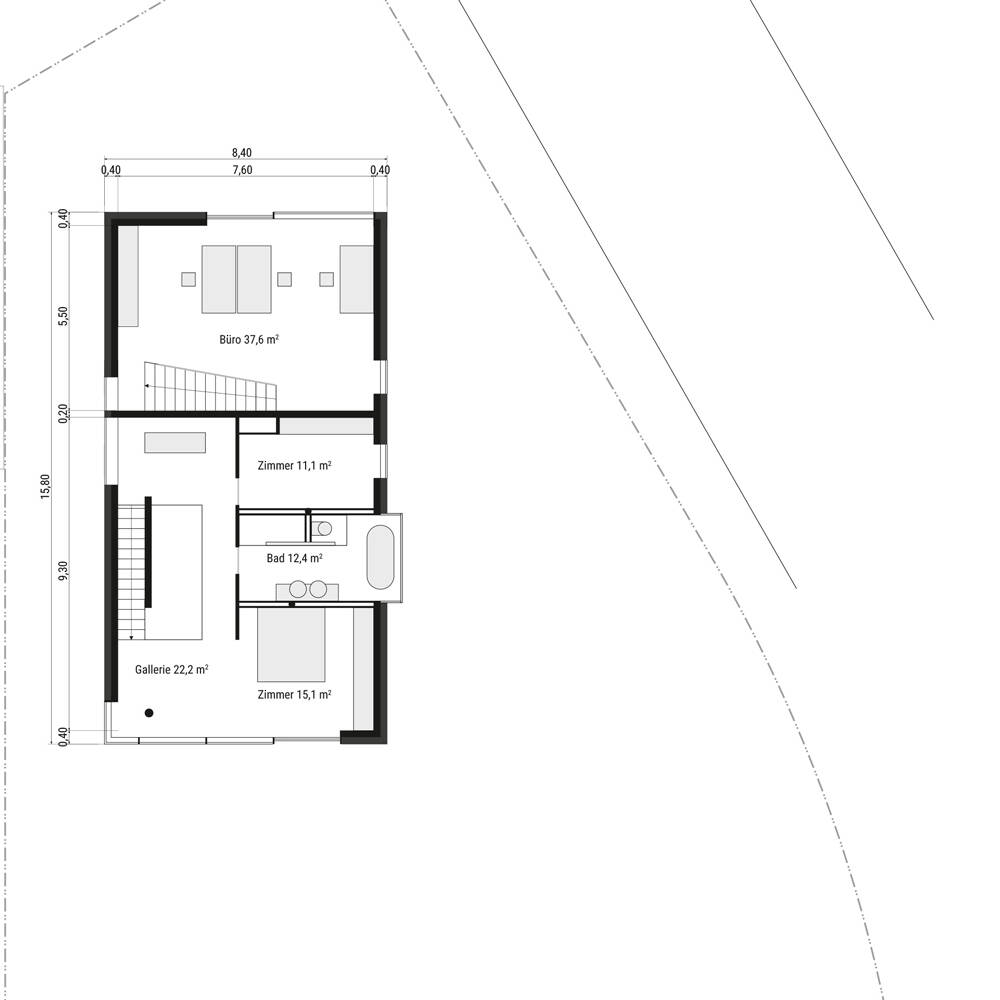
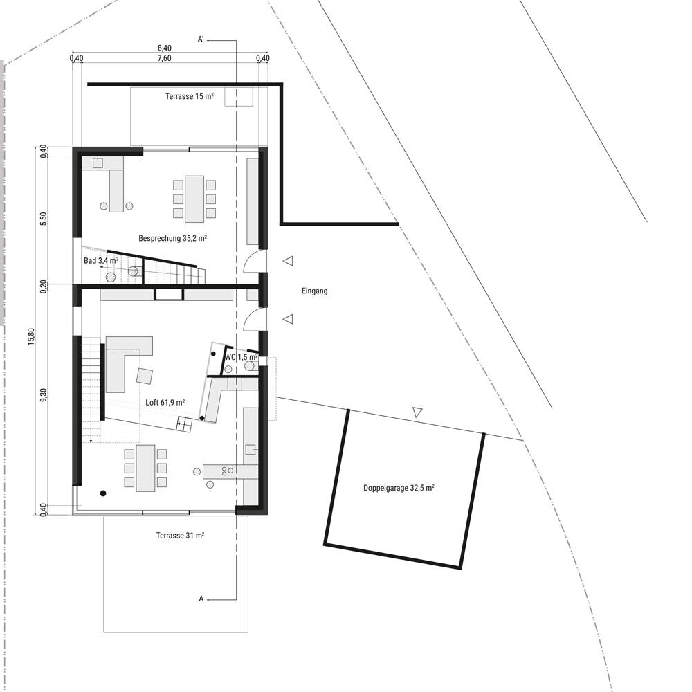
Das Erdgeschoss nimmt die Funktionen Wohnen, Kochen und Essen auf. Verbindendes Element zwischen den beiden Gebäudeetagen ist der vertikal offene Bereich über dem Wohnzimmer. Über dem Sofa öffnet ein 8 m² großes Dachfenster den Blick nach oben in den Sternenhimmel. Wenn sich das Leben in der kalten Jahreszeit vor allem im Inneren abspielt, rückt der offene Kamin in den Mittelpunkt des Geschehens. Der privatere Bereich der Bewohnenden mit zwei Schlafräumen, die sich zur Morgensonne nach Osten bzw. Südosten orientieren, und einem Badezimmer im Rahmen eines halboffenen Konzepts, befindet sich im Obergeschoss. Im Hinblick auf die flexible Nutzung des Hauses auf einer Wohnfläche von 215 m² können ein Wohn- und ein Arbeitsbereich bei Bedarf zu einer eigenständigen Wohnung umgestaltet werden. Die Böden sind vor allem mit Parkett aus Räuchereiche sowie mattschwarzem Epoxidharz ausgelegt. Die großformatigen Glasflächen ermöglichen eine unmittelbare Verzahnung von innen und außen, schaffen Blickbeziehungen und erheben natürliches Licht zum wesentlichen Bestandteil des Entwurfs. Sämtliche Möbel im Wohn-Essbereich und in der Küche sowie die Waschtische in den Bädern hat der Architekt speziell für dieses Haus entworfen.

Fotos:
Matthias Dengler
www.matthiasdengler.com

(Erschienen in CUBE Stuttgart 04|24)

Architektur und Interior Design:

Stefan Sick
www.cialog.com

Rohbau und Sichtbeton:

Walter Scheck
www.walter-scheck.de

Fassade:

Friedrich Schmid
www.friedrich-schmid-holzbau.de

Fenster:

Etter Fenstertechnik
www.etter-fenstertechnik.de

Küche und Möbelbau:

Eckhard Staiger und Guido Sperlich
www.conwood-schreinerei.de

Küchentechnik:

Bosch
www.bosch-home.com

KNX-Gebäudeautomation:

Gira
www.gira.de

Epoxydharzboden:

Fussboden Haag
www.fussboden-haag.de

Badarmaturen:

Steinberg
www.steinberg-armaturen.de

Nothing found.

Individualität im System

Grundschule verbindet Planungs- und Fertigungseffizienz mit zeitgemäßer Gestaltung

Harmonie mit Liebe zum Detail

Farbkonzepte und Kunstobjekte für ansprechende Praxisräume in Moabit

Wohnraum durch Wandel

Verblüffende Metamorphose – vom „Diskreten Haus“ zum mehrgeschossigen Wohnhaus

Nachhaltig mit Konsequenz

Ein Klimaunternehmen setzt auf Flexibilität und wiederverwendbare Materialien

Nothing found.

_5_LUZ_Lauffen_Neckarufer_19_700pixel

Schlicht, einfach und wirkungsvoll

Freiräume der Stadt als Wesensmerkmal gesichert und weiterentwickelt

06_Gemeindehaus_Fachsenfeld_daunerrommelschalk_gross_15_700pixel

Ordnend und verbindend

Skulpturaler Holzbau mit Metallverkleidung wird identitätsstiftender Ort einer Kirchengemeinde

Haus mit Charme

Eine über 100 Jahre alte Doppelhaushälfte wurde entkernt und wiederbelebt

Favorit_TLB_Sporthalle-Gerlingen_065_19_700pixel

Bewegtes Spiel

Elegante und großzügig verglaste Sporthalle interagiert mit attraktiven Außenbereichen und viel Grün

VTC_6_19_700pixel

Im Zeichen der Ellipse

Neugestaltung der Bürowelt im Van Technology Center

DPV_N62_15_700pixel

Modular flexibel

Bürobauten mit unterschiedlichen Anforderungen individuell gestaltet

Alte neue Stadtstrukturen

Vier neue, an die Historie erinnernde Wohnhäuser bilden ein neues Stadtquartier am Fluss

Passgenau

Auf das Wesentliche reduziert, erweist sich dieses Haus als Maßanzug für seine Bewohner:innen