Die Like-It-Denkfabrik
Der InnoDom in Lindenthal bietet eine vielschichtige Arbeitswelt für Uni-Start-ups
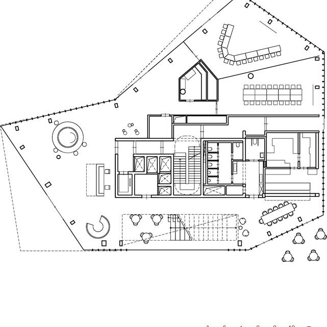
Kein konventionelles Bürogebäude, sondern eine Denkfabrik mit industriellem Charakter – diese Idee verfolgt der InnoDom Cologne, ein neues Gründungszentrum, das die Kölner Universitätsstiftung errichtet hat, in seiner Architektur. Das Aachener Architekturbüro kadawittfeld hat ein fünfgeschossiges Gebäude entworfen, das dem Exzellenz Start-Up Center der Universität Köln Gateway sowie weiteren studentischen Gründer:innen und Start-up-nahen Dienstleistern nicht nur attraktive Räume zum Arbeiten und Tüfteln bietet, sondern ebenso auch Orte zum Verweilen, Erleben und Veranstalten.
Der barrierefreie Neubau, der über eine Fassade aus beschichteten Aluminiumlamellen verfügt, stellt mit Eingängen sowie Vor- und Rücksprüngen vielfältige Bezüge zur unmittelbaren Nachbarschaft her und fügt sich maßstäblich in die Höhen der umliegenden Bebauung ein. Hinter dem InnoDom befindet sich ein kleiner geschützter Platz. Die gestaffelten Rücksprünge lassen zudem drei vielfältig nutzbare Dachterrassen entstehen. Eine Besonderheit des Hauses sind zudem zwei inszenierte doppelgeschossige Räume mit Panoramaverglasung – die sogenannten Like its – die die Community-Nutzung und den unkonventionellen Gründer-Charakter des „Think-Tanks“ monochrom farbig, leuchtend und einladend in den Kölner Stadtraum kommunizieren. Die Bezeichnung „Like it“ ist ein aus den Anfangsbuchstaben zusammengesetztes Akronym von Lümmeln, Inspirieren, Kommunizieren, Erleben, Informieren und Treffen. Der in den Obergeschossen liegende Like it 1 bietet dabei einen vielfältigen Nutzungsmix von Sitzstufen für Treffen über eine Sitzbank am Panoramafenster bis hin zu Kletter-/Hängemöglichkeiten zur körperlichen Aktivierung – Like it 2 ist dagegen zweigeschossig zur Straße exponiert und bietet Raum für informelle Vorträge oder gemeinsame Events mit beweglichen Tischen und Stühlen, Tischkicker und Sitznische. Neben dieser Loungezone befinden sich im Erdgeschoss zudem das zentrale Foyer mit Empfang, eine Cafeteria mit Außenterrasse sowie die Konferenz- und Veranstaltungsflächen des InnoDoms. Um den Erschließungskern, der alle Gebäudeebenen durchläuft, spannen sich in den Obergeschossen offene Büroflächen auf, die nicht nur Platz für konzentriertes Arbeiten und Erfinden, sondern auch für Teamwork und informelle Begegnungen bieten. Die Arbeitswelt des InnoDom bietet dabei verschiedenste Möglichkeiten des „Neuen Arbeitens“: von ständigen Arbeitsplätzen als Einzeltisch mit 3D-Akustikscreen oder Doppel-Cluster über Teamwork-Plätze in Bench-Layouts bis hin zu freigeformten Touchdown-Plätzen. Im Gegensatz zu den inszenierten Loungebereichen ist das Farbspektrum der Arbeitswelt des InnoDoms dabei bewusst einfach in hellen, neutralen Grautönen gehalten. Bei der Materialauswahl wurde viel Wert auf Nachhaltigkeit gelegt. Auch die Büroausstattung ist recycelbar bzw. mit recyceltem Materialanteil produziert oder besteht aus Re-Use-Möbeln.
www.kadawittfeldarchitektur.de
Fotos:
Jens Kirchner
www.jens-kirchner.com
(Erschienen in CUBE Köln Bonn 02|24)




