Das Entrée zur Stadt

Ein Mehrfamilienhaus in Herne wirkt in seiner Umgebung wie ein Solitär

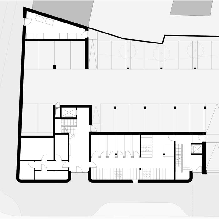
Die Wohnanlage mit der eleganten Ziegelfassade hat einen exponierten Standort in Herne. Schon von weitem ist das Eckgebäude auf dem rund 1.000 m² großen Grundstück gegenüber dem Herner Bahnhof zu sehen. Geplant und realisiert hatte das Mehrfamilienhaus das Architekturbüro Kleihues + Kleihues (Berlin/Münster), das dafür vor kurzem mit dem BDA-Architekturpreis Bochum 2023 ausgezeichnet wurde.

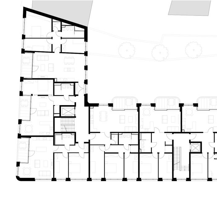
Das markante und hochwertige Gebäude hebt sich aufgrund seines Umgangs mit dem Material von seiner Umgebung ab und kann guten Gewissens als das neue Entrée der Stadt bezeichnet werden. Dabei greift das abgestufte Volumen die Höhe der benachbarten Gebäude auf und stellt gleichzeitig eine Harmonie im bisher heterogenen Stadtbild an dieser Stelle her. Mit der Ziegelfassade tragen die Architekten der baulichen Tradition des Ruhrgebiets Rechnung. Der Sockel besteht aus einem Blockverband, wobei Kopfschicht und Läuferschicht einander abwechseln und die Läuferschicht im Relief um zweieinhalb Zentimeter eingerückt ist. Für den kraftvollen und massiven Eindruck des Gebäudes trägt der Klinker bei, der die Loggien und Balkone ummantelt und sich bis ins Innere fortsetzt. Während der Gebäuderückseite oftmals nicht die gleiche Aufmerksamkeit zuteil wird, wie der der Straße zugewandten Seite, ist hier auch hofseitig die elegante Fassade fortgeführt worden: Es ist ein Wohnhaus entstanden, das nach allen Seiten offen ist und keine Rückseite hat. Auf acht Geschosse verteilt, befinden sich hier 36 Wohnungen, die zwischen 61 und 102 m² groß sind. Dabei passen sich die barrierefreien und seniorengerechten Wohnungen auf individuelle Raumbedürfnisse an und reichen von Zwei- und Zweieinhalbzimmerwohnungen über Drei- und Dreieinhalbzimmerwohnungen bis zu großzügigen Vierzimmerwohnungen. Alle Wohneinheiten verfügen über Balkone oder Terrassen und sind mit Eichenparkett ausgelegt. Die großen Holz-Aluminium-Fenster lassen lichte Räume entstehen. Im Eingangsbereich wird die Liebe zum Detail offensichtlich. Er besticht durch seine abgerundeten Ecken und die Schrägsetzung der Klinkersteine. Die Eichentür und die messingbrünierten Beschläge unterstreichen das hochwertige Erscheinungsbild. Im Treppenhaus wurde Anröchter Naturstein verlegt. Ein lackiertes Flachstahlgeländer mit Eichenholzhandlauf sowie eine Briefkastenanlage aus Eichenholz mit Spiegeleinsatz tragen zum stimmigen Gesamteindruck bei. In puncto Nachhaltigkeit glänzt das Projekt mit der Zertifizierung DGNB Silber der Deutschen Gesellschaft für Nachhaltiges Bauen – DGNB e.V..

www.kleihues.com

Fotos:

Alexander Ludwig Obst & Marion Schmieding

(Erschienen in CUBE Ruhrgebiet 01|24)

Architektur:

Kleihues + Kleihues
www.kleihues.com

Klinker:

Hagemeister Klinker
www.hagemeister.de

Fenster:

Brinker Fensterbau
www.fenster-brinker.de

Türen und Schreinerarbeiten:

Kattenpohl & Rochner
Telefon: 02864-90150

Bodenbelag/Bodenleger:

Austermann
www.werner-austermann.de

Heizung:

Naskrent-Rietz
Telefon: 02325-797333

Schalter:

Jung
www.jung-group.com

Nothing found.

Individualität im System

Grundschule verbindet Planungs- und Fertigungseffizienz mit zeitgemäßer Gestaltung

Harmonie mit Liebe zum Detail

Farbkonzepte und Kunstobjekte für ansprechende Praxisräume in Moabit

Wohnraum durch Wandel

Verblüffende Metamorphose – vom „Diskreten Haus“ zum mehrgeschossigen Wohnhaus

Nachhaltig mit Konsequenz

Ein Klimaunternehmen setzt auf Flexibilität und wiederverwendbare Materialien

Nothing found.

_DSF0836_15_700pixel

Perfekt ausbalanciert

Ein Einfamilienhaus erfüllt die Ansprüche an Modernität, Nachhaltigkeit und Technologie

20220824174221_19_700pixel

Soziale Arbeitswelt

Gelungene Sanierung und Umnutzung einer Sparkasse in Oberhausen

web_workinn-essen-5165_15_700pixel

Eine grüne Oase als Arbeitsplatz

Ein Coworking-Space in Essens Innenstadt bietet ein naturnahes Ambiente

birdykreativ_01_15_700pixel

Aus Liebe zum Ruhrpott

Birthe Deilmann fertigt Accessoires mit direktem Heimatbezug

Herten-3-17-2_700pixel

Ende gut, alles gut

Trotz schwieriger Vorgaben entstand ein kleines Juwel

One_Contact-Neubau-HQ_61A8615-1-034_43_700pixel

Spiel mit Quadern

Ein Einfamilienhaus zeigt Individualität bis ins kleinste Detail

6_19_700pixel1Z9yA2hhc66RZ

Gelungene Komposition

Zwei Bungalows mit eigenem Charakter sind harmonische Nachbarn