Ein Haus sieht rot
Intelligentes Konzept zeigt Lösungsansätze für gefragten Wohnraum im urbanen Raum auf
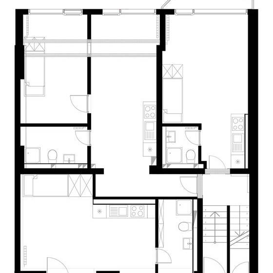
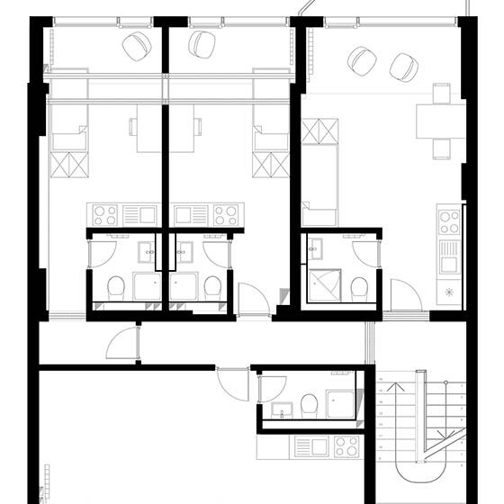
Der Mangel an Wohnraum ist in Deutschland ein großes Thema. Er betrifft viele Ballungsräume und Stadtviertel, die sich bei Anwohnern großer Beliebtheit erfreuen. In einem dicht bebauten und urbanen Quartier ergab sich für Kresings Architektur die Möglichkeit, eines der Reihenhäuser aus den 1950er-Jahren bedarfsgerecht umzubauen.
„Das Haus sollte von vormals großen Wohnungszuschnitten auf Grundrisse angepasst werden, die die Belange von heute abbilden, einen echten Beitrag für die Energiereduzierung leisten und das Wohlbefinden der Mieter steigern“, beschreibt Architekt Kilian Kresing, der mit seinem Bruder zugleich Bauherr ist, seine Vorstellungen. Heute leben in dem mehrfach ausgezeichneten Haus auf 450 m² Wohnfläche 17 Menschen in allen Altersgruppen und aus acht Nationen in 15 neu entstandenen Wohneinheiten. In abstrahierter Form orientiert sich das Gebäude in der Form und Fassadengestaltung an der Nachbarbebauung. Nur das Dach wurde ausgebaut und mit Blech in gefalzter Ausführung eingedeckt. Damit bildet es eine Einheit mit der komplett überarbeiteten Fassade, bei der stark auf Farbe gesetzt wurde. Himbeerrot sticht die Farbe der Bleche und der Holzfenster, der Klingelanlage, der Brüstungen, der neuen Geländer und der Balkone ins Auge. Auf der dem Garten zugewandten Fassade wurde eine neue, holzgestützte Außenwand vor die Außenkante der vorhandenen Balkone positioniert. Auf diese Weise konnte die Raumtiefe so erhöht werden, dass kleinere Einheiten auf der West- wie auf der Ostseite möglich wurden. Innen wurde darauf geachtet, Flurflächen weitestgehend zu vermeiden. Zum großzügigen Eindruck der Räume tragen die großformatigen und bodentiefen Holzfenster bei, durch die viel Tageslicht einfällt. Dank französischer Fenster in allen Einheiten wurde der Wegfall der Balkone gut kompensiert. Die Wohnungen sind mit Eichenholztüren und Böden aus Eichenholzdielen sowie kleinen, aber hocheffizienten Heizkörpern ausgestattet. Die Wände wurden in gebrochenem Weiß verputzt und bringen dadurch die himbeerroten Fensterrahmen zum Strahlen. Weiterhin sind die öffentlichen Bereiche und Wohnungen mit LED-Technik ausgestattet. Bewegungsmelder im Eingangsbereich und Halbkeller reduzieren zudem den Strombedarf. Der Umbau wurde modellbasiert in 3D geplant, was die Schnittstellen zu den Gewerken vereinfacht hat. Vor allen Dingen der Zimmermann profitierte bei der Umsetzung der neuen Fassade davon.
Fotos:
Roman Mensing, Münster
www.romanmensing.de
(Erschienen in CUBE Ruhrgebiet 04|21)

