Arbeiten statt wohnen
Hochmoderner multifunktionaler Bürokomplex „Cuvry-Campus“
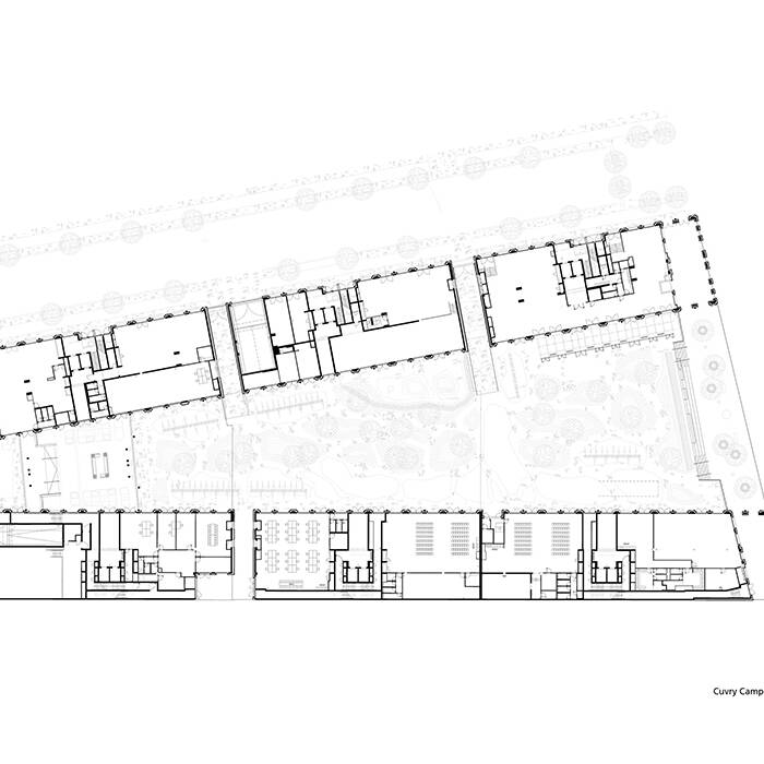
Das Gebäude, das 2021 am Ufer der Spree fertiggestellt wurde, gleicht einem klassischen Industriebau des späten 19. Jahrhunderts. Aus rotem Ziegel errichtet, wie auf der Entwurfszeichnung, wäre es ein perfektes Kontor- oder Speichergebäude, wie man sie in Hamburgs Speicherstadt findet. In der Realität besitzt es eine Fassade aus hellem Ziegel, wodurch es zudem der ikonischen Turbinenhalle von Peter Behrens in Moabit gleicht. Trotz der nostalgischen Gefühle, die es hervorrufen mag, handelt es sich beim sogenannten „Cuvry-Campus“ in Kreuzberg um einen hochmodernen multifunktionalen Bürokomplex, bestehend aus gleich zwei Riegeln, die konisch aufeinander zulaufen: Die beiden Schenkel erstrecken sich vom Südwesten an der Schlesischen Straße entlang der adressbildenden Cuvrystraße bis zum Spreeufer im Nordosten.
Die Gebäude stehen auf der ehemals heiß umkämpften Brachfläche, die zum Sinnbild für die Gentrifizierung Kreuzbergs wurde. Das Baurecht bestand hier schon seit 2004. Damals erarbeitete der Architekt Reinhard Müller einen städtebaulichen Entwurf für das riesige, circa 9.800 m2 große Grundstück. Es gab wechselnde Besitzer und zahlreiche Zwischennutzungen, bis Tchoban Voss Architekten auf der Grundlage von Müllers Stadtplanung mit dem Entwurf für die Neubebauung des Areals beginnen konnten, wobei Tchoban Voss Architekten für die Leistungsphasen 2-4 und Teilen von 5 verantwortlich waren. Die beiden langen, mächtigen Riegel sind dreigliedrig und öffnen sich von der Schlesischen Straße bis zur Spree, sodass sie fast ein V bilden. Auf den Freiflächen im Innern wurden von Kretschmer Tauscher Landschaftsarchitekten parkartig mehrere grüne Inseln angepflanzt. Einer städtischen Auflage gemäß musste ein öffentlicher Weg am Spreeufer erhalten bleiben. Die beiden siebengeschossigen Bürobauten sollten ursprünglich vom Versandhändler Zalando gemietet werden, der jedoch 2018 absprang. Heutiger Ankermieter ist nun Lieferando.
An der Schmalseite des Gebäudekomplexes an der Schlesischen Straße verbindet eine große Glasfläche die beiden Gebäude. Diese gläserne Wand wirkt wie der Eingang zu einer Mall, was beabsichtigt ist, da im Erdgeschoss Geschäfte angesiedelt sind und der Zugang zum Innenhof zu den Öffnungszeiten frei ist. Die Gliederung der Baukörper und die Fassadengestaltung nehmen direkten Bezug auf die Lage des Bauwerkes im ehemaligen städtischen Hafenareal. Heute ist die Nähe zur Oberbaumbrücke und zur East-Side-Gallery auch ein Anziehungspunkt für die Besucher:innen der Stadt.
Fotos:
Klemens Renner
www.klemensrenner.com
(Erschienen in CUBE Berlin 01|23)
