Zu neuem Leben erweckt
Eine vernachlässigte Gründerzeitvilla blüht auf
Manchmal hat ein Haus Glück und findet Bauherren und Architekten, die seine Qualitäten erkennen und es zu neuem Leben erwecken. So erging es einer in die Jahre gekommenen Gründerzeitvilla aus dem Jahr 1907. Sie wurde nach jahrzehntelanger Vernachlässigung von Sieckmann Walther Architekten umfassend saniert, gemäß den heutigen Anforderungen energetisch ertüchtigt und zusätzlich durch einen Anbau im Süden erweitert. Hierbei legten alle Beteiligten großen Wert darauf, die Grundsubstanz des Gebäudes zu bewahren. Denn trotz des auf den ersten Blick schlechten Zustands der Villa, waren zahlreiche bauzeitliche Bauteile vorhanden, die recht gut erhalten waren. Diese den Bestand prägenden Elemente konnten aufgearbeitet werden, dazu gehörten die Stuckverzierungen an der Fassade, das Fischgrätparkett und Dielenböden, die Kassettentüren mit farbigen Bleiglasfenstereinsätzen, die Holztreppen sowie die nördlichen Kastenfenster mit der historischen Sprossenteilung in den Oberlichtern. Gerade im Zusammenspiel mit der reduzierten Formensprache des Anbaus und der minimalistischen Ausstattung der Räume entfalten sie ihren ganzen Charme.
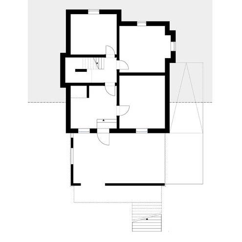
Die zweigeschossige Villa wird von der im Norden liegenden Straße aus erschlossen. Über die Halle, von der aus die Treppe ins Obergeschoss führt, erreicht man Küche und drei Räume, die zeittypisch durch große Wandöffnungen miteinander verbunden sind. Neu ist der nach Süden zum Garten orientierte eingeschossige Anbau an das Hochparterre. Die ursprüngliche Rückwand des Hauses wurde hier auf der ganzen Breite komplett entfernt, sodass über die gesamte Etage mit der offenen Grundrissgestaltung eine sehr großzügige Wohnfläche in fließender Raumfolge entsteht. Die großflächigen, deckenhohen Verglasungen der verschiebbaren Aluminium-Schiebeelemente des Anbaus sorgen hierbei neben der natürlichen Belichtung des dahinterliegenden Wohn-, Ess- und Küchenbereichs für eine Verbindung von Innen- und Außenraum mit herrlichen Ausblicken auf den alten Baumbestand. Über die leichte Stahltreppe an der vorgelagerten Veranda wurde ein im Originalzustand nicht vorhandener direkter Zugang aus dem Wohnbereich in den Garten geschaffen.
Durch die hell eloxierten Fensterrahmen und den hellgrauen Natursteinboden setzt sich der neue Anbau in Material und Farbe vom historischen Bestand subtil ab. Harmonisch verbunden wird alt und neu durch die dezidiert reduzierte Möblierung und Beleuchtung, die monochrome Farbwelt und die hochwertige handwerkliche Ausführung.
Wohnfläche: 176 m²
Grundstücksgröße: 860 m²
Bauzeit: August 2015 bis Februar 2017
Bauweise (Anbau): Holzrahmenbau mit Stahlträgerverstärkungen auf Betonsockel
Energiekonzept: Sanierung gemäß EnEV
(Erschienen in CUBE Hamburg 04|20)
