Schaufenster der Wissenschaft

Ein weiterer Baustein für die Science City in Bahrenfeld

Bis 2040 wird der Forschungsstandort in Bahrenfeld rund um das DESY (Deutsches Elektronen-Synchrotron) zur Science City Hamburg ausgebaut. Es sind vielfältige Forschungs- und Büroflächen in Kombination mit rund 2.500 Wohnungen sowie ausgedehnten Frei-, Grün- und Erholungsflächen vorgesehen. Die prägnante Ringform des DESY Teilchenbeschleunigers soll zu einem begrünten Ringboulevard ausgebaut werden. Die urban verdichteten Zentren Science City West und Science City Ost entstehen zu beiden Seiten der Luruper Chaussee. Perspektivisch wird die Universität Hamburg hier die naturwissenschaftlichen Fakultäten konzentrieren.

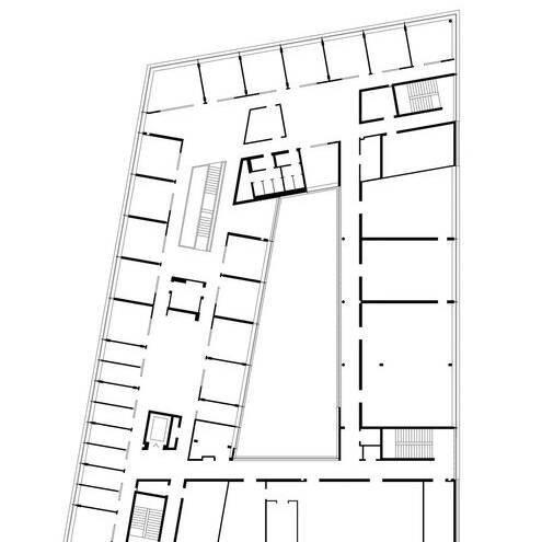
In diesem Kontext, und als einer der ersten Neubauten der Science City West, ist das Forschungsgebäude des „Hamburg Advanced Research Centre for Bioorganic Chemistry“, kurz HARBOR, von Nickl & Partner Architekten fertiggestellt worden. Es hat seinen Standort an einem wichtigen Knotenpunkt des Entwicklungsgebiets. Mit dem Projekt soll an der Fakultät für Mathematik, Informatik und Naturwissenschaften der Universität Hamburg die Infrastruktur für Experimente mit ultrakurzer Zeitauflösung an molekularbiologischen Systemen geschaffen werden. Ein internationales Forscherteam aus rund 120 Wissenschaftler:innen der Disziplinen Nanophysik, Chemie und Strukturbiologie wird hier Methoden zur Auflösung und Kontrolle von Prozessen in Molekülen mithilfe von Licht entwickeln.

Das Raumprogramm besteht zu großen Teilen aus fensterlosen Laboren und Technikflächen. Um es gemäß der Zielvorgabe von Offenheit und Transparenz umzusetzen, gliederte das Büro das Volumen in zwei ineinandergreifende L-Formen, die einen Innenhof umschließen. Zum Platz hin sind auf drei Geschossen die Büro- und Besprechungsflächen angeordnet. Der zweite Gebäuderiegel nimmt sämtliche Laborbereiche auf: Öffentlichkeitsnahes Arbeiten und Diskutieren nach außen – zurückgezogenes Messen und Forschen nach innen. Das gläserne Foyer im Erdgeschoss erlaubt Einblicke über den Innenhof bis hin zu den Forschungsbereichen. Der ebenfalls gläserne Konferenz- und Seminarraum, prominent an der Ecke positioniert, wird zum Schaukasten des Gebäudes. Eine schlanke Freitreppe führt vom Foyer über die Büroebenen bis zur Dachterrasse, ein halböffentlicher Raum mit Blick über den Ringboulevard. Die Fassadenverkleidung aus stranggepresster Keramik stellt eine interessante Lösung dar. Die kleinteilige, vertikale Struktur der Platten schafft aus der Ferne ein homogenes Fassadenbild und belebt in der Nähe die großen, opaken Flächen im Bereich der physikalischen Labore und der Technikräume. Rostpigmente in der Glasur erzeugen eine besondere Tiefe und schillernde Vielfalt. Die langgezogenen Fensterbänder setzen sich vor diesem Hintergrund als helle, klare Einschnitte ab. Einen besonderen Akzent zum Platz hin setzt der Ausschnitt der Dachterrasse.

www.nickl-partner.com

Fotos:
Werner Huthmacher
huthmacher-data.de

(Erschienen in CUBE Hamburg 02|24)

Nothing found.

Lichtdurchflutete Arbeitswelt

Hocheffizientes Bürogebäude in der Maxvorstadt

Gelungene Überführung

Der Umbau eines ehemaligen Wochenendhauses begeistert die Bauherrin

Individualität im System

Grundschule verbindet Planungs- und Fertigungseffizienz mit zeitgemäßer Gestaltung

Harmonie mit Liebe zum Detail

Farbkonzepte und Kunstobjekte für ansprechende Praxisräume in Moabit

Nothing found.

Mehr als nur neue Wände

Umbau und Sanierung spiegeln den Wandel der Arbeitswelt und der Unternehmenskultur wider

03_Perspektive-Kranbauten-vom-Verladehof_Klaus-Frahm_19_700pixel5J74SvzUYiMld

Starker Auftritt

Mit den sechs Häusern gelingt hier eindrucksvoll eine Verwebung von Alt und Neu.

W1510C2455_22_700pixel

Jetzt läuft es richtig gut

Deutliche Umsatzsteigerung nach Store-Neugestaltung

1-10-Knoten-highres-36_15_700pixel

Bohle trifft Stahl

Seit 2016 entstehen langlebige, schlichte und individuelle Möbel aus Holz, Beton, Marmor und Stahl.

Bahrenfelder Mischung

Gewerbe, Büros und bezahlbare Wohnungen in bester Tradition neu vereint

LC_DEPT0920_15_700pixel

Kreative Oase

Die etwas anderen Arbeitswelten einer Hightech-Digitalagentur