Leporello aus Stein
Puristische Avantgarde im Stil der klassischen Moderne
Die Bauherren hatten eine Vision und die Architekten hatten die Aufgabe sie in ein reales Gebäude zu übersetzen. Es war statisch und konstruktiv ein schwieriges Unterfangen, die Leporello-Form des Gebäudes, wie die Architekten der Pure Gruppe aus Regensburg betonen, zu realisieren. Was so einfach aussieht, als hätte man aus einem Quader ein paar Stücke herausgeschnitten, war eine echte Herausforderung. Für das extrem auskragende Obergeschoss, das versetzt auf dem Erdgeschoss thront, musste eine Lösung gefunden werden, die nun die Terrasse wettergeschützt überdacht. Dabei liegen die statischen und bautechnischen Erfordernisse für schwebende Auskragungen und eingeschnittene Loggien versteckt und lassen den komplexen Baukörper ganz simpel erscheinen.
Das Ehepaar, das die Villa bewohnt, wollte sich nicht beim Leben zuschauen lassen und wählte eine relativ geschlossene Vorderfront für ihr neues Zuhause. Ganz im Gegensatz zur Rückseite mit dem großen Garten und dem Pool. Hier öffnet sich das Gebäude mit bodentiefen Schiebefenstern mit elegant schmalen und puristischen Profilen, die sich zu zwei Drittel öffnen lassen. Sind alle Scheiben geöffnet sitzt man gewissermaßen im Freien – innen und außen verschmelzen miteinander. Einen Kontrast zur modernen Klarheit der Außenkubatur und den weiß getünchten Fassaden bilden die Holzflächen der Fußböden, Treppen und Einbaumöbel sowie die hölzerne Einfassung des Pools und der Boden der Terrasse.
Die Architekten zeichnen nicht nur für die Leistungsphasen 1–8 verantwortlich, sondern auch für dieselbe Leistungspalette für die Innenarchitektur. Die technische Ausstattung ist selbstverständlich auf neuestem Stand, inklusive smarter Technologie. Die Planung nahm zwei Jahre Zeit in Anspruch, ebenso dauerte die Bauzeit von 2017 bis 2019.
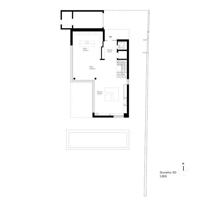
Die ungewöhnliche Kubatur des Gebäudes wirkt sich natürlich auf die Grundrisse im Innern aus. Die Aufteilung der Funktionen auf den beiden Geschossen mit 334 m² Wohnfläche ist klassisch: Kochen, Essen, Wohnen im Erdgeschoss. Im Obergeschoss gibt es Raum zum Arbeiten, für Gäste, Schlaf- und Badezimmer sowie eine Loggia.
Fotos:
Herbert Stolz
www.herbertstolz.de
(Erschienen in CUBE München 03|21)


