Maison Miroir
Ein Haus im Metallkleid spiegelt die Natur
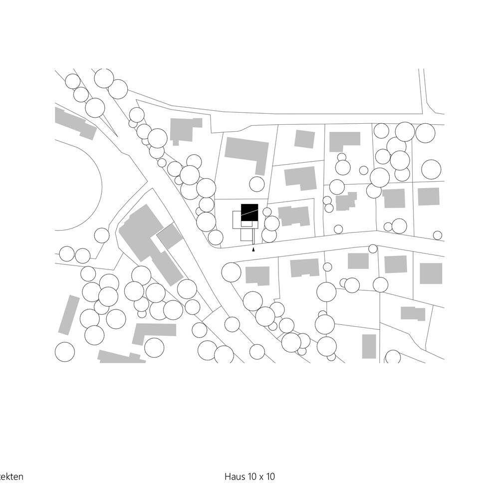
Erst 9 x 9, dann 11 x 11 und nun konsequenterweise 10 x 10: Der Augsburger Architekt Titus Bernhard hat seine Serie Aufsehen erregender Wohnhäuser um ein weiteres überraschendes Werk erweitert: Haus „10 x 10“ glitzert in der Sonne. Es hat einen „Mantel“ aus silbern glänzendem Metall. Wie seine Vorgänger, ist es ein skulpturales Unikat. Haus „9 x 9“ (2003) war aus Stein, sein Nachfolger „11 x 11“ (2011) aus Holz – und das neue Wohngebäude ist in Holzrahmenbauweise mit einer sehr dünnen Edelstahlhülle konstruiert. Es liegt in einer Siedlung mit Einfamilienhäusern am Hang. Leitmotiv seines Entwurfes sei die Idee einer Camouflage gewesen, schildert der Architekt – die Hülle spiegelt ihre Umgebung, alle Jahreszeiten und alle Wetterlagen. Es hebt sich sozusagen selbst auf – wird unsichtbar.
Stufen führen von der Garage hoch zum Haus, dessen Kubatur auf den ersten Blick nicht sofort erkennbar wird. Dieser Umstand ist auf den verdrehten First zurückzuführen, die Erwartung eines „normalen“ Hauses mit Satteldach wird „enttäuscht“. Große Fensteröffnungen auf allen vier Seiten und in den beiden Geschossen sorgen für ein lichtdurchflutetes Inneres. Die Wohnfläche beträgt, verteilt auf drei Ebenen, 216 m² in lockerer, luftiger Raumfolge. Für die Fertigung der komplex-komplizierten Metallfassade fand der Architekt Spezialfirmen in Südtirol und Ingolstadt. Die Oberflächen der Edelstahlpaneele sind gebürstet, gestrahlt und spiegelpoliert, in einem kontinuierlichen Verlauf von Süd nach Nord. Sie schimmern wie eine leicht gekräuselte Wasseroberfläche.
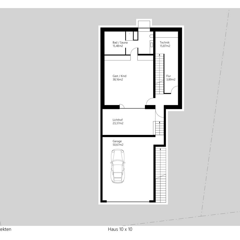
Die Form der „Haut“ entstand mit Hilfe eines 3D-Verfahrens. Die ausgelassenen Fensterflächen sind so arrangiert, dass sie die schönsten Blicke nach draußen einrahmen. Zwischen der Garage aus Sichtbeton und dem Wohnhaus liegt ein Lichthof, der auch im Untergeschoss für Helligkeit sorgt. Ein wahlweise Gast- oder Kinderzimmer, ein Technikraum, ein Bad samt Sauna haben hier Platz. Im Erdgeschoss, im Süden und Westen umfangen von großen Terrassenflächen, findet Kochen, Essen und Wohnen statt. Darüber liegen Schlafzimmer, zwei Arbeitsplätze, die Ankleide und das Masterbad. Die Räume hier haben eine große Höhe durch die asymmetrische Beschaffenheit der Dachflächen. Anhand der Pläne für die Fassadenabwicklung lässt sich erahnen, welche umfangreiche Rechearbeit für die Umsetzung der Metallhülle vonnöten war. Die vier Haus- und zwei Dachflächen werden mit nur 0,8 Millimetern ultradünnen, metallenen Paneelen „verschalt“. Ihre unterschiedliche Oberflächenbeschaffenheit, teils matt, teils aufpoliert, wird entsprechend der Sonneneinstrahlung so angeordnet, dass zu große Aufwärmung vermieden wird und an den schattigeren Seiten der gewünschte Spiegeleffekt entsteht.
Die Metallhaut ist mit einem Abstand von fünf Millimetern vorgehängt, um etwaige witterungsbedingte Verformungen abzufangen. Wie es inzwischen bei Neubauten fast zur Selbstverständlichkeit geworden ist, wird auch hier auf einen minimalen CO₂-Fußabdruck des Hauses geachtet. Die Wärmeversorgung erfolgt mit einer 14-kw Luftwärmepumpe und auch die Fassade mit ihrem geringen U-Wert (Wärmedurchlasswiderstand) von 0,14 W/pro m² trägt zudem zur positiven Energiebilanz bei. Zurecht ist der Architekt stolz auf dieses nachhaltige Wohngebäude, das zudem zu fast 84 Prozent recycelbar ist.
Wohnfläche: 206 m²
Grundstücksgröße: 620 m²
Bauzeit: 2022–2023
Bauweise: Holzrahmenbauweise
Energiekonzept: Luftwärmepumpe, KfW 40
Fotos:
Christina Dragoi
Titus Bernhard
(Erschienn in CUBE München 04|24)







