Optische Levitation

Eine schwebende Villa aus Glas, Sichtbeton und Metall

mg422-015_50_700pixel

Baugrundstücke sind in München rar – auch in den Randlagen. Es sei denn, es gelingt, ein bereits bebautes Grundstück zu erwerben, dessen Bestandshaus nicht unbedingt erhaltenswert erscheint oder bereits baufällig ist. So kam der Münchner Architekt Matthias Wendt zu der Aufgabe, den Neubau einer Villa im Münchner Osten zu entwerfen, da der Vorgängerbau nicht nach den Vorgaben des Bauherrn umzugestalten gewesen wäre und daher abgerissen wurde.

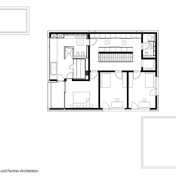
Eingebettet in eine gewachsene Vorstadtsiedlung mit villenartigen Einfamilienhäusern mit Satteldach steht nun ein luftiges hochmodernes Wohnhaus mit Flachdach. Seine Leichtigkeit verdankt es der geschosshohen Verglasung des Erdgeschosses auf der Süd- und der Westseite. Das leicht auskragende Obergeschoss wirkt, als throne es auf dem gläsernen Sockel und heble die Gesetze der Statik aus. Das offene Raumgefüge des Erdgeschosses wird durch Wandscheiben aus sandfarbenen Sichtbeton mit gestrahlter Oberfläche gegliedert. Alle tragenden dreischaligen Wände bestehen aus Sichtbetonfertigteilen, die mit Ortbeton ausgegossen sind.

Das Gebäude wird von der Südseite her erschlossen. Von der Garage gelangt man entlang einer Sichtbetonwand zum Hauseingang mit der dahinterliegenden Garderobe. Die ebenfalls von den Architekten entworfene Möblierung verstärkt den großzügigen Raumeindruck. In einer Nische im Entree empfängt eine kleine Figurengruppe aus der Sammlung des Hausherrn die Gäste. Eine geradläufige Treppe aus anthrazitgrau lackiertem Stahl mit breiten Betonstufen, die auch zum Sitzen einladen, führt ins obere Stockwerk.

Im „gläsernen Bereich“ des Erdgeschosses mit seinen Schiebetüren zum Garten befinden sich die Küchenzeile mit freistehendem Küchenblock, der Essbereich mit großer Tafel aus Eichenholz und der nach Westen ausgerichtete Wohnbereich. Im Untergeschoss gibt es ein Gästeapartment mit separatem Eingang, Technikräume und einen Hobbyraum – die Nutzräume erhalten Tageslicht durch Tiefhöfe.

Das Obergeschoss setzt sich mit einer vorgehängten Fassade aus bronzefarben eloxierten Aluminium-Verbundtafeln als präziser Kubus ab und wirkt, bis auf wenige Fensteröffnungen, wie ein geschlossener schwebender Körper. Hier liegen die Schlafräume: Zwei Kinderzimmer mit dazugehörigem Bad und das größere Elternschlafzimmer mit Masterbad und Sauna an der verglasten Westseite mit Loggia und Blick auf die Bäume des benachbarten Parks.

www.landherr-partner.de

Wohnfläche: 318 m²
Grundstücksgröße: 850 m²
Bauzeit: 3/2018–3/2019
Bauweise: Massivbau in Kombination aus Ortbeton und Fertigteilen
Energiekonzept: Gas/Solarthermie

(Erschienen in CUBE München 04|20)

Architekten:

Landherr + Partner
www.landherr-partner.de

Fassade, Dach:

Müller + Duscher
www.mueller-duscher.de

Schreiner:

Karl Streb
www.schreinerei-streb.de

Sonnenschutz:

Brigel Bauelemente & Sonnenschutz
www.brigel-bauelemente.de

Küche:

Schlögel & Flinspach
www.200-schreiner.de

Aufzug:

Rieser Aufzugbau
www.r-ab.de

Treppe:

Kunstschmiede und Metallbau Neumaier
www.metallbau-neumaier.de

Estrich/Beschichtung Bäder:

Walter Menzetow Bodentechnik
www.wm-bodentechnik.de

Kamin:

Ofenhaus Scheuerecker
www.ofenhaus-scheuerecker.de

Maler:

Malerbetrieb Christian Wendt
www.malerei-wendt.by

Schlosser:

Einwanger Metall & Montage
www.einwanger-metallbau.de

Elektro:

Elektro Nußhart
www.elektro-nusshart.de

HLS:

Maurer + Platner
www.maurer-platner.de

Garten:

Gartenbau Christian Müß
www.gartenbau-muess.de

Dachfenster, Dachausstieg:

Velux
www.velux.de

Türbeschläge:

Karcher Design
www.karcher-design.de

Kamin:

Leda
www.leda.de

Schalter:

Busch-Jaeger
www.busch-jaeger.de

Sauna:

Fechner
www.fechner-sauna.de

Armaturen:

Grohe
www.grohe.de

Fotos:

Maximilian Gottwald
www.maximilian-gottwald.de

Nothing found.

Preziose unterm Dach

Ein Spitzboden in einem Mehrfamilienhaus in Essen-Rüttenscheid wird zum Vorzeigeprojekt

Vergangenheit & Zukunft

Modellprojekt zeigt, wie sakrale Bestandsarchitektur transformiert werden kann

Nachhaltige Metamorphose

Das Büroensemble „Lyght“ in Golzheim erweitert und revitalisiert den Bestand aus den 1970er-Jahren

Nothing found.

273_MG_190716_1122_TM_Jaist_280dpi_700pixel

Gemeinsam wohnt es sich besser

Generationenhaus in Gauting für fünf Parteien und 13 Bewohner

DSC_8164_15_700pixel

Blumen statt Rasen

Ein Garten in Lenggries wird zum Blühparadies und bietet Platz für zwei Parteien

SWA-STUDIO_ROOT-DOWN_25_ANSICHT-GARTEN_15_700pixel

Back to the Roots

Ein Bauernhof erhält den Charme eines unaufgeregten Altbaus zurück

EAP-Gpark-Kbrunn-170705-0773-02_15_700pixel

Auf gute Nachbarschaft

Die einzelnen Häuser sind farblich unterschiedlich nuanciert, so wie die außen liegenden Gänge mit einem Sichtschutz aus Streckmetall, der zwar…

Understatement im Herzogpark

Wohnen für Anspruchsvolle in bester Lage

8S0A9683_19_700pixel

Halb bedeckt – Halb offen

Vereinigung von Moderne und Tradition in ländlicher Umgebung

Scandic-Mu-nchen-Macherei_Apartment-2-_-C-Scandic-Hotels_10_700pixel

Einfach hyggelig

Das „Scandic München Macherei“ bietet schwedische Gastlichkeit und konsequente Nachhaltigkeit

SD_DROP_10_700pixel

Skulpturen aus Glas und Licht

Handgemachte Kreationen mit großer Strahlkraft