Jona’s Haus
Ein schlichtes, funktionales Haus in Holzbauweise, das zwei Wohngruppen von je fünf Kindern aufnehmen kann.
In Staaken wurde ein alte Backsteingebäude – ein ehemaliges Schulhaus – von einem Ärzteehepaar nach eigenen Vorstellungen und mit eigenen Mitteln zum heutigen Jona’s Haus umgebaut. Es ist das Haupthaus der Stiftung Jona, die sich der Betreuung von jungen Menschen aus dem näheren Umfeld, einem sozialen Brennpunkt, widmet. Ein offenes Haus, in dem die Kinder ein- und ausgehen, verköstigt werden, Hilfe bei den Hausaufgaben bekommen und betreut werden. Eine Initiative, die man nicht genug loben kann und die inzwischen auch mehrfach ausgezeichnet wurde.
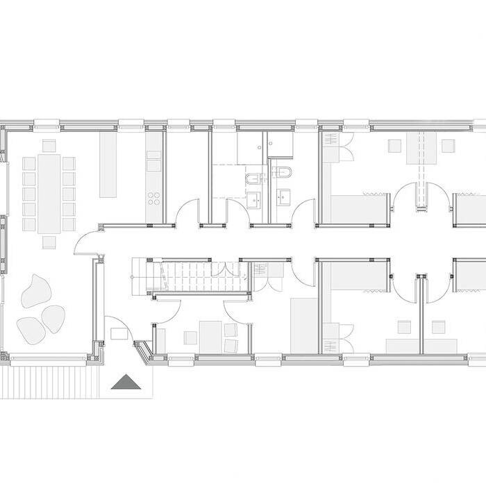
2019 hat die Stiftung ihr Engagement ausgebaut und mit Jona’s Kinderwohngruppe eine zweite Einrichtung eröffnet. Hier sollen bis zu zehn Kinder im Alter von 6 bis 14 Jahren ein Zuhause finden, wenn sie nicht mehr mit ihrer Familie leben können bzw. keine mehr haben. Der Bedarf an solchen Wohngruppenplätzen ist groß. Genauso groß sind auch die Schwierigkeiten und Herausforderungen, mit denen die Kinder zu kämpfen haben. Sie benötigen eine Rund-um-die-Uhr-Betreuung von speziell ausgebildeten Sozialarbeitern und viel Zuwendung. Für diese neue Kinderwohngruppe wurde nun ein Gebäude benötigt, welches das Berliner Architekturbüro haus.architekten als ein schlichtes, funktionales Haus in Holzbauweise entwarf und realisierte, das zwei Wohngruppen von je fünf Kindern aufnehmen kann. Das rechteckige Haus ist zweigeschossig. Im Erdgeschoss sind Gemeinschaftsräume, ein Büro und Räume für die Betreuer sowie Funktionsflächen wie Küche, Ess- und Aufenthaltsbereich und Sanitärräume untergebracht. Im Obergeschoss liegen die Zimmer der Kinder, je fünf Zimmer in einer Reihe, mit Gaubenfenstern auf der Schräge des Satteldachs. Im Wohngruppenhaus leben nicht nur Waisenkinder aus Krisengebieten, sie treffen hier auch auf Berliner Kinder im Alter von 6 bis 12 Jahren, denen es nicht möglich ist, bei ihren Familien zu bleiben.
Bei den als Einzelzimmer konzipierten Wohngruppenplätzen wurde sehr viel Aufmerksamkeit auf die Ausstattung und die Atmosphäre gerichtet. Die Kinder haben die Möglichkeit, ihre Zimmer – bis auf die funktionalen Möbel Bett, Tisch, Stuhl – selbst zu gestalten, damit sie sich ein eigenes Reich schaffen können und die Chance haben, diese fremde Umgebung als ihr neues Zuhause zu betrachten. Die Nutzfläche beträgt 200 m². Beim Bau wurden vorgefertigte Holzrahmenbauelemente verwendet. So gelang eine zügige Fertigstellung, die half, Kosten einzusparen. Das Haus erhielt den Berliner Holzbaupreis 2019 und wurde obendrein mit dem Publikumspreis „geadelt“.
(Erschienen in CUBE Berlin 01|21)

