Fit gemacht für die Familie
Ein Mehrfamilienhaus in Dortmund kehrt zu seinen Wurzeln als Einfamilienhaus zurück
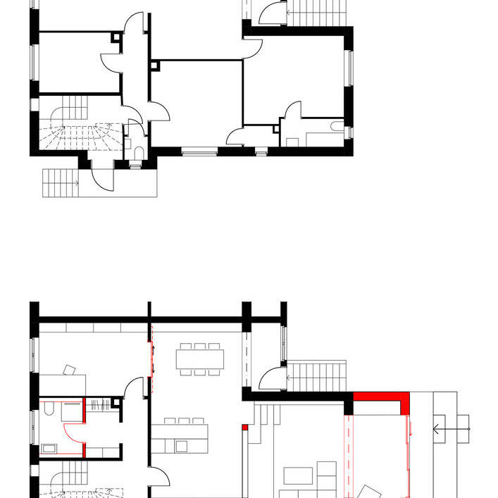
Die Historie dieses Reihenendhauses ist eng mit der Familiengeschichte der jetzigen Bauherrin verknüpft. Es handelt sich um ihr Elternhaus, das auf dem langgezogenen, rund 1.100 m² großen, leicht abfallenden Grundstück in der nördlichen Vorstadt Dortmunds steht. Während der Jahre, die sie mit ihrem Mann in den U.S.A. verbrachte, war es als Zweifamilienhaus vermietet. Nun kehrte das Ehepaar, aus dem inzwischen eine Familie mit zwei Kindern geworden ist, zurück. Für Kiupel Montero Harkort Architekten bedeutete dies, die vier Etagen mit rund 250 m² Wohnfläche für die Familie wieder zu einem Einfamilienhaus umzubauen, das heutigem Wohnkomfort entspricht. Gewünscht wurden außerdem ein Anbau mit Terrasse, Gemeinschaftsbereiche im Erdgeschoss, private Räume im Obergeschoss und ein ausgebautes Dachgeschoss als Kreativ- und Gästebereich.
Im Vorfeld erfolgte eine detaillierte Bestandsaufnahme. Die Planerinnen hatten dabei insbesondere die Statik im Blick, da die Grundkonstruktion mit Fachwerk-Innenwänden und Holzbalkendecken in allen Etagen eine gründliche Analyse voraussetzte, bevor Eingriffe in den Bestand erfolgten. Die großzügige Grundfläche war in viele Räume unterteilt und entsprach daher nicht dem Raumbedarf der Bauherrenfamilie. Ziel war es daher, eine Balance zwischen offenen Raumgefügen und notwendigen, konstruktiven Bauteilen zu finden. Tragende Elemente aus dem Bestand sind zu raumbildenden Komponenten geworden. Der kubische Anbau mit Dachterrasse und großem Schiebefenster verlängert nun das Bestandsgebäude. Betonwinkel, die die Sitztreppe zum Garten bilden, stechen als modernes Element heraus und bilden den Übergang vom Gebäude in den Garten.
Das Highlight des Hauses ist der offene Koch- und Essbereich mit Anbindung zum Wohnbereich. Die verschiedenen Ebenen, die durch das abfallende Gelände bedingt sind, bilden eine wahrnehmbare Trennung, dennoch sind die Räume so verbunden und offen, dass sie Mittelpunkt des Familienlebens sind. Der Dachbalkon im Obergeschoss ist dem Elternschlafzimmer zugeordnet, das über ein Bad en Suite verfügt. Das Dachgeschoss erhielt straßenseitig eine Gaube sowie große Dachflächenfenster. Erhaltenswerte Bauteile wie Dielenböden, Innentüren, die gewendelte alte Holztreppe sowie ein kleines Rundfenster wurden aufgearbeitet und wiederverwendet. Neue Ebenen sind durch maßangefertigte Treppen mit Echtholz-Landhausdielen miteinander verbunden. Den Altbaucharme unterstreicht der Terrazzoboden im Eingangsbereich, in den das Wappen California Bear verewigt ist. Die Badezimmer sind mit Feinsteinzeug in warmer Betonoptik ausgestattet.
Fotos:
Michael Rasche
www.michaelrasche.com
(Erschienen in CUBE Ruhrgebiet 02|25)
