Öffnen und schützen
Erweiterung eines Gymnasiums schafft effizient nutzbare Flächen und eine eindeutige Adresse
Bauen bei laufendem Betrieb ist immer wieder eine große Herausforderung. So auch bei diesem Gymnasium, das erweitert werden sollte. Das Architekturbüro dasch zürn + partner entwickelte ein Konzept, das sowohl die Erweiterung als auch die Neugestaltung der Fahrerschließung auf der Nordseite der Schule positioniert. Mit dieser Vorgehensweise konnten die Eingriffe sowohl in den Schulbetrieb als auch in das Bestandsgebäude und in die bestehenden Freianlagen sinnvoll minimiert werden.
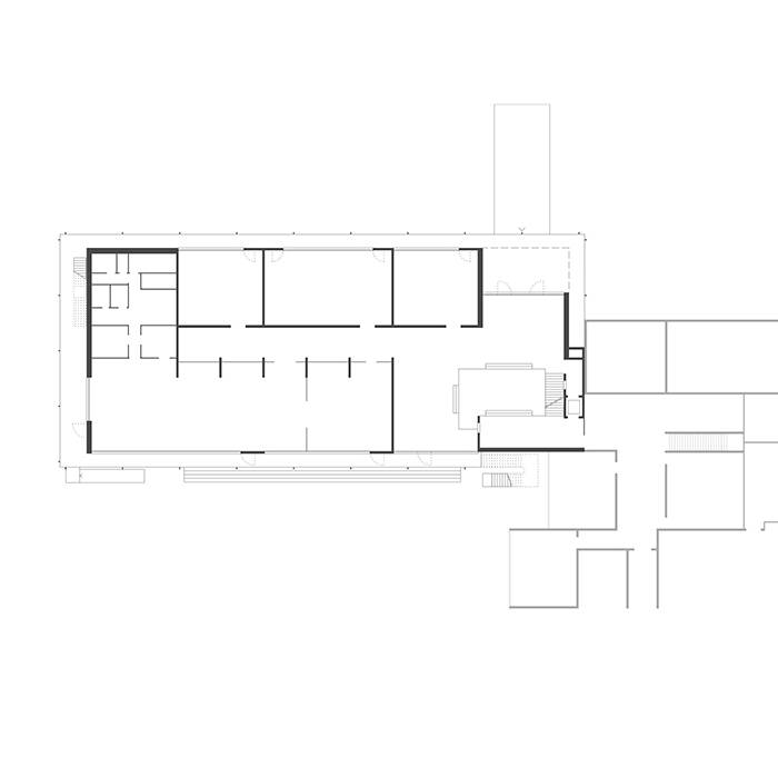
Mit dem Neubau auf einer Bruttogeschossfläche von 3.320 m² erhielt die Schule nicht nur mehr Raum, sondern auch einen neuen Haupteingang mit eindeutiger Adressbildung. Er ist auf die Zufahrtsstraße und die neu organisierte Fahrerschließung mit einer Vorfahrt für die Schulbusse ausgerichtet. Durch die Positionierung des Erweiterungsbaus ist zwischen den Schulen und Sporthallen ein geschützter Pausenhof entstanden. Als transparenter „Pavillon“ setzt das Erscheinungsbild des Erweiterungsbaus einen bewussten Kontrast zum massiven Altbau. Die umlaufenden Fluchtbalkone gliedern den zweigeschossigen Baukörper horizontal. Dabei übernehmen sie auch klimatechnische Funktionen wie den Sonnen- und Witterungsschutz.
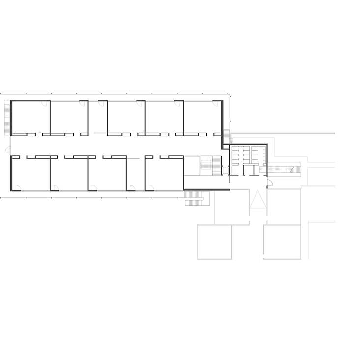
Das Erdgeschoss des Neubaus liegt leicht erhöht über dem bestehenden Gelände. Auf diese Weise konnten die Architekten die Höhendifferenz zum Hauptgeschoss des Bestandes verringern. Ein rollstuhlgerechter Aufzug verknüpft die höhenversetzten Geschosse des Neubaus barrierefrei mit den Geschossen des Bestandsgebäudes. Im Notfall können Lehrer und Schüler über die umlaufenden Fluchtbalkone und Außentreppen im Neubau ins Freie flüchten. Von jedem Klassen- und Aufenthaltsraum ist der Fluchtbalkon direkt zugänglich. Dies reduziert die brandschutztechnischen Anforderungen der Innenräume und die Verkehrsflächen sind als pädagogisch wertvolle Lern- und Kommunikationsbereiche nutzbar.
Das Eingangsgeschoss nimmt neben drei Unterrichtsräumen – eines davon als Computerraum ausgestattet – die Mensa mit Cafeteria und Küche auf. Im Obergeschoss befinden sich neun weitere Klassenräume mit zwei Funktionsräumen. Sie bilden zwei Jahrgangscluster mit fünf bzw. vier Klassen.
www.dzpa.de
Fotos:
Henrik Schipper
www.henrikschipper.de
Bernhard Tränkle
www.architekturimbild.de
(Erschienen in CUBE Stuttgart 02|22)

