Emilie zu Ehren
Ein denkmalgeschütztes Gebäude der Architektin Emilie Winkelmann wurde saniert und erweitert
In einem denkmalgeschützten Haus zu leben, das von der ersten selbstständigen Architektin Deutschlands entworfen wurde, muss ein erhebendes Gefühl sein. Das frisch sanierte und erweiterte Holzhaus in Zehlendorf hat eine bezaubernde Ausstrahlung, obwohl der damalige Stil – das Haus wurde 1909 erbaut – nicht mehr ganz dem zeitgenössischen Geschmack entspricht. Es trägt den Namen seiner Urheberin: Haus Winkelmann – entworfen von Emilie Winkelmann (1875–1951). Sie absolvierte ihre Architekturausbildung notgedrungen als „Gasthörerin“ an der Technischen Hochschule in Hannover. Damals waren Frauen noch nicht zum Architekturstudium zugelassen. Und demnach auch nicht zur Abschlussprüfung. Dennoch gründete sie schon bald ihr eigenes Büro und hatte auch durchaus Erfolg mit ihren Bauten.
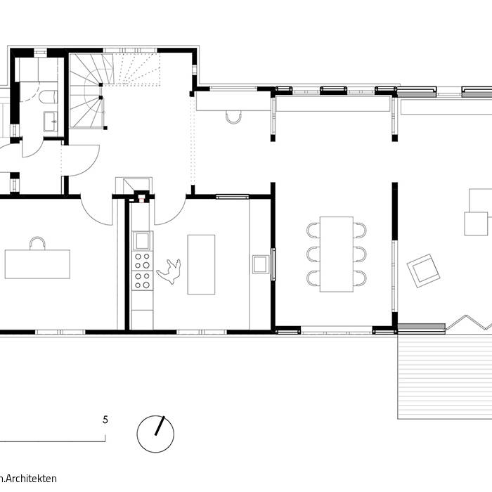
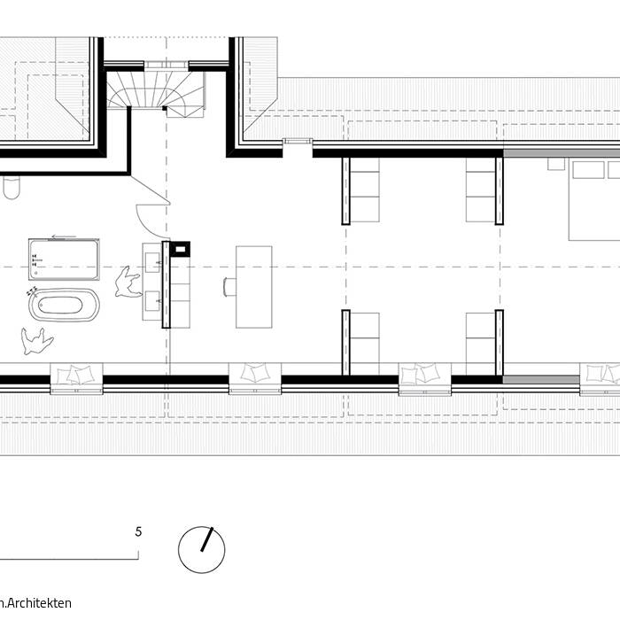
Haus Winkelmann war inzwischen mehrfach umgebaut und seine Länge firstseitig um 5 m verlängert worden. Das Büro Bernrieder . Sieweke Lagemann . Architekten hat bei seiner sorgfältigen aktuellen Sanierung den ursprünglichen Grundriss wiederhergestellt und das Haus um weitere 5 m in Firstrichtung in Holzständerbauweise verlängert, wobei die Ausführung als Holzkonstruktion konsequent nach Zimmermannsart vor Ort durchgeführt wurde. Erstaunlicherweise bleiben trotz der Verlängerung von nun 10 m die Proportionen des Hauses erhalten. Auf der Ostseite des steilen Satteldaches wurde in Anlehnung an den Originalzustand vier Schleppgauben hinzugefügt. Auf der Westseite hatte das Haus mittig bereits eine Satteldachgaube. Für das Dachgeschoss entschied man sich für einen freien Grundriss und im Erdgeschoss wurde der originale Grundriss von 1909 rekonstruiert.
Das schwarze Blockhaus mit seinen waagerechten verzapften Holzbohlen und seiner kleinen Veranda an der Vorderseite hat eine einladende Wirkung. Verstärkt wird diese durch die originalgetreu restaurierte farbliche Verzierung des Giebels in Rot-Weiß. Emilie Winkelmann hatte vor ihrem unerlaubten Studium eine Zimmerer-Lehre gemacht und kannte sich somit gut im Umgang mit Holz am Bau aus. Die Architekten sind bei der gesamten Sanierung und Erweiterung subtil und respektvoll gegenüber dem Bestand vorgegangen – ganz im Sinne des Weiterbauens, das die ursprüngliche Entwurfsidee fortsetzt.
Fotos:
Stefan Josef Müller
stefanjosefmueller.de
(Erschienen in CUBE Berlin 02|21)






























