Zwei Gesichter einer Villa
Zwei eigenständige Teile verschmelzen harmonisch zu einer Villa in perfekter Balance.
Der naturnahe Alsterlauf, weitläufige Parks mit historischen Bauten, grüne Wohnstraßen mit vielen Einzelhäusern und ein quirliges Zentrum machen Poppenbüttel attraktiv. Auch die Familie, die diese außergewöhnliche Villa vom Architekten Matthias Mecklenburg erbauen ließ, lebt gerne im Alstertal. Die Vorstellungen der Bauherren vom Leben und Wohnen in ihrem zukünftigen Zuhause bildeten die Grundlage für den Entwurf des Architekten. Sie wünschten sich sowohl einen offenen, hellen Wohnbereich mit Raum für ein lebendiges Familienleben als auch geschützte Bereiche für Rückzug und Privatheit. Die Umsetzung dieser Idee ist schon auf den ersten Blick klar erkennbar. Zwei eigenständige Teile verschmelzen harmonisch zu einer Villa in perfekter Balance.
Die weiß verputzte Seite wirkt strahlend hell. Der umlaufende, loggiaartige Balkon in der offenen Kubatur verstärkt die expressive Anmutung und lässt das Staffelgeschoss wie ein vollwertiges Obergeschoss erscheinen. Dagegen zeigt sich die andere Seite mit den flächenbündig in die graue Klinkerfassade eingesetzten Fenstern introvertiert und reduziert. Durch die gemischte Sortierung des Klinkers entsteht ein lebhaftes Licht- und Farbspiel auf der Fassadenoberfläche. Dieser Effekt steht wiederum im spannungsvollen Kontrast zur leuchtend weißen Putzfassade.
Beide Gebäudehälften sind in der Mittelachse zueinander verschoben, was den dualen Charakter des Hauses noch einmal betont. Verbunden sind die beiden Elemente durch eine lichtdurchflutete gläserne Fuge in der Mittelachse des Hauses. Außen und innen fließen hier dynamisch ineinander, lebhafte und private Bereiche der Villa werden verknüpft. Die Klinkerfassade wird in den Innenraum weitergeführt. Die Lichtstimmung an diesem zentralen Ort verändert sich immer wieder mit dem Lauf der Sonne und dem Wechsel der Jahreszeiten.
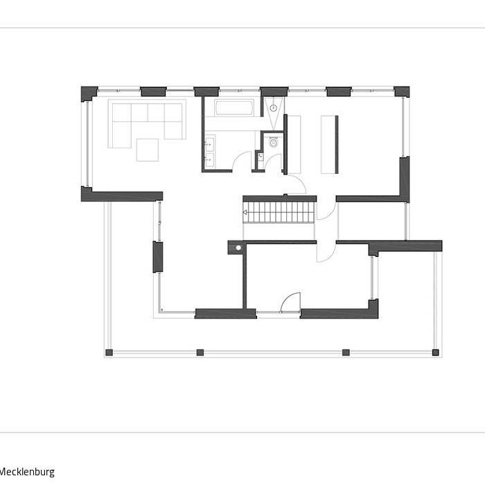
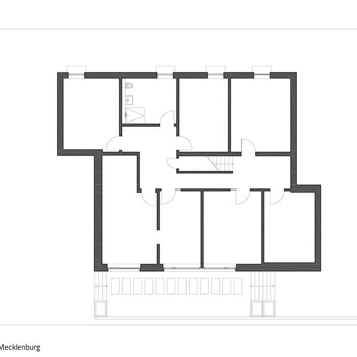
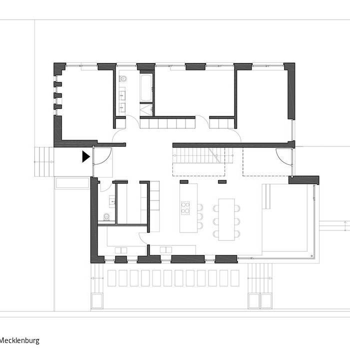
Auch der Zugang zum Haus und der Austritt auf die Terrasse sind in der Fuge angeordnet. Gleich beim Betreten hat man einen weiten Blick entlang der Klinkerwand bis in den Garten. Als Bodenbelag wurde im Erdgeschoss eine gefärbte Nivelliermasse durchgehend verlegt. Im Zusammenspiel mit der Klinkerwand und der filigranen Stahltreppe wird ein loftartige Stimmung erzeugt. Im nach Norden ausgerichteten Gebäudeteil liegt der Schlaftrakt. Eine vom Architekten entworfene Schrankwand aus Eichenholz führt entlang des eigenständigen Flurs und erschließt die Kinderzimmer mit eigenen Bädern. Das Obergeschoss ist das Reich der Eltern mit Schlafzimmer, Ankleide und großzügigem Bad. In der anderen, nach Süden orientierten Haushälfte pulsiert das Familienleben. Eine fließende Raumfolge gewährleistet Kommunikation und Austausch. Der Blick reicht vom maßgeschneiderten Kochbereich über den Esstisch mit eindrucksvoller Lichtskulptur und den tieferliegenden gemütlichen Loungebereich bis hin zur Terrasse und in den ebenfalls vom Architekten entworfenen Garten. Im oberen Geschoss gibt es neben einem Büro das Kaminzimmer, das zum umlaufenden Balkon orientiert und durch eine Brücke in der Fuge mit dem Elterntrakt verbunden ist. Im Untergeschoss befinden sich die Funktionsräume, aber auch ein Gäste- sowie ein Spielzimmer. Durch Aufgrabungen an der Südfassade sind vollwertige Wohnräume entstanden. Eine nachhaltige Bauweise war für die Bauherren von entscheidender Bedeutung, deshalb wurden beide Gebäudehälften in zweischaligem Mauerwerk ausgeführt.
Wohnfläche: 262 m²
Grundstücksgröße: 1.196 m²
Bauzeit: 6/2017–7/2018
Bauweise: massiv/zweischaliges Mauerwerk
Energiekonzept: EnEV 2016/KfW 70
Fotos:
Dominik Reipka
www.reipka.de
(Erschienen in CUBE Hamburg 01|21)
