Massiv und Authentisch

Ein Einfamilienhaus entwickelt seine Gestaltung aus einem Lowtech-Ansatz

_SIM7533-Kopie-2_43_700pixel

Ein Architekt, der für sich und seine vierköpfige Familie eine lebenswerte Umgebung schaffen möchte. Ein Grundstück, das nur ein Vollgeschoss erlaubt und doch ein besonders breites Baufenster aufweist. Eine Konstruktionsweise, die durch ihre Massivität eine möglichst hohe Wärmespeichermasse bieten soll. – Das waren die Eckkoordinaten eines Wohnhausprojektes, das der Architekt Berend von Knoop in Krefeld auf der Stadtteilgrenze zwischen Inrath und Kliedbruch entworfen und realisiert hat.  

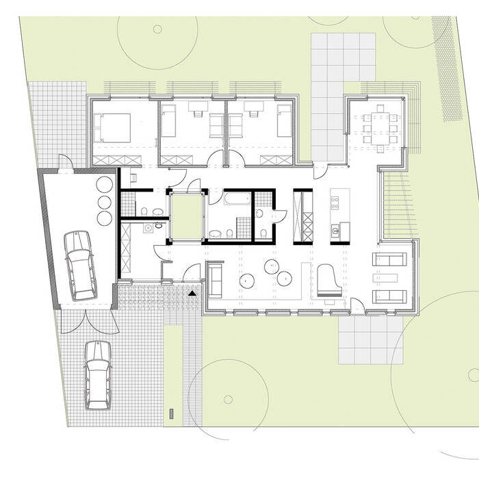
Aus der umliegenden Bebauung einen Gestaltungsfaden abzuleiten, war kein leichtes Unterfangen: Das Wohnviertel aus den 1930er-Jahren war über die Dekaden sukzessive sehr heterogen nachverdichtet worden. Holzfertighäuser wechseln sich mit rot verklinkerten oder weiß verputzten Wohnhäusern mit den unterschiedlichsten Dachformen ab und gehen fließend in ein Schrebergartengebiet über. Die Wahl fiel am Ende auf einen Bungalow mit einer komplexen Dach- und Gebäudeform aus Flachdächern und Pultdächern sowie einer umlaufenden Holzfassade aus schwarz geflammten Lärchenholzbrettern. Der von innen nach außen entwickelte, ebenerdige Baukörper sollte dabei eine möglichst ideale Zonierung mit einem offenen, gemeinschaftlichen Küchen-, Ess- und Wohnbereich bieten samt verschiedenen Verweil- und Rückzugszonen, die mit dem Außenraum differenziert verzahnt sind. Daran schließen sich das Elternschlafzimmer und die beiden Kinderzimmer an, wobei letztere eine zusätzliche Galerieebene erhalten sollten. Als eine besondere Herausforderung gestaltete sich der Fakt, dass der Holzbau am Niederrhein kaum entwickelt ist. Erst mit dem Kontakt zu dem Rosenheimer Holzbauplaner Jonas Offinger konnte die Expertise gewonnen werden, die schließlich zu einem Holzbausatz führte, der vor Ort montiert werden konnte. Für das Haus wurde ein Lowtech-Ansatz mit massiven Bauteilen gewählt, die eine hohe Wärmespeichermasse garantieren. Während alle Außenwände in Massivbauweise aus vorgefertigten Brettsperrholzelementen, bestehend aus querverleimten Brettern, aufgerichtet wurden, bestehen die Innenwände aus Ortbeton, der in eine Brettschalung gegossen wurde: „Die Baumaterialien selbst haben die schönste Haptik und Optik“, erläutert der Architekt. „An deckender Farbe, Putz oder Gipskarton hatten wir daher kein Interesse.“ So entsteht in dem Haus das Wechselspiel von Holzbrett und Holzbrettabdruck, das sich bis in die drei Bäder hinein verfolgen lässt: Statt auf Fliesen wurde hier eine Beschichtung aus Beton Ciré für die Installationswände und den Fußboden vorgenommen. Die Wärmeversorgung des Hauses erfolgt über eine Wärmepumpe mit Geothermiesonde. Die Dachflächen sind in Form und Ausrichtung für eine noch zu installierende Photovoltaikanlage optimiert. Der Sonnenschutz aus Lärchenholzbrettern ist vor den Fenstern permanent als Überstand fixiert. Auf flexiblen Sonnenschutz und Klimatisierung wurde – dem Lowtech-Ansatz des Hauses folgend – bewusst verzichtet. Bereits im ersten Sommer 2020 bewährte sich dies.

www.abbvk.de

Wohnfläche: 185 m²
Grundstücksgröße: 920 m²
Bauzeit: 7 Monate
Bauweise: Massivbau
Energiekonzept: Geothermie

(Erschienen in CUBE Düsseldorf 04|20)

Architekten:

ABBVK – Berend von Knoop
www.abbvk.de

Tiefbau, GaLaBau:

Gala – Tiefbau Pollack
www.pollack-kerken.de

Rohbau Beton:

Groß – Bau
www.gross-bau-krefeld.de

Rohbau Holz, Dach, Fassade:

Geister
www.geister-bedachungen.de

Elektro:

Elektrotechnik Michael Rzeznicki
www.elektro-mr.de

Heizung, Lüftung, Sanitär:

Hertlein
Telefon: 02151 6538950

Schreinerarbeiten:

Flümann
www.fluemann.de
Kurt Lohmann
www.schreinerei-lohmann.de

Fenster, Außentüren/-tore:

Eiker Fensterbau
www.krefeld-schreinerei-fensterbau.de

Ausbau Bäder:

Trockenbau Malacasa
Telefon: 02152 9697065

Rohbau Holz:

Stora Enso
www.storaenso.com

Holzfassade:

Mocopinus
www.mocopinus.com

Küche:

Meda Küchen
www.meda-kuechen.de

Dusche, Armaturen:

Grohe
www.grohe.de

WC:

Villeroy & Boch
www.villeroy-boch.de

Waschbecken:

Duravit
www.duravit.de

Möbel:

Cor
www.cor.de
Panton Chair
www.vitra.com
Deutsche Werkstätten
www.dwh.de

Leuchten:

Eglo
www.eglo.com
Ingo Maurer
www.ingo-maurer.com

Schalter, Steckdosen:

Busch-Jaeger
www.busch-jaeger.de

Wärmepumpe:

Viessmann
www.viessmann.de

Fotos:

Simon Erath
www.erath-fotografie.de

Nothing found.

Harmonisch eingefügt

Neubau-Ensemble wahrt den historischen Bezug und entwickelt eigene Identität

Traditionell und Modern

Traditionell und Modern

Massivholzhaus ist der Publikumsliebling beim Rosenheimer Holzbaupreis

Erdverbundene Leichtigkeit

Winkelförmiger Bungalow auf Sockel mit Höfen bildet einen geschützten Gartenbereich

Nothing found.

AA7A0145_10_700pixel

Individuell und detailreich

Ein Gespräch mit dem Düsseldorfer Architekten Georg Döring über Einfamilienhäuser, Lehrer und Väter

Nordstrasse-1_15_700pixel

Minimalinvasiv

Bestandsgebäude in Meerbusch erhält durch kleine Ergänzungen ein völlig neues Gesicht

Modern. Ikonisch. Nachhaltig.

Markantes Gebäudeensemble macht Business-Standort Heerdt noch attraktiver

Sinnliche Präsenz

Ein Stadthaus verknüpft Architektur und Interior subtil miteinander

Unvermutete Öffnungen

Eine Doppelhaushälfte besticht durch fließende Räume mit viel Licht und Sichtbezügen

_MGL3243-Kopie_15_700pixel

Grosszügige Licht- und Lufträume

Die LVR-Kurt-Schwitters-Schule in Gerresheim wurde zu einem neuen Ensemble erweitert

200423_maxfrei_BF1_15_700pixel

Buntgemischtes Stadtquartier

maxfrei steht für vielseitiges Miteinander

0615-bearbeitet_19_700pixel

Lauschig mit Lounge

Bei der Gestaltung sollten die vier Elemente Feuer, Wasser, Erde und Luft Berücksichtigung finden – minimalistisch reduziert und wenig…