Zirbenduft und tiefes Schwarz

Klare Zonierung und starke Kontraste prägen die Neugestaltung einer Praxis

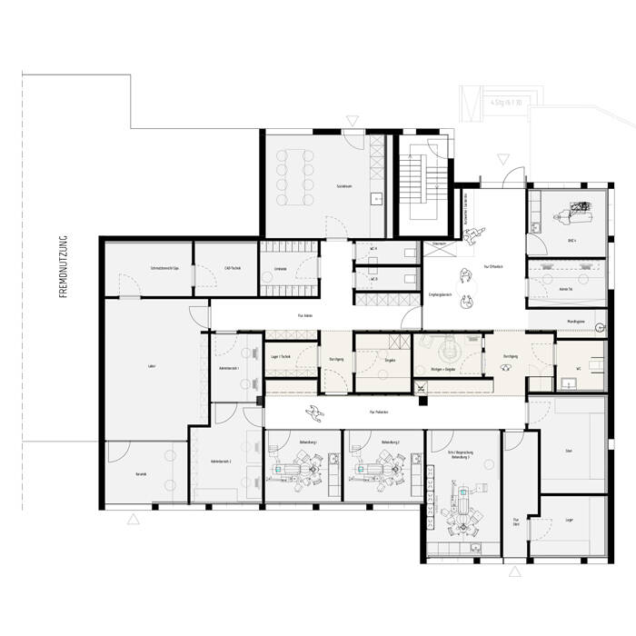
Großzügig und luftig wirkt der Empfangsbereich, der die Patient:innen der Zahnarztpraxis begrüßt. Die dahinter liegende Fläche gliedert ein zentral eingestellter, holzverkleideter Riegel in Personal- und Patientenbereiche. Die Idee für den von zwei Seiten nutzbaren Mittelblock entwickelten 12:43 Architekten Bucher & Prokop aus den örtlichen Gegebenheiten, denn die begrenzten Fensterflächen und eine sehr tiefe Fläche machten die natürliche Belichtung zu einer Herausforderung. In diesem Mittelblock sind alle wichtigen Nebenräume untergebracht, die kein Tageslicht erfordern. Dazu gehören der Röntgenraum und WCs. Dafür wurden die Fensterseiten vollflächig verglast.

Die Wandverkleidung mit Paneelen aus Zirbenholz sorgt nicht nur für eine gute Akustik. Das Holz duftet auch angenehm und strahlt Wärme im Raum aus. Sitznischen entlang des Patienten-Flurs dienen als Wartebereich – anstelle eines klassischen Wartezimmers. Alle Nischen und Ausschnitte sowie die Türen setzen sich konsequent in mattem Schwarz ab und bilden zusammen mit weißen Wänden und Decken einen kraftvollen Kontrast. Hinter den mittig eingestellten Räumen ist eine Spange mit drei Behandlungszimmern angeordnet, die durch filigran ausgeführte, schwarz gerahmte Glastrennwänden abgetrennt sind. Auf diese Weise gelingt eine durchweg lineare Aufteilung der Fläche mit klaren Blickachsen von vorne nach hinten. Schlanke Lichtprofile zeichnen die lineare Gliederung entlang der Flure nach und sorgen durch den Einsatz von transparenten Glastüren über die Räume hinweg optisch für einen komplett fließenden Raumeindruck.

Am Ende des Flurs ist der Bereich für Mundhygiene angesiedelt, der durch seine schlichte monochrome Gestaltung einen Blickfang darstellt. Schwarze Wandfliesen und Wand-Einbauleuchten werten das barrierefreie Patienten-WC als funktionalen Raum deutlich auf. Passend zu den Räumlichkeiten entwickelten die Planer eine großflächige Grafik in der Akzentfarbe Gelb. In Kombination mit transparenten Verläufen auf den Glaselementen setzen diese Elemente großflächig die CI der Praxis im Raum um.

www.zwoelfdreiundvierzig.de

Fotos:

Markus Guhl
www.architekturfotograf-markus-guhl.com

(Erschienen in CUBE Stuttgart 01|24)

Nothing found.

Gelungene Überführung

Der Umbau eines ehemaligen Wochenendhauses begeistert die Bauherrin

Individualität im System

Grundschule verbindet Planungs- und Fertigungseffizienz mit zeitgemäßer Gestaltung

Harmonie mit Liebe zum Detail

Farbkonzepte und Kunstobjekte für ansprechende Praxisräume in Moabit

Wohnraum durch Wandel

Verblüffende Metamorphose – vom „Diskreten Haus“ zum mehrgeschossigen Wohnhaus

Nothing found.

Tradition trifft Moderne

Neubau auf einem Weingut in ortstypischer Gebäudeform

VSB_2020-02-21_081_15_700pixel

Oase im Knotenpunkt

Ein Hotel der kurzen Wege für Konferenzen, Präsentationen und Messebesuche

Für einen schönen Lebensabend

Neue Pflegeeinrichtung macht Wohlfühlen zur Normalität

CF008676_79_45_700pixel

Ruhe und Erholung

In dieser Villa am Hang steht die schwarz-goldene Küche im Mittelpunkt

_KAP9460_19_700pixel

Lässig, chillig, Toll beleuchtet

Neu gestalteter Garten mit Pool und Liegeflächen auf fahrbarer Abdeckung

01_FuchsWacker_Architekten_Haus_ZEPP_Stuttgart_54_b_700pixel

Schwäbisches Understatement

Wohnhaus am Hang interpretiert Historie modern und zeigt eigenständigen Charakter

Stimmungsvolle Verwandlung

Doppelhaushälfte aus den 30er-Jahren wird zum Familienrefugium mit viel Raum und Atmosphäre

HLC_steimle_architekten_220417_001_15_700pixel5luWI7VweBwKa

Privat und Gemeinschaftlich

Bahnhofsnahes Stadtquartier mit verbindender Erdgeschosszone und geschützten Höfen