Wohnvielfalt am Lohsepark

Eine Studierendenwohnanlage und Park-Apartments bilden den südlichen Quartiersabschluss

3008_Lohsepark_Adrian-Schulz_100_19_700pixel

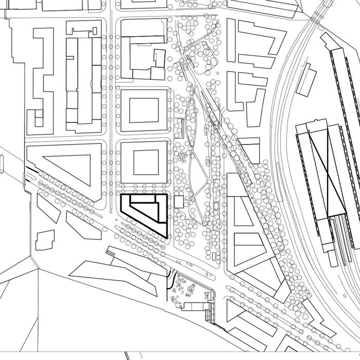
Das Quartier Am Lohsepark mitten in der HafenCity ist ein grüner Stadtraum und hat durch den großen Park, dem Mahnmal „denk.mal Hannoverscher Bahnhof“ und den entstehenden Schulcampus eine übergeordnete Bedeutung. Überwiegend werden im Quartier geschlossene Blockstrukturen mit fünf bis sieben Geschossen realisiert, die sich um den Lohsepark herum gruppieren.

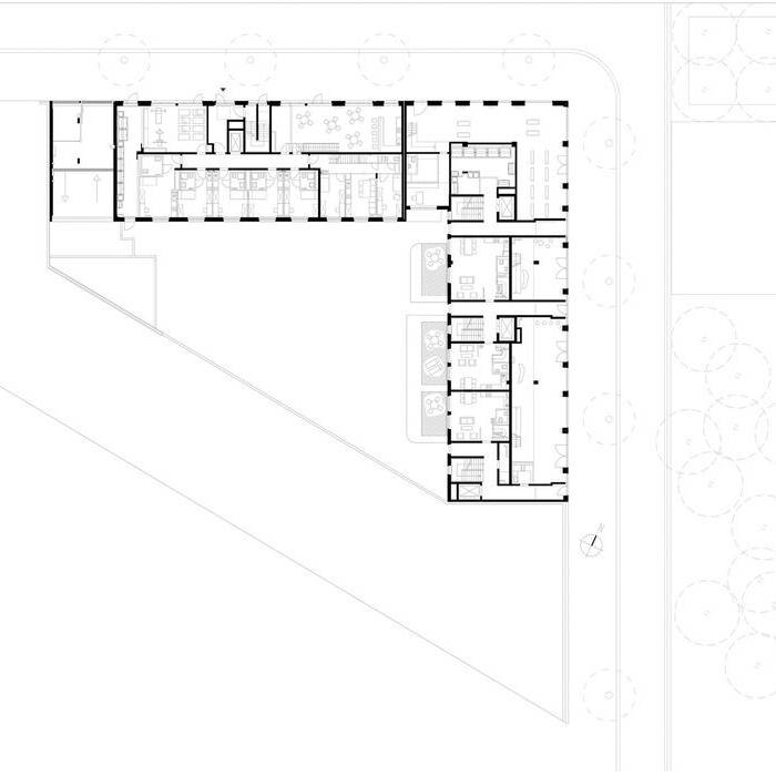
Den südlichen Abschluss direkt gegenüber der HafenCity Universität bildet eine Blockrandbebauung mit einer attraktiven Nutzungsmischung aus Hotel (das wir in einem weiteren Bericht im Magazin vorstellen), studentischem Wohnen, frei finanziertem Wohnungsbau und publikumsbezogene Nutzungen im Erdgeschoss. Den Wettbewerb für den Bereich Wohnungsbau gewannen KSP Jürgen Engel Architekten aus Braunschweig. Der Baukörper ist solide als regelmäßiger Stadtbaustein gestaltet und durchgearbeitet und zeichnet sich durch eine klare Struktur aus. Die Klinkerfassade ist angelehnt an die Hamburger Backsteinarchitektur und fügt sich harmonisch in das Stadtbild ein.

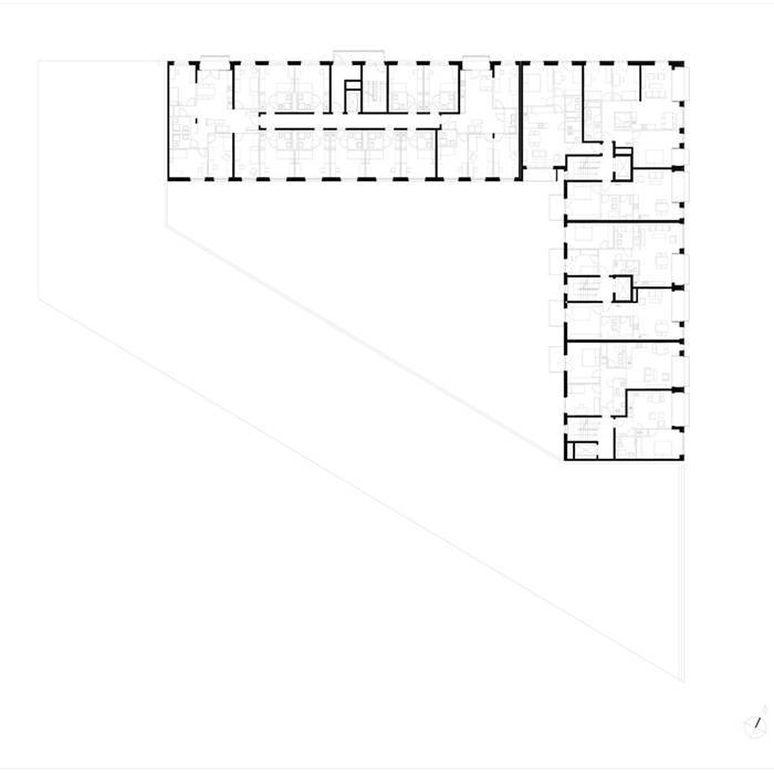
Zum Lohsepark ausgerichtet entstanden 45 hochwertige, frei finanzierte Wohneinheiten. Bei den sogenannten „Park-Apartments“ handelt es sich um zeitgemäß geschnittene sowie attraktiv ausgestattete Zwei- bis Vierzimmerwohnungen in Größen von ca. 50 bis 100 m². Die unmittelbare Nachbarschaft zur HafenCity Universität ist ein idealer Standort für das Helmut-Schmidt-Studierendenhaus des Studierendenwerks Hamburg. Die 128 Apartments für Studierende liegen an der Kobestraße und sind ausschließlich als geförderter Wohnungsbau gemäß den Anforderungen der IFB Hamburg errichtet worden. Angeboten werden in offener, internationaler Atmosphäre möblierte, 20 m² große Einzelapartments mit Duschbad und Pantryküche oder 14 m² große Zimmer in Vierer- oder Fünfer-Wohngemeinschaften mit zwei Bädern und Gemeinschaftsküche. Attraktiv und optimal an die Bedürfnisse von Studierenden angepasst sind die Bereiche, die gemeinschaftlich genutzt werden, wie die Containerbar, der Kraft- & Fitnessraum, die Fahrradgarage oder der Waschsalon. Ein echtes Highlight stellt die Dachterrasse auf dem begrünten Dach dar.

Die gesamte Wohnbebauung erreicht einen hohen energetischen Standard, der Energiebedarf liegt dadurch 60 Prozent unter den gesetzlichen Anforderungen. Die unterschiedlichen Abschnitte der Blockrandbebauung werden durch die typischen roten Klinkerfassaden und das umlaufend überhöhte Erdgeschoss optisch vereint. Nutzungen wie Shops, Gastronomie und weitere öffentliche Bereiche im Erdgeschoss tragen zur Belebung des Quartiers am Lohsepark bei.

www.ksp-architekten.de

Fotos:

Adrian Schulz
homepage.architekturphotos.de

(Erschienen in CUBE Hamburg 03|20)

Nothing found.

Nachhaltige Metamorphose

Das Büroensemble „Lyght“ in Golzheim erweitert und revitalisiert den Bestand aus den 1970er-Jahren

Harmonisch eingefügt

Neubau-Ensemble wahrt den historischen Bezug und entwickelt eigene Identität

Traditionell und Modern

Traditionell und Modern

Massivholzhaus ist der Publikumsliebling beim Rosenheimer Holzbaupreis

Nothing found.

Maßvoll und selbstbewusst

Der Schulneubau bildet mit dem denkmalgeschützten Altbau eine harmonische Einheit

_DSC9073_15_700pixel

Grün tut gut

Nachhaltigkeit und eine neue Arbeitswelt mit einer offenen und kommunikativen Atmosphäre

23110512-DeFries-historischer-Verblender-Stettin-14-_bearb_700pixel_700pixel_700pixelsxvT4To6yd8wr

Neuer Einsatz für alte Ziegel

Unternehmen bereitet alte Ziegelsteine auf – für Charakterwände mit Geschichte

_DSC4018_15_700pixel

Wie wird ein Büro sexy?

Eine Kommunikationsagentur zeigt es: Durch schöne Räume!

TW_37_15_700pixel

Lichte Eleganz

Ein puristisches Gebäude mit sowohl natürlichen als auch robusten, weitgehend unbehandelten Materialien.

IMG_8391-3_15_700pixel

Funktion und Form

Dieser besondere Stuhl ist wandelbar und maßgeschneidert

warburgstrasse-hamburg-wohnung-design-private-luxury-innenarchitektur-formwaende-00_15_700pixel

Ressource Raum

Geschickte Lösungen ermöglichen komfortables Wohnen auf kleinster Fläche