Lichtdurchflutete Geborgenheit

Grundschul- und Kita-Neubau schafft Raum für Ordnung und Lebendigkeit

220130010_19_700pixel

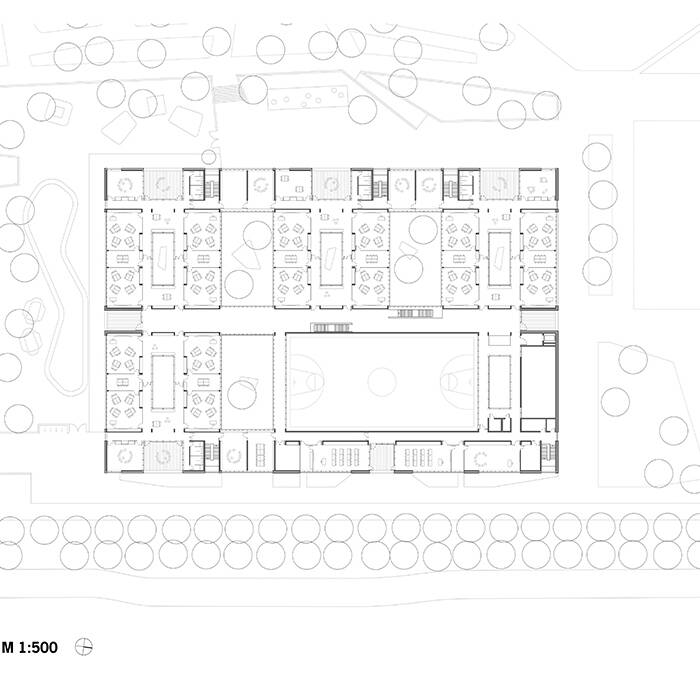
Mit der Grundschule und Kita in der Lincoln-Siedlung entstand in Darmstadt ein zusätzliches Betreuungsangebot. Kita und Schule verfügen dabei auch über Räume für Kinder mit Handicap, damit sie individuell betreut werden können. Der Neubau im südlichen Bessungen vom Darmstädter Architekturbüro Waechter + Waechter nimmt die aufgelockerte Wohnbebauung der Lincoln-Siedlung mit ihren langen Zeilenbauten auf und entwickelt eine zweigeschossige, teppichartige Großform entlang der Heidelberger Straße mit klaren Raumkanten. Durch Einschnitte, verschieden große Innenhöfe und brückenartige Verbindungen wird der Baukörper kleinmaßstäblich differenziert und die Dachlandschaft durch das Oberlichtband der Turnhalle besonders strukturiert. „Es entsteht – trotz klarer Ordnung – eine rundum attraktive, vielfältige Lebendigkeit ohne Vor- und Rückseite“, so das Architekturbüro. Schule und Kita sind zu einem Baukörper zusammengefügt, jedoch auch eigenständig ablesbar.

Das neue Schulhaus öffnet sich zum Quartiersplatz und empfängt die ankommenden Kinder, Schüler und Lehrer mit einer nord-süd-gerichteten Schulstraße, die eine einfache Orientierung ermöglicht. Sowohl die unterschiedlichen Nutzungsbereiche als auch die Jahrgangsstufen sind in räumlich zusammenhängenden, jeweils um einen Lichthof organisierten Clustern angeordnet. Die Gruppenräume der Kindertagesstätte legen sich L-förmig um zwei Lichthöfe und orientieren sich zu den zugehörigen vorgelagerten Freiräumen. Um die zwei Innenhöfe entstehen großzügige und helle Spielflächen mit direktem Außenbezug. Der Mehrzweckraum und das Bistro können wie selbstverständlich hierhin erweitert werden. Damit die Einrichtung auch außerschulisch genutzt werden kann, können Gymnastikhalle und über den Verbindungsflur beide Teile der Turnhalle, der Geräteraum und alle Umkleiden über einen gesonderten Eingang erreicht werden, ohne dass die Schule betreten werden muss. Darüber hinaus lässt sich die Sporthalle mit dem Foyer so kombinieren, dass mit der Mensa ein großzügiger Veranstaltungsbereich entsteht, der auch von den Bewohnern des Stadtteils genutzt werden kann.

Die charakteristische Bauweise im Ziegelsichtmauerwerk führt die Darmstädter Schulbautradition fort. Das farblich in vielen Rottönen changierende Sichtmauerwerk schafft die behagliche Atmosphäre im Inneren und prägt die äußere Anmutung. Vollverglaste Bauteile wechseln mit geschlossenen Wandelementen, horizontal durch Sichtbetonbänder gegliedert. Trotz der Größe des Gebäudes ergibt sich aus den Vor- und Rücksprüngen, Terrassen und Innenhöfen ein lebendiges Geflecht, das der Maßstäblichkeit der Kinder gerecht wird und zu einem hohen Wiedererkennungswert führt. Eine heitere, freundliche, lichtdurchflutete und zugleich Geborgenheit vermittelnde Atmosphäre schafft den Raum für entspanntes Fördern und Lernen.

Die Freiflächen der Schule sind mit schattenspendenden Bäumen, Sitzinseln und wenigen Spielgeräten zurückhaltend möbliert. Der verlegte Pflasterklinker nimmt den Maßstab und die Farbigkeit der Fassade auf und markiert so den Freibereich der Schule.

www.waechter-architekten.de

Fotos:

Brigida González
www.brigidagonzalez.de

(Erschienen in CUBE Frankfurt 03|22)

Nothing found.

Farbspektrum

Ein Business Club in Citylage setzt farbenreich auf Exzellenz und Vielfalt

Ein Teil des Waldes

Umbau einer Scheune zu einem modernen Rückzugsort

Passgenau am Bach

Eine geförderte Wohnanlage in Bergisch Gladbach ordnet sich kleinteilig in ihren Kontext ein

Ästhetik in jeder Hinsicht

Das Design einer oralchirurgischen Praxis vermittelt Ruhe, Kompetenz und Wärme

Nothing found.

19-11-Pavillon200505007_15_700pixel

Mobil & multifunktional

Cleveres Konzept schenkt einem Baucontainer ein nachhaltiges und abwechslungsreiches Leben

Aussen_Total_04_15_700pixel

Neue Identität

Der Mittelpunkt des Hauses ist die offen gestaltete Wohnlandschaft mit Wohn-, Essbereich und Küche mit einer angenehmen Großzügigkeit und viel…

Eine ausgewogene Balance

Außen- und Innenarchitektur treten bei dieser Villa in Wechselwirkung

Photo-1-web-_jpg_15_700pixel

Alle an einem Strang

Flexibel, sparsam und mit cleverer Technik wohnt es sich besser

Konzentration & Erlebnis

Umnutzung einer Bürofläche zu einem Arbeits- und Begegnungsort

2_MG_0029_15_700pixel

Spannung zwischen alt und neu

Neuer Grundriss bringt mehr Großzügigkeit in 30er-Jahre-Haus

SFA_FrankfurtLyonerStrasse04_LisaFarkas_01_19_700pixel

Leuchtender Rationalismus

Umnutzung schafft unverwechselbares Ensemble im Lyoner Quartier

EP03809-0007_15_700pixel

Ein skulpturales Gebäudeensemble

Hochwertiges Studierendenwohnheim Campo Novo Mannheim mit 208 komfortablen Apartments