Zweideutiger Hybrid

Ein Einfamilienhaus in Wesseling schlägt konstruktiv und ästhetisch eine Brücke

VEF_0869_f_19_700pixel

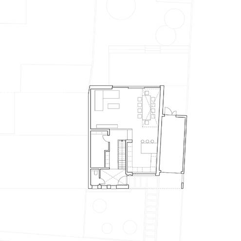
Viele Bauherren in Deutschland wünschen sich ein Haus im „Bauhausstil“. Allein über diesen Begriff lässt sich trefflich streiten – meistens verbergen sich dahinter die Bilder von einer offenen, hellen Wohnsituation mit modernen, ineinanderfließenden Wohnräumen. Auch das befreundete Bauherrenpaar mit zwei kleinen Kindern wünschte sich vom Kölner Büro Bruhn Knechtges Müller Architekten ein Haus im „Bauhausstil“ für ein Grundstück in Wesseling. Schnell war allerdings klar, dass sich auf dem schmalen, nordorientierten Baufeld der gewünschte „Bauhaustraum“ nicht eins zu eins umsetzen ließ. Stattdessen entstand ein Haus, das die klassische Satteldach-Typologie der Nachbargebäude aufgreift, zugleich aber ein großzügiges modernes Raumgefüge entstehen lässt – mit viel Tages- und Sonnenlicht. 

Durch das schmale Baufeld war die bauliche Anbindung an das Nachbarhaus mit einem flach ansteigenden Satteldach nahezu unabdingbar. Die Frontlinienstellung des Hauses war dabei über eine Baulinie bereits vorgegeben, der Anschluss an das Nachbargebäude erfolgte durch die Aufnahme der Konturlinie des Nachbargebäudes. Das Erdgeschoss schafft ein großzügiges „Durchwohnen“: Von der Straße bis zum Garten ist der Raum durch eine weitläufige offene Koch-Ess-Wohnsituation geprägt. Um dennoch die im Obergeschoss notwendigen Räume für Kinder- und Elternschlafzimmer, Badezimmer und Ankleide zu haben, wurde das Haus als Hybridkonstruktion umgesetzt: Ein tragender Stahlbetonbau mit wenigen Wandschotten fängt die Wandstellungen des Obergeschosses ab, die wiederum komplett in einer gewichtreduzierten, reversiblen Holzständerbauweise ausgeführt wurden. Auffallend ist die ungewöhnliche Öffnung des Hauses in die Vertikale: Die verspringende Bodenplatte kreiert, im Zusammenspiel mit einem etagenübergreifenden Luftraum, eine bis unter das Dach geöffnete, hohe Raumsituation mit Galerie. Um die Nordausrichtung des Gebäudes zu kompensieren, wurden  zusätzliche Öffnungen zur Belichtung geschaffen – etwa die breite Giebelfensterfront, die die Morgensonne über dem Esstisch einfängt. Nach außen verknüpft sich das Haus harmonisch mit den beiden markant aus dem Dach hervorstehenden Zwerchgiebel und der Überkragung des Eingangsbereiches zu einer plastischen, in der Farbgebung abgestuften Fassade.

www.bkm-architekten.de

Fotos: 

Viola Epler
www.violaepler.de

(Erschienen in CUBE Köln Bonn 02|23)

Architektur:

Bruhn Knechtges Müller Architekten
www.bkm-architekten.de

Erdarbeiten, Rohbau: 

Dederichs
www.dederichs-bau.de

Fenster: 

Schneider Metallbau
www.schneider-metallbau.com

Heizung, Lüftung, Sanitär: 

HS Homm
www.wasserwaermeluft.de

Dachdeckerei: 

Husmann + Schiller
www.hs-dach.de

Zimmerei (Dachstuhl): 

Reissaus
www.holzbau-reissaus.de

Fliesen: 

dasfliesenatelier
www.dasfliesenatelier.de

Bodenbelagsarbeiten: 

HR Fußböden
www.hr-fussboeden.de

WDVS + Außenputz: 

Wachholz-Connemann
www.wachholz-connemann.de 

Schreinerei: 

van Dyck
www.schreinerei-van-dyck.de

 

Nothing found.

Harmonisch eingefügt

Neubau-Ensemble wahrt den historischen Bezug und entwickelt eigene Identität

Traditionell und Modern

Traditionell und Modern

Massivholzhaus ist der Publikumsliebling beim Rosenheimer Holzbaupreis

Erdverbundene Leichtigkeit

Winkelförmiger Bungalow auf Sockel mit Höfen bildet einen geschützten Gartenbereich

Nothing found.

HI17_01_15_700pixel

Kontrastvoll inkorporiert

Der Umbau eines Dachspeichers schafft individuelle Räume entlang der Dachlinie

Moebel-Compagnie-Edge-1Y2A1208_15_700pixel

Holzmöbel fürs Leben

Sophie und Gunnar Brand fertigen zeitlose Möbel und Accessoires

Möbel mit Vorleben

Bei Reditum trifft Nachhaltigkeit Design und Funktion

Nach der Flut ist vor der Flut

Nach der Flut ist vor der Flut

Ein historisches Wohnhaus in Mechernich wurde nicht nur denkmalgerecht saniert

_U7A8050_19_700pixel

Die Kunst der Synthese

Eine Stadtwohnung im Kunibertsviertel setzt den robusten Denkmalbestand neuartig in Szene

Bauernhof wird Feriendomizil

Umbaumaßnahmen verbinden alte Gebäudeteile mit neuen Ideen

Wasserspielplatz-Ko-ln-Foto-Felix-Arabin-5-_19_700pixel

Wasserspaß am Fernsehturm

Der neue Wasserspielplatz im Inneren Grüngürtel ist nachhaltig und multifunktional