Überzeugendes Ensemble
Markanter Neubau fasst Funktionsbereiche zusammen und ergänzt die historische Kirche
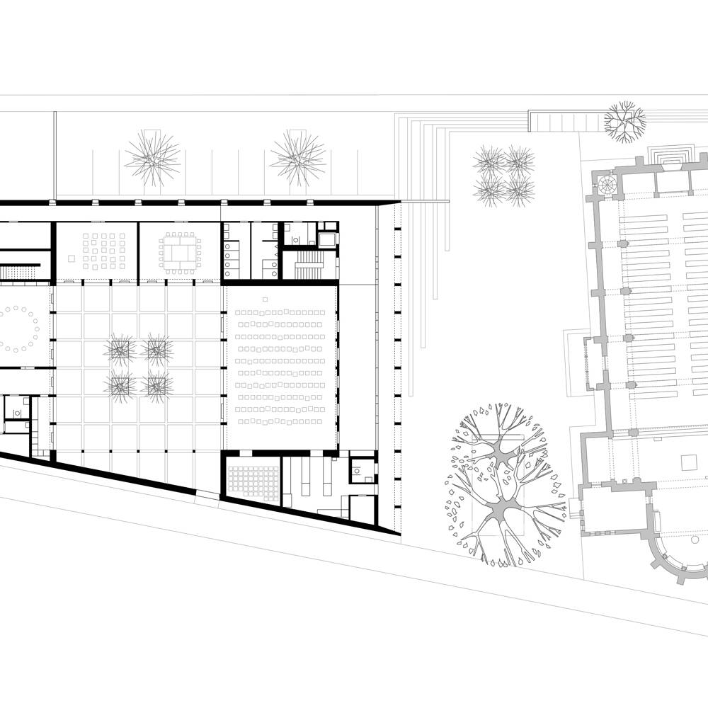
Die Katholische Kirche St. Maria in Geislingen an der Steige wurde 1909 als Wandpfeilerkirche aus Backstein im neuromanischen Baustil errichtet. Westlich des Gotteshauses standen mehrere Gebäude der Kirchengemeinde, die durch etliche Um- und Anbauten zu einem Komplex geworden waren, der schwer zu unterhalten war. Im Zuge der Neuorganisation der Katholischen Gemeinde beschloss man, diesen abzureißen und durch ein neues Gemeindehaus, ein Pfarramt für die gesamte Stadt sowie einen Jugendbereich und Pfarrwohnungen zu ersetzen. Den beschränkten Wettbewerb gewann das Büro Dauner Rommel Schalk Architekten, das alle vier Funktionsbereiche in einem kompakten Baukörper zusammengefasst hat.
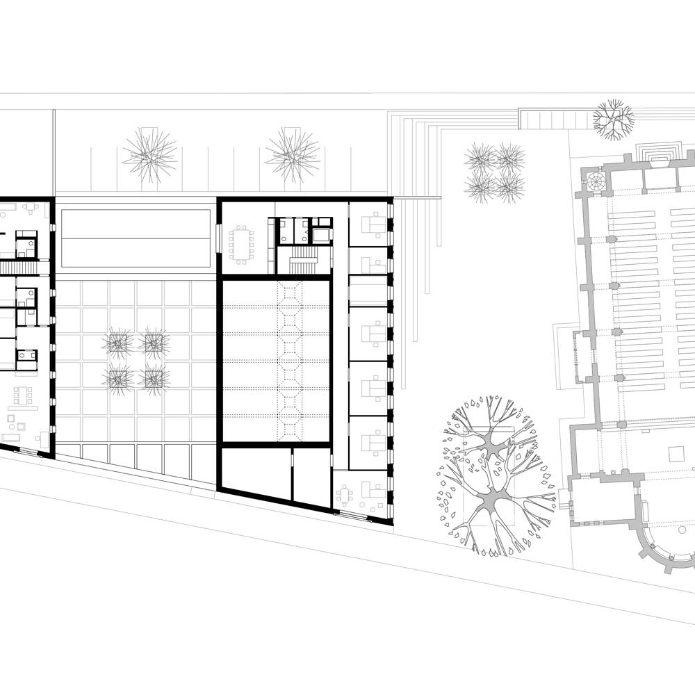
Mit einem wettergeschützten Dach orientiert sich der multifunktionale Neubau zum Vorbereich der benachbarten Kirche und bildet gemeinsam mit dem über 100 Jahr alten Gebäude ein prägnantes Ensemble. Der geschaffene Stadtraum mit Bestandsbäumen und einer neuen Baumgruppe öffnet sich nach Südosten und über eine großzügige Treppe nach Nordwesten. Während die Fassade des zweigeschossigen Gebäudes zur stark frequentierten Straße und den Parkflächen überwiegend geschlossen gestaltet ist, öffnet sie sich großzügig zum Kirchplatz und zur ruhigeren angrenzenden Straße. Das Zentrum der Anlage bildet der Gemeindesaal, der über das Foyer direkten Bezug zum Kirchplatz hat und sich auf der gegenüberliegenden Seite mit großen Fenster- und Türelementen zum zentralen Innenhof orientiert. Zusätzlich erhält er Tageslicht über plastisch ausgeformte Oberlichtöffnungen, die den über zwei Geschosse reichenden Raum dominieren. Auch alle weiteren essentiellen Funktionsbereiche des Erdgeschosses, darunter die Gruppenräume und der Jugendbereich, öffnen sich zum ruhigen Innenhof, der mit seiner streng geometrischen Ausformung einen stimmigen Kontrast zur heterogenen Umgebung bildet. Im Obergeschoss ist der Verwaltungsbereich inklusive Pfarrbüro, die Pfarrwohnung sowie zwei kleinere Wohneinheiten untergebracht. Einzelne Räume im Erdgeschoss und die Treppenräume sind farblich akzentuiert, was dem jeweiligen Funktionsbereich eine eigene Identität verleiht.
Optisch vom Kirchengebäude inspiriert, treffen an den Fassadenflächen rötliches Verblendmauerwerk und Betonfertigteile aufeinander. Vor- und Rücksprünge in der Fassade sowie teils plastisch ausgeformte Oberflächen schaffen ein prägnantes Licht- und Schattenspiel. Obwohl beide Gebäude als Ensemble wahrgenommen werden, vermittelt die moderne Formensprache des Neubaus mit seinen Fensterlaibungen aus Metall einen eigenständigen Charakter.
Fotos:
Julian Bauer
www.julianbauer.de
(Erschienen in CUBE Stuttgart 02|25)



