Hofarchitektur neu interpretiert
Viel Platz und Licht zum Wohnen und Arbeiten
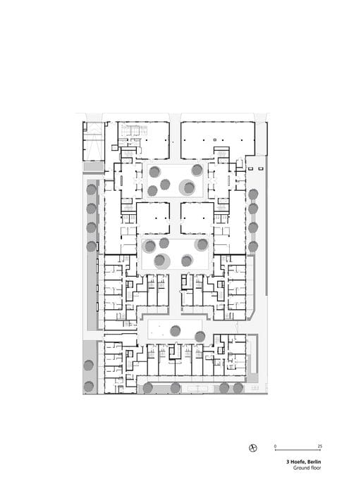
Mixed-Use Gebäude sind mehr und mehr geschätzte Stadtbausteine, da sie eine Durchmischung von Arbeiten, Wohnen und Einkaufen ermöglichen. Sie verhindern Ödnis und Eintönigkeit und sorgen für lebendige Quartiere. Ein Neubau dieses Gebäudetyps belebt das Lützowviertel. Wie die traditionellen (Hinter-) Höfe – die für Berlin typische „Hofarchitektur“ aus der Mitte des 19. Jahrhunderts – die sich tief in die Quartiere hineinschoben, ist der Neubau die „Drei Höfe“ in der Lützowstraße beschaffen. Der Entwurf stammt von den Architekten Tchoban Voss mit Standorten Hamburg, Berlin und Dresden. Der Hybrid-Bau setzt sich aus der Dreifachnutzung Wohnen, Büros und Retail zusammen. Die drei Höfe werden von der Lützowstraße im Norden aus erschlossen. Im vorderen Bereich, um den ersten Innenhof herum, liegt das „Bürohaus“. Um die beiden darauf folgenden Höfe herum schließt das Wohngebäude an. Im Süden gibt es einen Durchgang zur Pohlstraße. In unmittelbarer Nähe des Gebäudekomplexes liegt der Gleisdreieck Park, nicht weit entfernt der Potsdamer Platz und der Tiergarten. Wie die Bezeichnung „Drei Höfe“ schon verrät, ist der Gebäudeblock um drei Innenhöfe angeordnet. Das Bürogebäude verfügt über sechs Vollgeschosse sowie ein Staffelgeschoss und umfasst über 18.000 m² Bürofläche, die beliebig aufteilbar sind, mit maximal sieben Einheiten pro Geschoss. Der Bauteil Wohnen, mit insgesamt 223 Wohnungen, ist an seinen Längsseiten sieben Vollgeschosse hoch, plus einem Staffelgeschoss on top. Dies entspricht der Traufhöhe der Nachbargebäude. Die Quer- bzw. Mittelriegel umfassen nur sechs Vollgeschosse und ein Staffelgeschoss. Beide Gebäudeteile verfügen über eine Tiefgarage. Die Gestaltung der Innenhöfe übernahm der renommierte Landschaftsarchitekt Rainer Schmidt aus München. Er entwarf einzelne grüne Inseln, die sich lose über die Höfe verteilen. Die Wohngebäude verfügen über Balkone an ihren Aussen- und Innenseiten. Auch hier gibt es flexible Grundrisse. Je nach Bedarf können durch Trennwände größere und kleinere Bereiche geschaffen werden. Ergänzend kommen „fertige“ Wohnungstypen, wie Studios, Appartements, Maisonettewohnungen und Penthouses, hinzu. In die straßenseitigen Erdgeschosse sind Einzelhandelsgeschäfte eingezogen, die die Infrastruktur des Viertels aufwerten. Die Flachdächer sind teils extensiv begrünt, teils als freie Flächen um die Staffelgeschosse herum als Dachterrassen gestaltet.
Fotos:
Stefan Müller
www.stefanjosefmueller.de
(Erschienen in CUBE Berlin 03|23)

