Understatement im Herzogpark
Wohnen für Anspruchsvolle in bester Lage
Das Wohngebäude in der Kolbergerstraße 5 heischt nicht nach Aufmerksamkeit, sondern ist von zurückhaltender Eleganz – wie es der Architektursprache von Pritzker-Preisträger Sir David Chipperfield entspricht. Gemeinsam mit seinem langjährigen Mitarbeiter Mark Randel, der seit nunmehr zehn Jahren sein eigenes Büro, das „Studio Mark Randel“, in Berlin betreibt, wurde das Stadtpalais für den Projektentwickler Euroboden entworfen. Es gliedert sich in die gründerzeitlichen Häuser der Nachbarschaft ein und vervollständigt den historischen Stadtentwurf des prägenden Münchner Architekten und Stadtplaners Theodor Fischer.
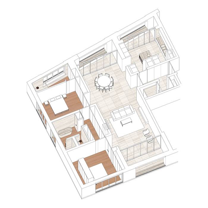
Die Fassade ist zurückhaltend – nur strukturiert von zwei unterschiedlichen Kalkputzen, vertikalen Lisenen und schmalen horizontalen Natursteinbändern. Die Gediegenheit und der minimalistische Einsatz exklusiver Materialien sind unübersehbar: Eingangstüren aus Eichenholz, bündig eingepasste moderne Kastenfenster mit feine Stahlprofilen sowie aus Bronze gegossene Absturzsicherungen bestimmen den äußeren Eindruck. 12 Wohneinheiten unterschiedlicher Art teilen sich knapp 2.800 m2 Wohnfläche: Das Gebäude umfasst zwei dreigeschossige Townhouses, zwei Penthouses und acht Etagenwohnungen. Beim Eintreten empfängt Besucher:innen ein Foyer, das über zwei Etagen reicht. Links und rechts befinden sich die Stadthäuser, mit einem Untergeschoss reichen sie bis zur 2. Etage. Auch im Innern finden sich hochwertige Materialien: Raumhohe Türen, handwerklich verarbeitete Naturwerkstoffe, wie geöltes Eichenholz, bronzierte Handläufe und Türgriffe sowie aus großen Travertinblöcken gearbeitete Badewannen gehören zur gehobenen Ausstattung. Krönender Abschluss unter einem Walmdach sind die beiden Penthouses, das eine über zwei Ebenen – verbunden durch eine massive Travertintreppe. Nach Südosten, zur Kolbergerstraße hin, schließt sich ein kleiner Park an. Nach Westen sind es nur wenige Gehminuten bis zur Isar.
Fotos:
Simon Menges
www.simonmenges.com
Mark Randel
Erschienen in CUBE München 04|23)
