Spannende Inszenierung
Neubau kombiniert innovative Bauweise und nachhaltiges Upcycling
Wie nachhaltiges Bauen, persönliche Geschichte und innovative Architektur verschmelzen können, zeigt dieses Wohn- und Geschäftshaus. In einem Gewerbegebiet gelegen, verbindet das zweigeschossige Gebäude innovative Bauweise, eine durchdachte Gestaltung und nachhaltiges Upcycling. Ausrangierte Seecontainer bilden elementare Bauelemente, so wie es sich der Bauherr gewünscht hatte, der im Containerbereich tätig ist.
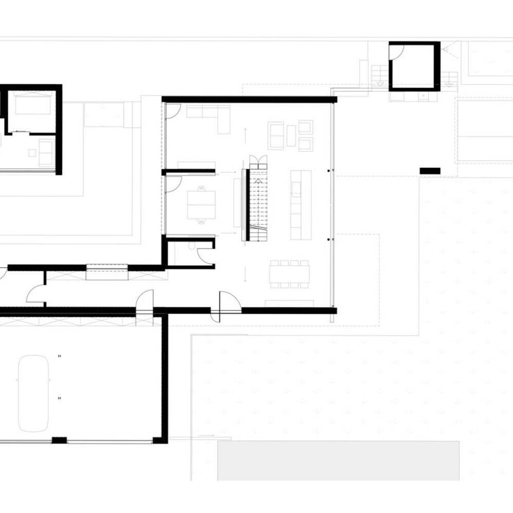
Das Büro Hormuth Architektur stand vor der Herausforderung, zwei gegensätzliche Wünsche zu verbinden: Einerseits sollte im Erdgeschoss ein offener Grundriss entstehen, der großzügige, fließende Räume ermöglicht. Andererseits erfordert die Tragfähigkeit der Container eine kleinteilige Struktur. Die Lösung: eine Hybridkonstruktion, bei der im Erdgeschoss ein konventioneller Stahlhallenbau die Basis bildet, während im Obergeschoss die ausrangierten High-Cube-Container aufgesetzt wurden. Diese Kombination schafft eine spannende Inszenierung der unterschiedlichen Konstruktionsarten, die im Innenraum sichtbar bleibt und durch unterschiedliche Farbgestaltung in den beiden Geschossen betont wird. Die Fassadengestaltung basiert auf Sandwichplatten, die sowohl die bauphysikalischen Anforderungen des Stahl- und Containerbaus erfüllen als auch optisch ins Umfeld passen. Das Gebäude fügt sich gut in die lockere Struktur der Nachbarbebauung ein, die von vielen Industriehallen geprägt ist. Zur Wahrung der Privatsphäre wurde eine geschlossene Wand zur Straße hin geplant, die in gleicher Optik wie die Fassade ausgeführt ist. Ein integriertes Tor ermöglicht den Zugang zum Grundstück und schafft eine klare Abgrenzung.
Auch im Innenraum wurden die Container in Szene gesetzt. Das offene Raumkonzept wird durch eine beeindruckende Glasfront mit 12 Metern Breite betont, die durch die große Spannweite der Stahlträger realisiert werden konnte. Diese Verbindung von Innen und Außen wird durch den fugenlosen Sichtestrich im Inneren unterstrichen, wo das Erdgeschoss einen offenen Wohnbereich beherbergt. Das Gebäude wurde so ausgerichtet, dass die Glasfassade im Erdgeschoss optimal genutzt werden kann, ohne zu große Hitzeeinträge. Die auskragenden Baukörper im Obergeschoss schaffen Schatten und verbessern das Raumklima. Durch ihre Anordnung öffnet sich das Gebäude in Richtung Grünflächen und schafft zwei private Innenhöfe sowie einen sichtgeschützten Garten.Eine innenliegende Wärmepumpe ohne Außengerät, Wärmeschutzverglasung, Fußbodenheizung und Dachbegrünung ergänzen das nachhaltige Energiekonzept.
Fotos:
Nuno Fernandes Tomás
(Erschienen in CUBE Stuttgart 03|25)



