Mensch, Natur, Architektur

Eine Unternehmenszentrale wertet ihren Standort auf, bezieht die Natur ein und schafft Identifikation

Nething_Hartmann_Bu-ro_Aussen_8_15_700pixel

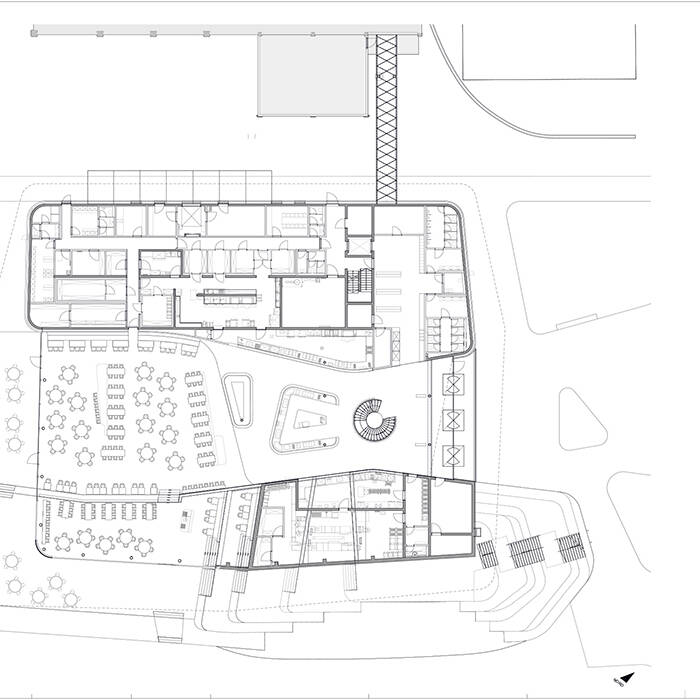
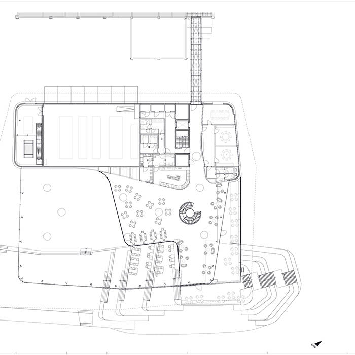
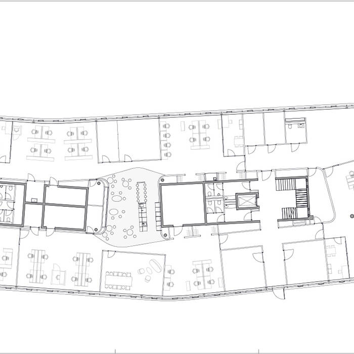
Auf dem Firmengelände des Anbieters für Medizin- und Pflegeprodukte Hartmann bot sich nach dem Rückbau einiger Gebäude genügend Platz, um den seit über 200 Jahren bestehenden Haupt- und Stammsitz zu erneuern und zu erweitern. Gemeinsam mit dem Architekturbüro Nething entwickelte das Unternehmen eine zukunftsorientierte Masterplanung, die eine zeitlich unabhängige Umsetzung der verschiedenen „Bausteine“ ermöglicht. Eine Magistrale verbindet alle Neubauten mit dem Bestand und schafft mit ihren dynamischen Konturen fließende Übergänge. Im ersten Schritt wurden Mitte 2021 ein Bürobau sowie das Forum bezogen.

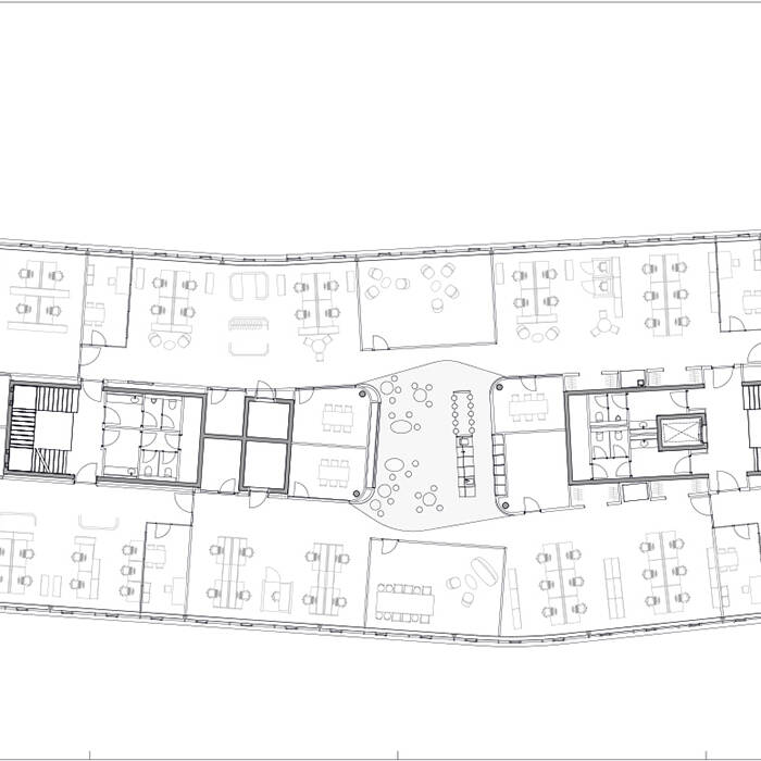
Das Officegebäude mit 330 Arbeitsplätzen dient gemeinsam mit dem Forum als Identifikationspunkt für die Mitarbeitenden und schafft einen kreativen Raum für lebendiges Arbeiten. Die weich fließende, organische Form betont die Fürsorge und Leidenschaft, Menschen zu dienen. Damit kontrastiert sie mit der matt reflektierenden, samtenen Oberfläche der Fassade aus weißem Glattblech. An der nordöstlichen, zurückgesetzten Kopffassade im Erdgeschoss befindet sich der Haupteingang. Auskragende Obergeschosse bilden einen überdachten und sowohl zur Pforte als auch zum Forum hin orientierten Zugang als großzügige Geste. Im Inneren dominiert in allen Etagen ein Funktionskern. Er überträgt die organische Form der Fassade ins Innere und nimmt Meeting- und Fokusräume, Garderobe, Sanitärräume sowie Kaffeeküche auf. Die Büroflächen sind so geplant, dass sie flexibel mit Großraum-, Kojen- oder Einzelbürostrukturen belegbar sind. Dafür wurde eine systemische Ausstattung und Vorhaltung der haustechnischen Anlagen entwickelt, die es ermöglicht in ca. jeder dritten Achse ein Einzelbüro auch nachträglich einzurichten.

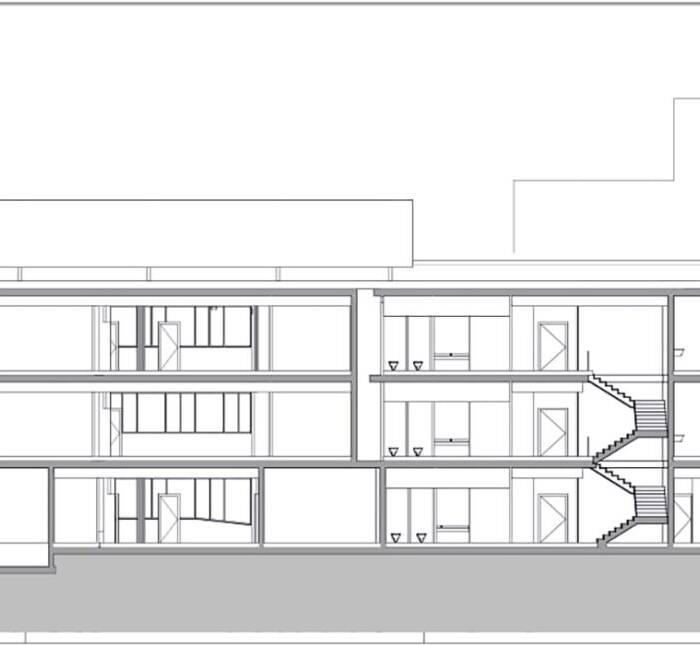
Wo vor 200 Jahren die Mühlen der einstigen Spinnerei standen, vereint heute das Forum als zentraler Treffpunkt Historie und Zukunft mit Betriebsrestaurant, Cafeteria und Meeting­räumen. Wesentlicher Entwurfsansatz ist die Verbindung von Innen- und Außenraum und die starke Einbindung der Natur an der Brenz. So gliedert sich die Gebäudestruktur in unterschiedliche Höhenlagen: Das im Erdgeschoss gelegene Betriebsrestaurant geht über Podestflächen fließend in die Cafeteria im Obergeschoss über. Dabei wird ein künstlicher Hügel ins Gebäude geführt, indem der Innen- und Außenbereich entlang der gesamten Höhenstaffelung nur durch eine Glaswand getrennt ist. Die bis zu 8,15 m hohe Verglasung zieht den Fluss und das Grün förmlich in den Innenraum.

www.nething.com

Fotos:

Matthias Schmiedel
www.matthiasschmiedel.de

(Erschienen in CUBE Stuttgart 04|22)

Nothing found.

Ort der Begegnung

Das neue Pfarrheim Mariä Himmelfahrt in Miesbach prägt ein Kontrast aus Modernität und Tradition

Preziose unterm Dach

Ein Spitzboden in einem Mehrfamilienhaus in Essen-Rüttenscheid wird zum Vorzeigeprojekt

Vergangenheit & Zukunft

Modellprojekt zeigt, wie sakrale Bestandsarchitektur transformiert werden kann

Nothing found.

CF011091-Kopie_19_700pixel

Einsatzbereites Tor zur Stadt

Regionaler Waldbau liefert Holz für neues, hoch funktionales Feuerwehrgebäude mit Ausstellungsbereich

ZB654-08_15_700pixel

Ganzheitlich gestaltet

Denkmalgeschütztes Wohnhaus Hölderlins saniert, erweitert und für eine Ausstellung inszeniert

dzpa_Sanierung-und-Modernisierung_Haus-Z-in-Mo-ssingen_Strassenansicht_b_15_700pixel

Modern mit 60er-Jahre-Charme

Umbau eines Wohnhauses mit flächigen Elementen in Massiv- und Holzbauweise

RH2953-0005_19_700pixel

Geschichte fortschreiben

Ensemble aus drei Restaurant-Neubauten – angelehnt an traditionelle Schwarzwälder Architektur

Die zwei Seiten

Organische Front trifft auf klare, lineare Rückfassade

Nachhaltig ergänzt

Holz-Beton-Hybridneubau ergänzt einen Altbau, der mit seiner Bauzeit ablesbar bleibt

210811_WraggeGa-rten_Fam-Stroh_PatrikGraf-5-4_19_700pixel

Akzente übers ganze Jahr

Barrierefreie Gestaltung mit tierfreundlicher Bepflanzung und geschützten Aufenthaltsbereichen

IMG_0059_b-Kopie_15_700pixel

Einfach überraschend

Polygonale Raumkörper erzeugen ein Wechselspiel aus geschlossenen und offenen Volumen