Massiv gedacht – fein gestaltet
Ein Wohnhaus im Westen von Köln besticht durch die Stimmigkeit seiner Details
Über einige Jahre stand der Architekt Benjamin von Pidoll schon im Austausch mit der Bauherrschaft, beriet intensiv bei der Suche nach dem passenden Grundstück. Nach dem Kauf eines Eckgrundstückes im Kölner Westen wurde das Architekturbüro mit der Planung des großzügigen Einfamilienhauses beauftragt. Ein klarer, bis in die Details hinein konsequenter Gestaltungsansatz zieht sich dabei durch das gesamte Projekt – zurückhaltend reduziert, hochwertig in den Materialien und mit Referenz an einen Klassiker der Architekturmoderne.
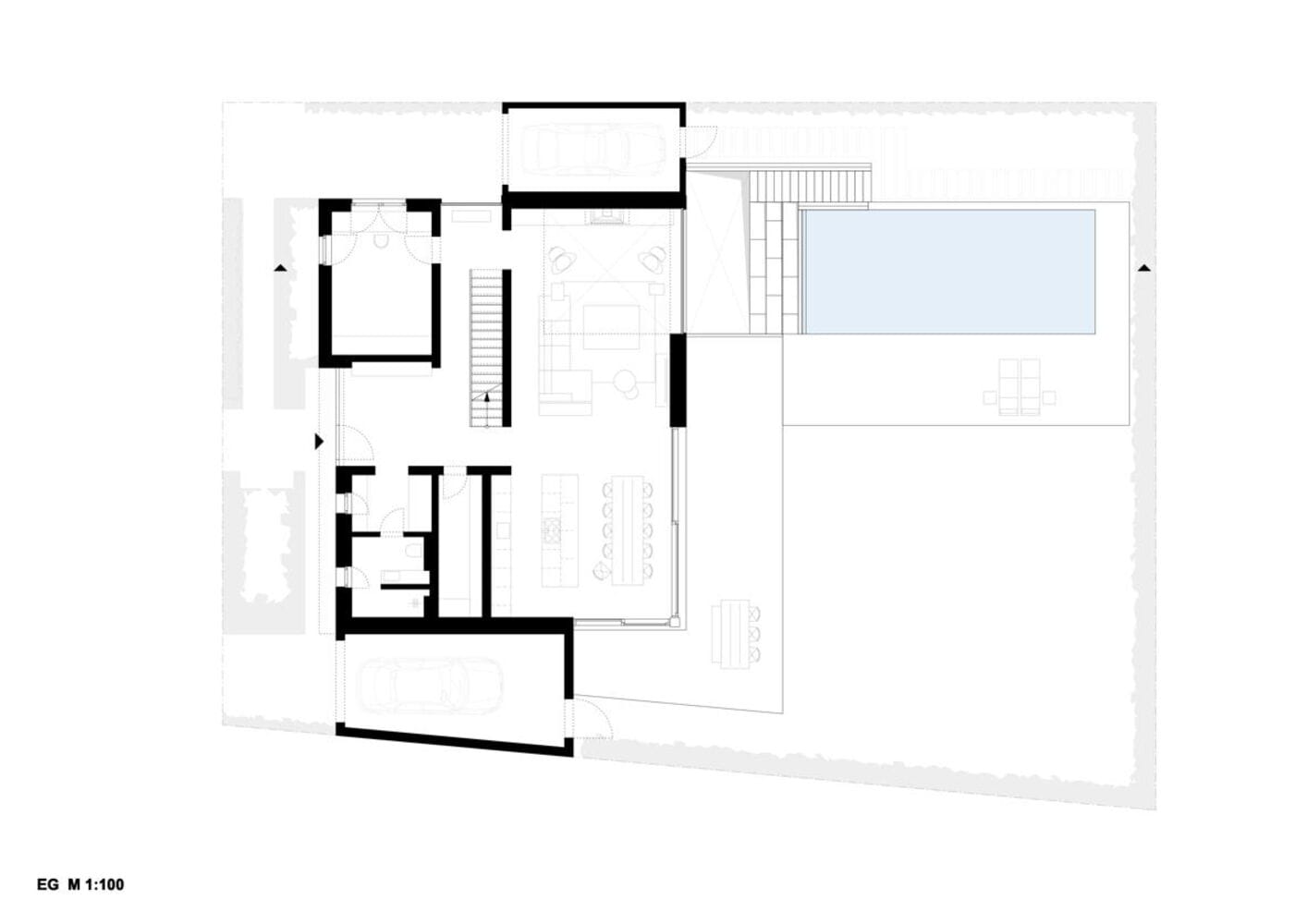
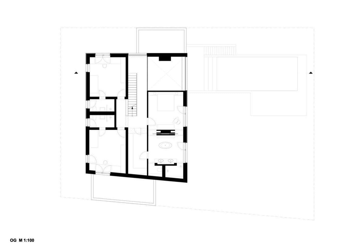
Die Familie mit zwei Kindern und einem Hund hatte sich ein offenes, vom Tageslicht durchflutetes, kommunikatives Haus gewünscht – freistehend und doch mit ausreichend Privatsphäre. Gerade letzteres wurde zu einer Herausforderung für die Planung: Um die Einsichten von der Straße zu begrenzen, mussten die gezielt geöffneten Fassadenbereiche mit ebenso bewusst geschlossenen Zonen kombiniert werden. Das Volumen des Gebäudes ist dabei als freistehender Kubus ausgebildet, der über zwei voneinander abgesetzte Vollgeschosse und ein zurückspringendes Staffelgeschoss geführt und mit Bändern aus pulverlackierten Aluminiumlamellen strukturiert wird. Der zum Garten auf der ganzen Breite geöffnete Baukörper und die Dachterrasse mit umlaufender, filigraner Reling auf dem obersten Geschoss wecken dabei bewusst Assoziationen zu Le Corbusiers Villa Savoye. Aber auch im Inneren ist dem Einfluss dieser Ikone der modernen Villenarchitektur nachzuspüren: Um die an zentraler Stelle angeordnete Treppe gruppieren sich die verschiedenen Zonen in einem offenen, lichtdurchfluteten Grundriss. Das kreiert viele Blickbeziehungen und kommunikative Bereiche – besonders über dem gartenseitig orientierten Wohnbereich, der mit einem Luftraum und einer Galerie in das Obergeschoss führt. Durch die großzügigen, über zwei Etagen geführten Glasfronten ergeben sich dabei nicht nur wunderbare Ausblicke auf den Lichthof mit dem Infinity Pool. Das üppig einströmende Tageslicht sorgt auch für dynamisch wechselnde Lichtreflexionen über die gesamte Gebäudetiefe vom Wohnbereich bis ins Entrée. Die Innenräume nehmen sich in ihrer Gestaltung dagegen bewusst zurück: Wie die Fassade prägen auch das Interior nur wenige Grautöne und Greige-Akzente. Der architekturinteressierten Bauherrschaft war es dabei wichtig, dass das Gebäude als „ehrlicher“ Monolith wirkt – entsprechend wurde statt eines konventionellen WDVS-Systems eine massive Lochziegel-Bauweise ohne weitere vorgesetzte Dämmung gewählt. Bedingt durch die großen Auskragungen und offenen Räume mussten gleichzeitig eine Reihe von Stahlbetonstützen in die Wände integriert werden. Auch ein anderes selbstverständliches Detail hat den Architekten viele Überlegungen abverlangt: Der über zwei Etagen geführte Kamin wurde platzsparend in die Außenmauer integriert. Zugleich musste der Schacht auch statisch abgehangen werden, um am Ende die gewünschte filigrane, dreiseitig geöffnete Brennkammer zu erhalten.
Wohnfläche: 394 m²
Grundstücksgröße: 641 m²
Planungs- und Bauzeit: ca. 3 Jahre
Bauweise: Massivbau mit Lochziegeln
Energiekonzept: Geothermie
Fotos:
Philip Kistner
www.philipkistner.com
(Erschienen in CUBE Köln Bonn 03|25)



