Licht als Lebensqualität
Wohnhaus findet durch Sanierung zu neuer Leichtigkeit, Offenheit und Energieeffizienz
Eingebettet in einem ruhigen Darmstädter Hinterhof zeigt ein eher unscheinbares Einfamilienhaus, wie viel Potenzial im Bauen im Bestand steckt. Das Architekturbüro Design In Architektur hat hier ein Haus aus den frühen 1990er-Jahren grundlegend transformiert: energetisch, räumlich und atmosphärisch. Aus dem etwas in die Jahre gekommenen Wohngebäude wurde durch Licht, Offenheit und den bewussten Umgang mit Materialien ein Haus, das Wärme und Leichtigkeit ausstrahlt – ein Zuhause, das sich jeden Tag neu mit dem Sonnenlauf wandelt und damit das Leben seiner Bewohner:innen im besten Sinne heller macht.
Durch gezielte Lichtführung und den Einsatz natürlicher Materialien haben die Architekten eine helle, einladende Wohnatmosphäre geschaffen – mit klarer Struktur, aber ohne starre Formeln. Sie haben im Zuge der Sanierung Räume geöffnet, Blickbeziehungen geschaffen und dennoch die Privatsphäre der Bewohner:innen bewahrt. Das Tageslicht wurde dabei zum zentralen Gestaltungselement in allen Geschossen – nicht nur funktional, sondern auch emotional. Um mehr Wohnraum zu gewinnen, haben die Architekten zudem den ehemaligen Wintergarten des Hauses rückgebaut. An seiner Stelle entstand ein neuer Anbau aus Holz mit Flachdachkonstruktion, der heute die Küche beherbergt. Ein großzügiges Dachfenster lenkt das Tageslicht tief in den Raum und erzeugt auch hier eine lebendige Lichtstimmung, die sich mit Wetter und Tageszeit verändert. Die Küche wird so zu einem Ort der Bewegung, des Zusammenkommens – hell, offen und natürlich. Durch den Abbruch mehrerer Trennwände entstand im Erdgeschoss ein großzügiger Wohnraum, der fließend ineinander übergeht. Materialien wie Holz, Putz und Glas verbinden die Zonen zu einer harmonischen Einheit. Die Farbgestaltung bleibt ruhig und erdig – ein bewusster Kontrast zur Dynamik des Lichts.
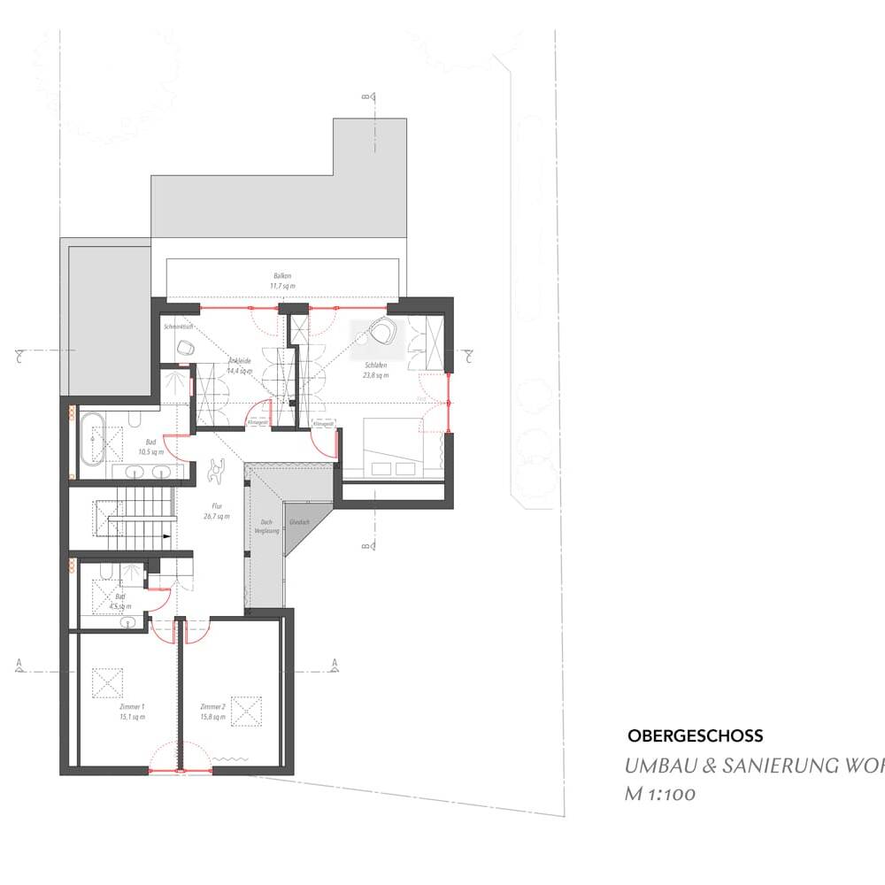
Auch im Obergeschoss spielt Tageslicht wieder eine zentrale Rolle. Ein verglaster Flur fungiert hier als Lichtverteiler, der selbst kleinteilige Räume mit Helligkeit versorgt. Glasflächen schaffen Sichtbezüge zwischen den Bereichen, ohne die Intimität der Rückzugsräume aufzugeben. Im Treppenhaus fängt ein geschickt gesetztes Dachfenster das Licht von oben ein und taucht die Vertikale in ein sanftes, gleichmäßiges, funktionales und atmosphärisches Leuchten. Parallel zur räumlichen Neugestaltung wurde das Haus zum KfW-Effizienzhaus 85 EE-Klasse aufgewertet. Eine Hybridheizung aus Brennwertkessel und Luft-Wasser-Wärmepumpe reduziert den Energieverbrauch, während eine Photovoltaikanlage erneuerbare Energie liefert. Der Umbau zeigt, dass energetische Sanierung und architektonische Qualität kein Widerspruch sind – im Gegenteil: Sie verstärken einander.
Fotos:
Gregor Schuster
www.gregorschuster.de
(Erschienen in CUBE Frankfurt 04|25)



