Markanter Ruhepunkt

Eleganter Klinkerbau leistet einen Beitrag zur Stadtreparatur

SFA_FrankfurtMainzerLandstrasse_LisaFarkas_02_19_700pixel

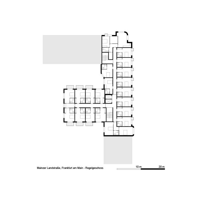
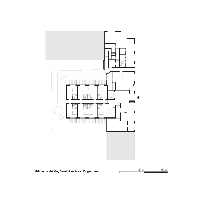
Früher hatte die Concordia-Versicherung ihr Domizil in der prominenten Lage am Frankfurter Güterplatz. Nach Abriss des nicht mehr sanierungsfähigen Bürogebäudes entstand hier ein Neubau nach dem Entwurf des Büros Stefan Forster – und damit Raum für 117 Wohneinheiten und Gastronomie im Erdgeschoss. Der elegante Klinkerbau schafft auf einer Geschossfläche von 5.480 m² Platz für überwiegend möblierte Mikroapartments mit einer Größe von 26 m². Einige Zwei- und Dreizimmerwohnungen wurden auch geplant. Zielgruppe für den neuen Wohnraum: junge Berufstätige, Studenten,  Singles oder auch Wochenendpendler.

Der elegante Klinkerbau nimmt seine Umgebung sowohl auf und setzt sich gleichzeitig geglückt von ihr ab: In Proportionen und Dimensionen bezieht sich der Baukörper selbstverständlich auf die Nachbarbebauung mit ihrer Traufhöhe auf und leistet so einen Beitrag zur Stadtreparatur. Ein Gedanke, den die warmtonige, reliefartig gestaltete Klinkerfassade mit Bezügen auf die europäische Baugeschichte weiterführt. Auffällig und besonders prägnant: Das überhöhte Erkermotiv, das die Ecksituation und somit den Bezug zum gegenüberliegenden Güterplatz betont. Herausstechend aus der bisweilen etwas trist erscheinenden Umgebung ist allerdings die warmtonige Klinkerfassade mit ihrer aufwendigen Profilierung.

Während das Gebäude architektonisch neue Maßstäbe in seinem Umfeld setzt, war es zunächst eine kleine Herausforderung für die Architekten, die vom Bauherren HGG Dritte Projektgesellschaft gewünschten Flächen unterzubringen und die Stadt davon zu überzeugen, diese Flächen auch zu genehmigen. Am hektischen, architektonisch heterogenen Güterplatz ist so ein Ruhepunkt mit hohem Wiedererkennungswert entstanden – ein willkommener Kontrast zum architektonischen Alltag an der Schnittstelle von Gallus und Europaviertel.

​www.sfa.de

Fotos:

Lisa Farkas

(Erschienen in CUBE Frankfurt 03|22)

Architekten:

Stefan Forster Architekten
www.sfa.de

Fenster:

Gealan
www.gealan.de

Türen:

Schüco
www.schueco.de

Heizung:

Rehau
www.rehau.com

Armaturen:

Grohe
www.grohe.de

Klinker:

Janinhoff
www.janinhoff.de

Nothing found.

Harmonisch eingefügt

Neubau-Ensemble wahrt den historischen Bezug und entwickelt eigene Identität

Traditionell und Modern

Traditionell und Modern

Massivholzhaus ist der Publikumsliebling beim Rosenheimer Holzbaupreis

Erdverbundene Leichtigkeit

Winkelförmiger Bungalow auf Sockel mit Höfen bildet einen geschützten Gartenbereich

Nothing found.

Wohnhaus-FS_Aussen-05_15_700pixel

Sanft eingebettet

Bungalow mit kubischem Erscheinungsbild nutzt die Hanglage geschickt

niederwaldstrCF024154_19_700pixel

Über den Dächern Wiesbadens

Eine Aufstockung in Holzbauweise schafft hochwertigen Wohnraum

LWF_0283-2021-9794_19_700pixel

Funktionaler Solitär

Zahn- und Implantatklinik als kompaktes Volumen garantiert kurze Wege

20200727_twa_015_15_700pixel

Harmonische Ruhe

Neue Familienbleibe setzt auf Zeitlosigkeit und ist für die Zukunft geplant

Historisch & modern

Sanierung und Erweiterung des Crespo Hauses interpretiert ein Stück Frankfurt neu

Brigitte-Pfeiffer_IMG_5816_15_700pixel

Ruhig & harmonisch

Eine klassisch-moderne Architektur mit geraden Linien und klaren Formen sowie einen funktionalen und zweckmäßigen Grundriss, der barrierefreies…

Ausgewogen und harmonisch

Terrassierung auf steilem Hanggrundstück schafft großzügige Aufenhaltsbereiche

20210626_115523_15_700pixel

Neue Leichtigkeit

Eine denkmalgeschützte Scheune wird zum energieeffizienten Wohngebäude