Ganz schön schräg
Ein Einfamilienhaus im Spannungsfeld von Strenge und Leichtigkeit
Ein Einfamilienhaus mit Klinkerfassade und Satteldach – das klingt für viele Menschen nach ländlicher Tristesse und gestalterischer Langeweile. Tatsächlich zeigt der Dortmunder Architekt Markus Kirschnick mit seinem „schrägen“ Entwurf, dass es auch anders geht.
Auf einem rund 510 m² großen Erbpacht-Grundstück im begehrten Dortmunder Süden ist ein Haus entstanden, das klassische und traditionelle Elemente lustvoll mit einem modernen Formenspiel und behutsamer Leichtigkeit konterkariert. Auf der einen Seite eine strenge, reduzierte Materialität und ein scharf geschnittenes Dach ohne Überstand, auf der anderen Seite eine leicht verspielte Form mit Rücksprüngen, asymmetrischen Giebeln, einem fassadenbündigen Dachaufbau und scheinbar ungeordneten Fenstern – das Gebäude bietet Betrachtern überraschende Perspektiven.
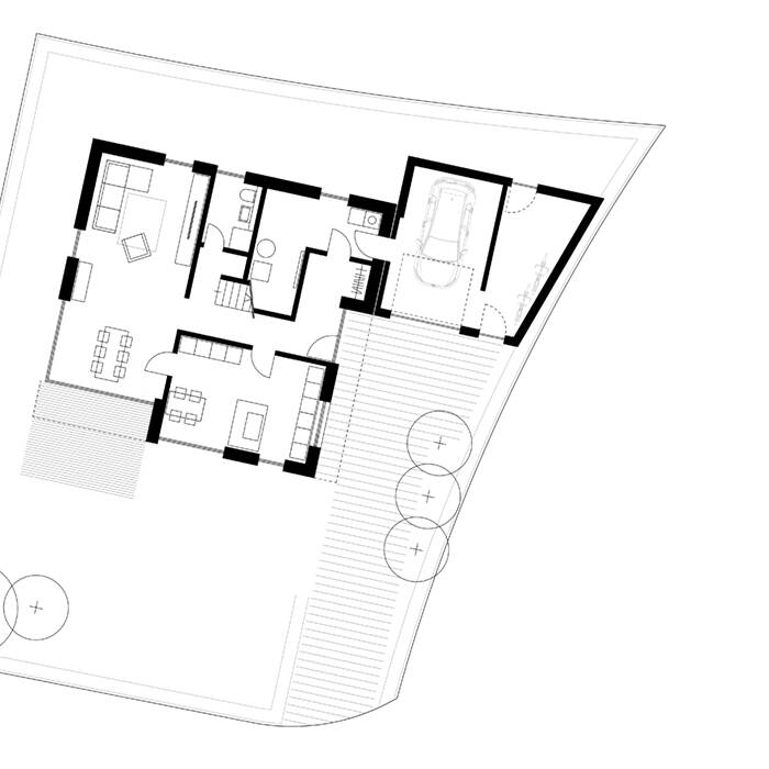
Die Aufteilung der 230 m² Wohnfläche ist klassisch gewählt: Im Erdgeschoss befinden sich die Wohnräume, ein Gäste-WC, ein großer Hauswirtschaftsraum und die Garage. Die Bauherrschaft hat besonderen Wert auf eine große Wohnküche mit eigenem Essplatz gelegt. Von hier aus hat man eine gute Übersicht auf den Einfahrtsbereich und den Garten. Der westlich angeordnete Wohnraum erstreckt sich über die gesamte Gebäudetiefe und wird von einem großen, überdachten Terrassenbereich ergänzt. Im Obergeschoss sind die Privaträume wie Schlaf- und Kinderzimmer sowie ein großes Familienbad untergebracht. Aufgrund des asymmetrischen Daches haben die südseitigen Räume hier keine Dachschrägen und sind in voller Höhe nutzbar. Der große Dachboden bietet als Kellerersatz zusätzliche Platzreserven. Alle Räume sind hell und freundlich gestaltet. Im Haus sind nahezu alle Fenster bodentief ausgeführt. In den Wohn- und Privaträumen dominieren weiße Putzflächen, Landhausdielen aus geölter Eiche und die stilvolle, aber zugleich bunte und familienfreundliche Möblierung den Raumeindruck.
Der Außeneindruck wird maßgeblich vom verwendeten Klinker bestimmt, der durch die besondere Sortierung und Farbgebung für eine lebendige Fassade sorgt. Das Gebäude wirkt innerhalb des Neubaugebiets aufgrund seiner reduzierten Materialität und Formgebung ungewöhnlich und selbstverständlich zugleich. Technisch ist das Haus mit einem modernen Gas-Brennwertgerät mit Hybridtechnologie und unterstützenden Hochleistungsflachkollektoren ausgestattet.
Fotos:
Markus Kirschnick
(Erschienen in CUBE Ruhrgebiet 03|21)
