Wechselhafte Geschichte
Neuer und letzter Erweiterungsbau des Ministeriums für Arbeit und Soziales
Der letzte Erweiterungsbau für das Bundesministerium für Arbeit und Soziales wurde kürzlich fertiggestellt. In der Wilhelmstraße 50, unweit des Brandenburger Tores, liegt das Bestandsgebäude und ein erster Erweiterungsbau von Kleihues und Kleihues aus dem Jahr 2008. Der riesige Gebäudekomplex erstreckt sich von der Wilhelm- bis zur parallel verlaufenden Mauerstraße. Es ist eine geschichtsträchtige Adresse: Hier befand sich das berüchtigte Reichspropagandaministerium von Joseph Goebbels im Dritten Reich.
2013 wurde ein offener, anonymer Wettbewerb für einen neuerlichen südlichen Erweiterungsbau ausgelobt, der nach Abriss eines dort befindlichen DDR-Gebäudes nun die Baulücke und damit den klassischen Berliner Blockrand schließt. Das Architekturbüro K9 aus Freiburg gewann mit seinem nahezu klassizistischen, wenn auch neu interpretierten Entwurf diesen Wettbewerb. Ende 2019 wurde der Neubau eröffnet. Orientierung für die Fassadenausbildung des Ergänzungsbaus war der Bestand. So hat das Gebäude von K9 optisch einen ähnlichen Charakter wie das Gebäude von Kleihues: Eine klassische Lochfassade, die sich durch ihre gliedernden Gestaltungselemente sensibel einordnet. Das Erdgeschoss ist etwas höher als die übrigen fünf Stockwerke und bildet daher eine Sockelzone. Im 4. Obergeschoss schafft ein Gesims noch eine weitere optische Zäsur. Die Laibungen der regelmäßigen raumhohen Fenster sind sehr tief, was zudem strukturbildend wirkt. Hinzu kommt die elegante Natursteinverkleidung der Fassade, die dem Gebäude etwas Nobles verleiht.
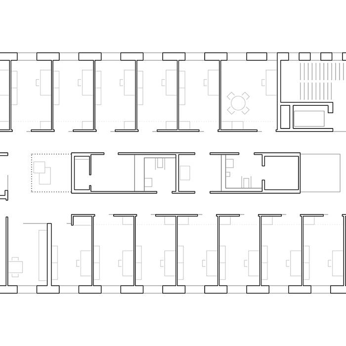
Im Sockelgeschoss befindet sich am linken Gebäudeende ein deutlich gekennzeichneter Eingang zu einer Kindertagesstätte, ganz rechts in gleicher Gestaltung der Eingang zum Ausstellungsraum. In den oberen fünf Geschossen liegen Einzelbüros sowie Gruppenbesprechungsräume. Der Zugang zum Verwaltungsbereich ist nur über einen gläsernen Gang vom Hauptgebäude aus zu erreichen. Großzügige Flure öffnen sich zum Treppenhaus hin zu zweigeschossigen Atrien als Begegnungs- und Kommunikationszonen. Insgesamt wurden Büros für 95 Arbeitskräfte geschaffen. Mit dem Erweiterungsbau wurde ein Niedrigenergiegebäude errichtet. Dazu gehört unter anderem eine flächenoptimierte Planung sowie die Ausstattung der Räume mit nachhaltigen Materialien. Das Gebäude wurde im BNB Zertifizierungssystem in Gold ausgeführt.
Quelle Fotos: BA für Bauwesen und Raumordnung
Fotos:
Dr. Cordia Schlegelmilch
www.cordia-schlegelmilch.de
(Erschienen in CUBE Berlin 01|21)

