Panorama mit Reissverschluss
Der „Zipper“ in Heerdt besticht durch seine auffällige Fassade und den Nutzungsmix
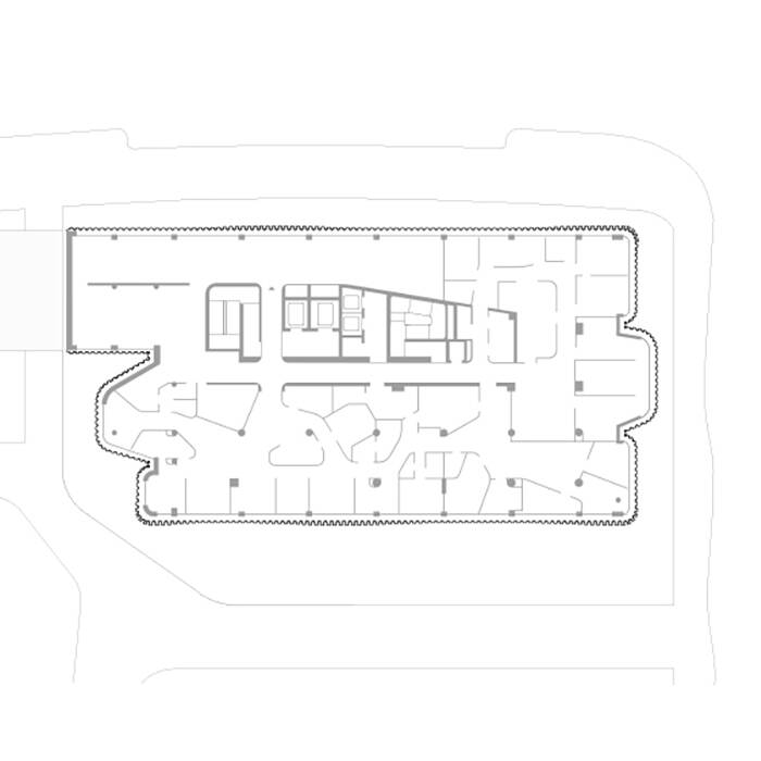
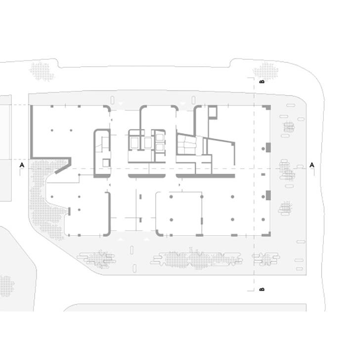
Mit seiner außergewöhnlichen dreidimensional gestalteten Fassade fällt er am linken Rheinufer nicht nur wegen seiner Höhe ins Auge – der 19-geschossige „Zipper“ ist das sichtbare Zeichen für einen neuen Campus für Wohnen und Arbeiten, der derzeit auf dem früheren Parkgelände des Dominikus-Krankenhauses in Heerdt entsteht. Bereits 2012 hatte das Berliner Architekturbüro J. Mayer H. und Partner den internationalen Wettbewerb mit einem hybriden Wohn- und Ärztehochhaus gewonnen, das mit seinen unregelmäßig dimensionierten, flimmernd-schimmernden Metallbändern in ständiger Bewegung zu sein scheint.
Der einmalige weite Rundumblick über den direkt benachbarten Rhein und die Aussicht über das umliegende Stadtpanorama prägen die Gestalt des Hauses. Die Konzeption der vorgehängten, perforierten Aluminiumfassade ermöglicht einen weichen dynamischen Verlauf von offenen und geschlossen Bereichen. So öffnet sich diese gewellte Hülle weiträumig im Osten, Süden und Westen und bietet zugleich ausreichend Verschattung und Windschutz. Nach Norden verschließt sich die Fassade dagegen überwiegend, um gegenüber einer Straßenkreuzung und dem vorhandenen Verkehr genügend Schallschutz zu bieten. Wie bei einem Reißverschluss sind die Übergänge zwischen offen und geschlossen fließend konzipiert – während des langjährigen Entwicklungsprozesses ermöglichte das eine flexible Anpassung, mit der auf Veränderungen während des Planungsprozesses leicht reagiert werden konnte. Die Bündelung von Gemeinschaftspraxen, Fachärzten und Therapeuten in den unteren sechs Etagen bietet weitreichende Synergien mit dem bestehenden Krankenhaus und schafft so den Prototyp einer Zukunftsklinik von überregionaler Bedeutung. Über diesem breiteren Sockelbereich entfaltet sich ein sich nach oben verjüngernder Schaft mit insgesamt 14 Etagen. Hier befinden sich die Wohnungen, die mit einer Vielfalt von Grundrissen zur lebendigen Mischung des Quartiers beitragen. Transparente, lichtdurchflutete Wohnräume führen dabei auf großzügige Terrassen, Balkone, Loggien und Dachgärten, die über falt- oder verschiebbare Glastüren zuätzlich vor Wind geschützt und somit auch als Wintergarten genutzt werden können. In den beiden oberen Etagen befindet sich eine Penthousewohnung mit über acht Meter hohen Räumen und einer äußerst weitläufigen Dachterrasse. Durch die Verbindung von Wohnen und Gewerbe zählt der „Zipper“ zu einer neuen Generation von Hochhäusern, die innovative hybride Mischnutzungskonzepte verfolgen. Er verdichtet nicht nur, sondern bereichert den umliegenden Stadtteil Heerdt auch durch seinen Nutzungsmix.
Fotos:
Lars Gruber
www.larsgruber.de
David Franck
www.davidfranck.de
(Erschienen in CUBE Düsseldorf 04|22)


