Wie im Universum
Ein kleines Apartment in Laim wird nach der Umgestaltung zum Raumwunder
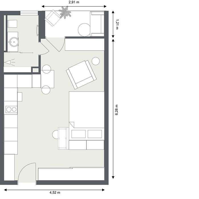
Ein kleines Apartment in Laim aus den 1950er-Jahren, eng und in die Jahre gekommen, gerade mal 28 m² groß, war der Ausgangspunkt für das Münchner Büro Inside Stories für eine komplette Umgestaltung des Objekts zwischen einem Mieterwechsel: „Die Wohnung war sehr kleinteilig, unterteilt in Flur, Bad, Küche sowie Wohn-/Schlafraum und alles war abgetrennt mit viel zu vielen Türen“, erzählt die Bauingenieurin und Architektin Brigitte Landwehr. Gemeinsam mit ihrer Geschäftspartnerin Annett Köberlein hat sie daraus ein wahres Wohnwunder gestaltet.
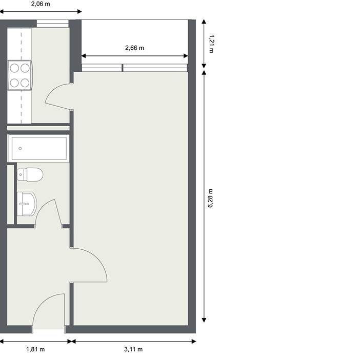
Schon öfters haben die beiden Objekte mit völlig verschnittenen Grundrissen in etwas viel Besseres transformiert. „Um Großzügigkeit und Helligkeit zu schaffen, entfernten wir eine Wand komplett. In die ehemalige Küche zog das Bad ein. Dadurch wurde sogar noch etwas mehr Wohnraum geschaffen“, so Brigitte Landwehr. Er misst jetzt tatsächlich 30 m². Diese wurden von den beiden Planerinnen modern, elegant und durchdacht eingerichtet. Hierbei arbeiten die beiden mit einem Pool an freien Mitarbeiter:innen und Handwerkern:innen eng zusammen. Ein weiterer Kniff war, die Decke der 2,40 Meter hohen Wohnung komplett schwarz zu streichen – wodurch der ganze Raum mehr Tiefe erhielt. Die zunächst extrem skeptische Bewohnerin ist davon nun hellauf begeistert – es sei, als würde man ins Universum blicken, schwärmt sie und kann hier regelmäßig in den Zen-Modus schalten. Genau dieses Gefühl auch über das Interior zu erzeugen, war das Ziel – alle Materialien und die ruhige, reduzierte Farbgebung unterstützen das Gefühl, hier sofort geerdet zu sein. Grau geölte Eichenholz-Fußböden, Leuchten im reduzierten Scandi-Style, die weißen Möbel und der vom Schreiner maßgefertigte Echtholz-Raumtrenner vereinen sich im Wohn-/Schlafzimmer mit offener Küche zu einem stimmigen Ganzen. Unter der Maßgabe der Bauherrin „so günstig und zugleich so wertig wie möglich“ zu gestalten, sind ein paar Hermès-Teile dabei und der Rest sei von H & M, beschreibt es die Architektin: „Einige Möbel sind tatsächlich von Ikea, wobei ganz viele Anpassungen in Handarbeit vorgenommen wurden.“ Im Badezimmer setzt sich der ruhige Zen-Look mit Wänden aus gespachteltem Beton und Metrofliesen in einem warmen Kaschmirbeige und dem Naturstein-Waschbecken fort. Ein großer, beleuchteter Spiegel lässt auch diesen Raum viel größer wirken, als er tatsächlich ist.
Fotos:
Christine Dempf
www.christine-dempf.de
(Erschienen in CUBE München 04|23)


