Im Wandel der Zeit
Aus Garagen eines einstigen Herrenhauses wurde das „Café Garage“
Zum schlossähnlichen Herrenhaus Correns in Lankwitz, erbaut 1914 ff nach dem Entwurf des Architekten Fritz Freymüller und später bekannt als Siemensvilla, gehörte auch ein Pförtnerhaus mit Werkstatträumen und Garagen, die kürzlich eine Verwandlung erfahren durften (Architekt Albert Denzel). Die Berliner Architektin Ulrike Reccius baute die Garagen mit ihrem Büro PEB+ Architekten in das „Café Garage“ um. Hier wurde eine Art Mensa für 200 Studierende geschaffen und auch Passant:innen dürfen sich niederlassen, sofern sie den Studierenden nicht den Platz streitig machen.
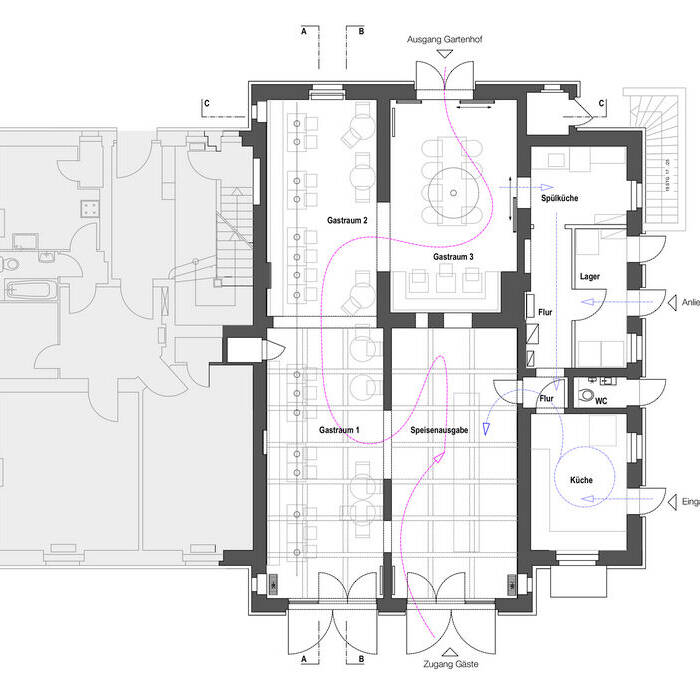
Die Villa, heute in Privatbesitz und an die Business & Law School und die Medical School vermietet, steht unter Denkmalschutz und jegliche bauliche Veränderung bedarf der Zustimmung der Behörde. Selbst für die Garagen galten diese Auflagen. PEB+ ist bereits seit 2011 mit den baulichen Anpassungen und Umbauten des gesamten Gebäudeensembles betraut. Mit der Hochschulnutzung wurde eine kleine Gastronomie für die Studierende erforderlich, da in der Umgebung keine entsprechende Infrastruktur zu finden ist. Das „Café Garage“ bietet fortan kleine Gerichte und Getränke an. Die ehemaligen Garagen plus einiger Nebenräume haben eine Größe von circa 200 m2, davon sind etwas mehr als die Hälfte Bewirtungsflächen, der Rest wird für Küche, Lager und Tresen genutzt. In der warmen Jahreszeit kommen nochmal 75 m2 Fläche des anliegenden Obstgartens hinzu. Folgende Baumaßnahmen wurden unternommen: Zunächst musste die technische Infrastruktur erneuert werden und die umgebauten Flächen erhielten eine eigene Heizung. Soweit möglich, wurden alle vorgefundenen Elemente erhalten und wiederverwendet, wie etwa die glasierten Ziegel der Wände, wie sie zur Entstehungszeit üblich waren. Sie wurden lediglich gereinigt und ausgebessert. Kreisrunde Wanddurchbrüche schaffen einen Durchblick und Zusammenhang der einzelnen Räume und sorgen für Luftzirkulation.
Hinter die Bestandstüren aus Metall wurden in einer zweiten Ebene Stahl-Glas-Türanlagen als handwerklich gefertigte Stahlkonstruktion eingebaut. Zu den Öffnungzeiten des Cafés werden die historischen Tore geöffnet und die dahinterliegende Fassade bildet den Raumabschluss zwischen Aussen und Innen. Die neuen Stahl-Glasfassaden wurden als handwerklich gefertigte Stahlkonstruktion gebaut. Die im Bestand vorhandene Holzbrettertür, die als Schiebetür umgebaut wurde, bildet den Abschluss vom hinteren Gastraum zur Spülküche. Die alten dunkelgrauen oder schwarzen Aufputz-Installationen wurden erhalten und neu sortiert, dazu im Kontrast sind alle neuen Elemente, Steckdosen und Lichtschalter in Weiss Aufputz verlegt. Schlanke Lichtschienen beleuchten die Oberwände und die Decke und erzeugen eine indirekte Grundbeleuchtung. Der Ausgabetresen wird durch eine abgependelte Lichtschiene inszeniert. Ein Leuchtring, der für die Illumination des hinteren Gastraumes sorgt, bildet ein Pendant zu den runden Wandöffnungen. Der gesamte Umbau fand während der Coronazeit statt. 2022 wurde das Café schließlich eröffnet und wird von den Studierenden sehr geschätzt.
Fotos:
Angela Kovács-Nawrath
(Erschienen in CUBE Berlin 03|24)
