Spiel von alt und neu
Als wäre es schon immer so gedacht gewesen – eine Nachverdichtung im Wedding
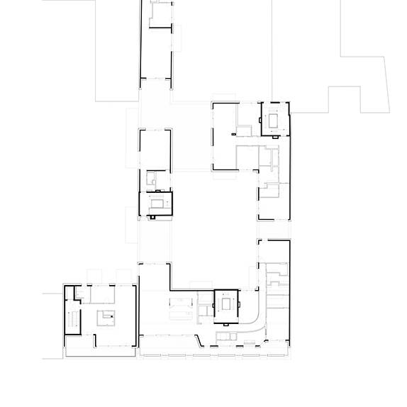
Schon seit geraumer Zeit wird der Wedding als das kommende In-Viertel Berlins angekündigt. Davon war bislang nicht allzu viel zu spüren, waren doch die neuen Stadtteile des ehemaligen Ostberlins viel spannender. Nun aber scheint sich im Wedding etwas zu bewegen. Wedding boomt: Inzwischen leben hier Künstler, Freischaffende, Autoren und ein großstädtischer plus ur-berlinerischer Mix aus Graffiti, Eckkneipen, Dönerbuden, Spätis, Sterne-Restaurant und Galerien hat sich allmählich hier eingefunden. Ausstieg Bahnhof Wedding: Nur eine Minute entfernt liegt der zu einer Einheit gewordene Bestandsbau samt Neubau von Holzer Kobler Architekturen aus Zürich – mittlerweile aber auch mit einem Ausläufer in Berlin, Köln und Nyon – und zweikant architekturen aus Köln. Das Projekt ist beides: Ein ergänzendes neues Gebäude zu einem Altbau und eine Aufstockung auf ein Bestandsgebäude – eine Nachverdichtung mit neuem Konzept. Hier entstanden Wohn- und Büroeinheiten mit weitgehend offenen Grundrissen, die den Bewohnern freie Hand lassen, wie sie ihre Räumlichkeiten nutzen wollen. Li18.Berlin nennt sich das Ensemble, eine Kurzform für Lindower Straße 18/19. Ein seltsam verschachteltes Gebäudecarrée (siehe Axonometrie) galt es, nachzuverdichten und durch An- und Aufbauten zu vereinheitlichen.
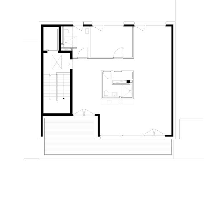
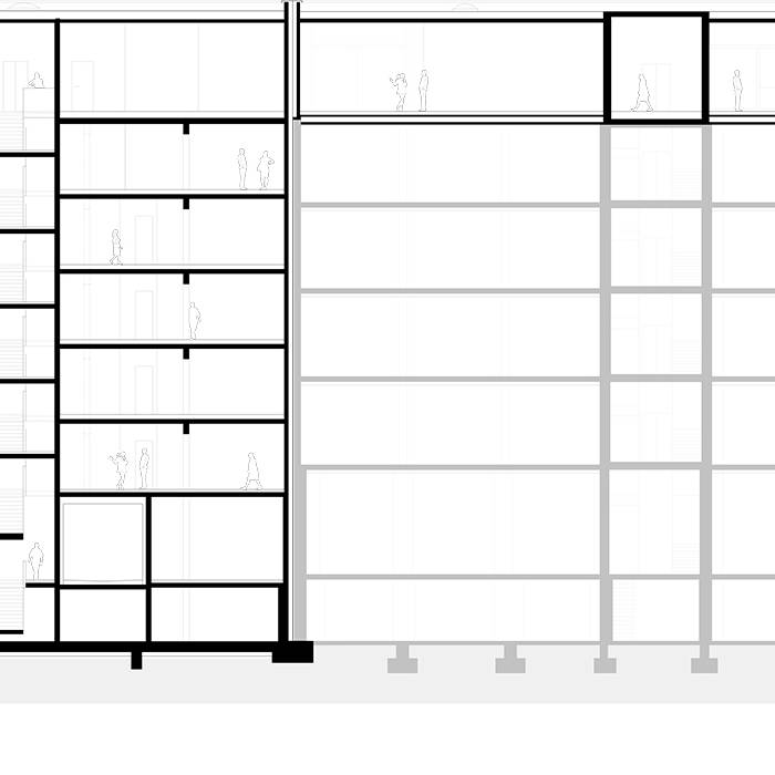
Neben das industrielle Vordergebäude aus dem Jahr 1905 setzten die Architektinnen ein neues Turmgebäude und stockten das Bestandsgebäude auf die gleiche Höhe auf. Gemäß des Credos der Architekturbüros wurde auf programmatische Innovation, ästhetische Identität und die Anpassung an die Charakteristik des Kontexts geachtet. Das Konzept geht auf: Unterschiedlicher könnten die beiden Gebäude kaum sein, aber sie bilden nun ein stimmiges Ganzes. Der Turm, ein kompletter Holz-Hybridbau, verbindet sich gestalterisch mit der pavillonartigen Aufstockung des historischen Nachbargebäudes. Seine in einem sehr dunklen Grünton eingefärbte Sichtholzfassade und die großen Fensteröffnungen verbinden sich harmonisch mit dem Bestandsgebäude. Es kam heimisches Fichtenbauholz zum Einsatz und für den Anstrich griff man auf außerordentlich witterungsbeständige Schwedenfarbe zurück. Hier gibt es Lofts, in denen gewohnt wird und in denen auch Büroflächen angemietet werden können.
Ein Blick in den Hinterhof offenbart Mut zur Farbe. Die angehängten Balkone haben einen fröhlichen Farbanstrich und sind versetzt über die Rückseite des Turms angebracht. Überall kommt Holz zum Einsatz – Massivholz bei der Aufstockung, der Außenwand, dem Dach und für die Decken sowie Brettschichtholzträger und -stützen als statische Elemente für den Skelettbau aus Baubuche.
Fotos:
Jan Bitter
www.janbitter.de
(Erschienen in CUBE Berlin 04|21)

