Hofhaus Mit Pool

Ein großzügiges Einfamilienhaus aus Massivholz wirkt wie ein klassischer Backsteinbau

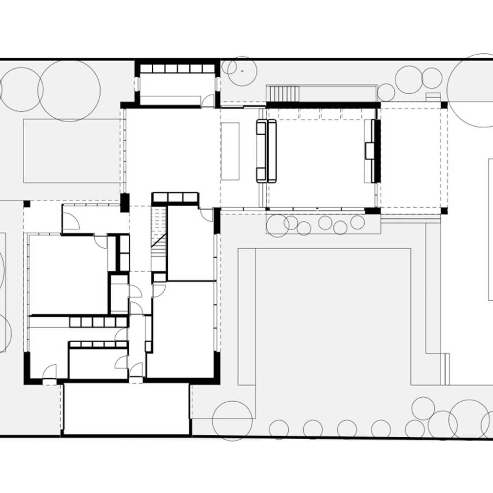
Das Baufenster, das im Bebauungsplan für das Grundstück festgelegt war, schien erst einmal nahezu surreal: Zunächst über fünfzehn Meter verlief es in die Tiefe des Grundstücks, um sich dann in einem hinteren Teil quer dazu u-förmig zu gabeln. Ben Dieckmann architects aus Meerbusch griffen diese ungewöhnliche Vorgabe wie eine Regieanweisung auf und entwickelten für die vierköpfige Familie ein Hofhaus mit weitläufiger Poolterrasse.   Der realisierte Entwurf folgt dem vorgezeichneten Baufenster bis auf die Eckpunkte genau und wird im Zusammenspiel mit der Poolterrasse zum exakten Abbild der maximal möglichen Bebauung. Zugleich greift das Gebäudeensemble das ebenfalls im Bebauungsplan vorgeschriebene Satteldach und die relativ steile Dachschräge auf. Auch wenn dabei sowohl zur Straße als auch zum Hof großzügige, transparente Dachgauben ausgebildet werden – durch die traufständige Orientierung tritt es zurückhaltend auf. Zugleich gliedert sich das Gebäudeensemble harmonisch in die umliegende Bebauung von freistehenden eingeschossigen Wohnhäusern der 1950er- und 1960er-Jahre ein – genauso wie es sich die Bauherren wünschten.

Wegen eines Bodendenkmals, das sich auf dem Grundstück befindet, konnte das Haus nahezu gar nicht unterkellert werden. Bis auf einen kleinen Technikraum, der in dem Kellerraum des vorangegangen Abrisshauses untergebracht werden konnte, mussten alle Lager- und Nebenräume mit in das Erdgeschoss integriert werden. Der eigentliche gemeinschaftliche Teil mit Küche, Ess- und Wohnbereich befindet sich in dem langgestreckten, schmalen Riegel, der mit seinem überdachten Freisitz an die Poolterrasse anschließt. Dieser öffnet sich im Inneren bis unter den Dachfirst und erinnert auf diese Weise an Wohnhäuser, wie man sie typischerweise in Nordamerika oder auch in Neuseeland findet. Das gesamte Interior des Hauses wurde nach Entwürfen von Patrick Treutlein Interior geplant und umgesetzt. Auch wenn sich das Wohnhaus nach außen monolithisch mit einer davor geblendeten Klinkerfassade zeigt, ist der Rohbau doch nicht etwa in Stein oder Beton ausgeführt. Vielmehr wurde dieser aus kreuzweise verleimten Massivholzwänden und -decken elementiert, die im Abbundwerk vorgefertigt und innerhalb weniger Wochen vor Ort gestellt und montiert wurden. Entstehen konnte so am Ende ein freistehendes Hofhaus mit mehreren Terrassen und verschiedenen Gartenbereichen. Ebenso dauerhaft wie klassisch zeitlos in seiner Erscheinung, dient es der Familie als perfekter Lebensmittelpunkt.

www.bendieckmann.com

Fotos:
Dirk Matull
www.dirkmatull.de

Wohnfläche: 348 m²
Grundstücksgröße: 1.450 m²
Bauzeit: 9 Monate (Rohbau)
Bauweise: CLT-Massivholzbau
Energiekonzept: Wärmepumpe mit PV-Anlage

(Erschienen in CUBE Düsseldorf 02|25)

Architektur:

Ben Dieckmann, Architekt BDA
www.bendieckmann.com

Bodenplatte/Klinkerarbeiten:

KW Bau
Telefon: 02166-1489945

Holzbau:

Rings & Helmig
www.rings-helmig.de

Dachdeckerei:

Fels & Schroers
www.fels-schroers.de

Fenster:

Krebbers
www.krebbers.de

Parkett:

Parkett Dietrich
www.parkett-dietrich.de

Fliesenarbeiten:

Brauckmann
www.brauckmann.com

Trockenbau, Malerarbeiten:

Lucian Thum
www.lucian-thum.de

Interior, Küchen:

Patrick Treutlein
www.treutlein-flagshipstore.de

Elektro:

VM Elektrotechnik
www.vm-elektrotechnik.de

Medientechnik:

Grobi Heimkino & mehr
www.grobi.tv

Garten- und Landschaftsbau:

Toni Selders
www.selders-toni.de

Pool:

3D Pools
www.3d-pools.de

Klinker:

Peter Köhler
www.koehler-klinker.de

Randers Tegl
www.randerstegl.de

Nothing found.

Farbspektrum

Ein Business Club in Citylage setzt farbenreich auf Exzellenz und Vielfalt

Ein Teil des Waldes

Umbau einer Scheune zu einem modernen Rückzugsort

Passgenau am Bach

Eine geförderte Wohnanlage in Bergisch Gladbach ordnet sich kleinteilig in ihren Kontext ein

Ästhetik in jeder Hinsicht

Das Design einer oralchirurgischen Praxis vermittelt Ruhe, Kompetenz und Wärme

Nothing found.

75157_15_700pixel

Das Treppen-Haus

Haus Steinert von Hans Poelzig in Krefeld war ein wichtiger Treffpunkt der verstoßenen Moderne

emobicon_SW-Du-sseldorf_15_700pixel

Dynamik Elektromobilität

Private Nutzer gewinnen zunehmend an Bedeutung

Terrasse_1295_4c_19_700pixel

Tradition mit Kräutern

Das Byliny in Bilk bietet Klassiker der bürgerlichen Küche mit saisonalem Twist

R1_MAIN_22_09-Kopie_15_700pixel

Nachhaltig und reduziert

KIYO setzt beim Design und in der Produktion auf das Prinzip Less is Future

Moderner Lernort

Der Erweiterungsbau eines Gymnasiums in Ratingen berücksichtigt pädagogische Konzepte

2093_M02_DRUCK_15_700pixel

Wände raus, Licht rein

Umfangreiche Änderungen machen eine Doppelhaushälfte zum großzügigen Einfamilienhaus

200317_BOE_Portra-t-DBS_700pixel

Der Immobilienmakler 4.0

Im Interview erläutert die Maklerin, wie das Berufsbild von digitalen Geschäftsprozessen profitiert und sich auch in Corona-Zeiten gut behaupten…

PK1078-188_15_700pixel

Stilvoll im Baudenkmal

Das Postboutique Hotel bietet Glamour und Eleganz in zentraler Lage